Kiadó ipari ingatlan - Göd
- INGYENES HIRDETÉS FELADÁS
Ingatlan adatai
- Eladó vagy kiadó:Kiadó
- Település:Göd
- Kategória:Ipari ingatlan
- Alkategória:Egyéb
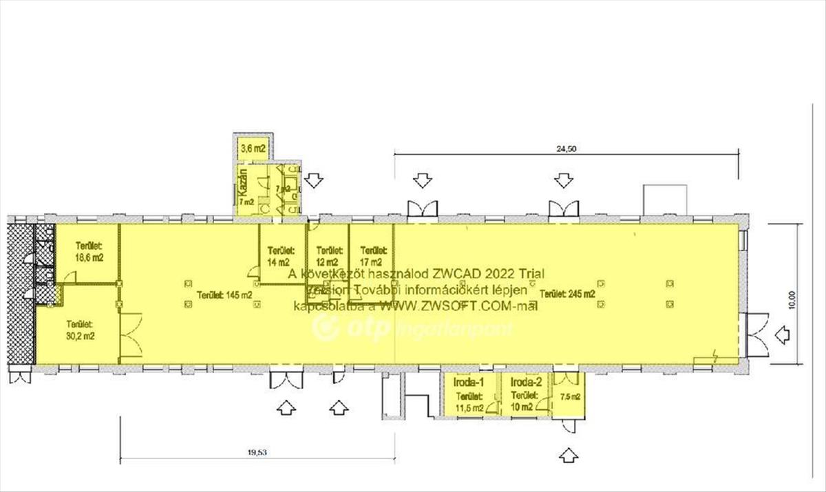
- Alapterület:513 m2
- Telekterület:nincs megadva
- Csere is:Nem
- Hirdető:Cég
- Élő videón megtekinthető:Nem
- Építés éve:1963
- Hány szintes az ingatlan:nincs megadva
- Hányadik emeleti:nincs megadva
- Parkolási lehetőség:Udvaron
- Energiatanúsítvány:nincs megadva
- Villany:nincs megadva
- Víz:nincs megadva
- Gáz:nincs megadva
- Csatorna:nincs megadva
- Kapcsolatfelvétel

Takács Zsuzsanna
+36-(30)-495-3819
Mondd meg a hirdetőnek, hogy a megveszLAK-on találtad a hirdetést.
Referencia szám: M324068
Hitel ajánlatok
Ingatlan hirdetés leírása
Kiadó Üzem, Göd, Kiadó ipari ingatlan - Göd
Göd ipari részén hatalmas telephelyen bérbeadásra kínálunk különböző méretű és állapotú gyártócsarnokokat, raktárakat, irodákat.
Ez a csarnok átlagos állapotú, 320 cm magas, 3 db 320x270 ipari kapuval rendelkezik, gáz fűtés nem megoldott, külön öltözők, irodák, rendelkezésre állnak, teherforgalommal korlátozottan megközelíthető.
Lehetőség van akár autószerelő műhely kialakítására, tárolásra, gyártásra. Az ingatlanok egy része targoncázható, teherautóval megközelíthető, fűthető, ipari kapuval ellátott, több bejárattal rendelkezik.
Kialakítástól és elhelyezkedéstől függően az itt megadott árak, alaprajzok esetlegesen változhatnak, eltérhetnek az itt megadottól (a konkrét igények alapján tud a tulajdonos megadni végleges árat és tudja kialakítani az elrendezést. )
Egyes esetekben közös területi szorzó is felszámolásra kerülhet.
A feltüntetett bérleti díjak nettók, nem tartalmazzák az ÁFÁ-t, + 27 % áfa fizetendő!
Bérléshez szükséges 2 illetve kaució + 1 havi bérleti díj.
A tulajdonos a bérlő választás jogát fenntartja és a bérleti szerződést közjegyzői okiratba foglaltatja.
M324068
Referencia szám: m324068-ml Hitel.hu - Hasonlítsa össze a bankok lakáshitel ajánlatait
Tetszett ez a kiadó Gödi ipari ingatlan? Hívd fel a hirdetőt most, és tudj meg mindent erről a kiadó ipari ingatlanról! Ha gondolod nézelődj tovább a kiadó ipari ingatlan Göd oldal hirdetései között.
A kiadó ipari ingatlanok menüpontban további hirdetések között is böngészhetsz. Ha van kedved, akkor böngészhetsz a Takács Zsuzsanna összes hirdetése között, vagy akár a/az OTPip Budapest XIII. kerület Lehel utca 50 - OTP Ingatlanpont Iroda összes hirdetése között is.

