Kiadó ipari ingatlan Győr
| Kedvencbe | Megosztás | Árfigyelő |
| Kedvezményes lakáshitel ajánlatok | ||
| 2 960 000 HUF/Hó | ||
Ingatlan adatai
- Eladó vagy kiadó:Kiadó
- Település:Győr
- Kategória:Ipari ingatlan
- Alkategória:Egyéb
- Alapterület:1685 m2
- Telekterület:nincs megadva
- Csere is:Nem
- Hirdető:Cég
- Élő videón megtekinthető:Nem
- Hány szintes az ingatlan:nincs megadva
- Hányadik emeleti:nincs megadva
- Parkolási lehetőség:nincs megadva
- Energiatanúsítvány:nincs megadva
- Villany:nincs megadva
- Víz:nincs megadva
- Gáz:nincs megadva
- Csatorna:nincs megadva
- Üzenetküldés
- Hívás


Hitel ajánlat
Ingatlan hirdetés leírása
Győr-Szabadhegy, ipari csarnok kiadó
Győrben az m1 autópályától 5km-re, kamionnal súlykorlátozás nélkül megközelíthető ipari csarnok kiadó. Az ingatlan a kor minden követelményeinek és elvárásainak megfelel. Több közvetlen bejáratú irodával, kiszolgáló helységekkel, raktárakkal és szociális helyiségekkel rendelkezik.Kialakítását és műszaki tartalmát tekintve alkalmas ipari gyártásra, de akár raktározási célra is.
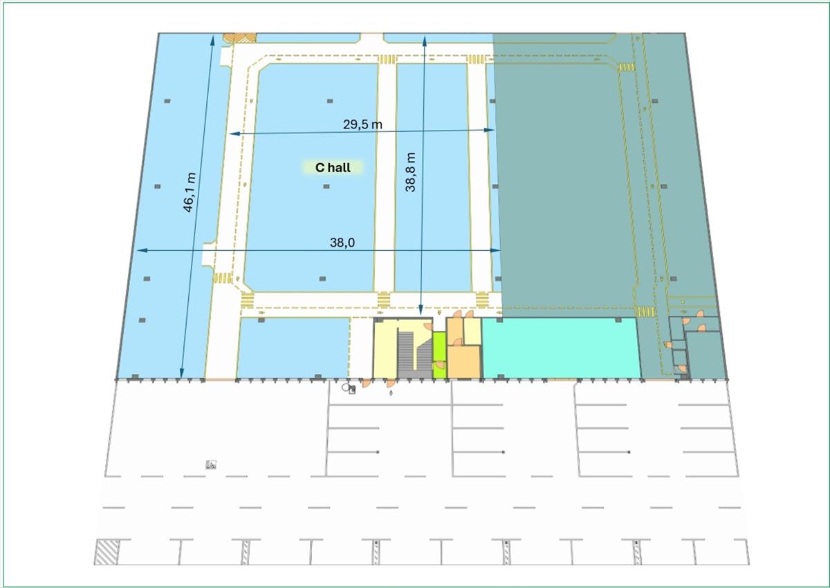
Területmegosztás:
C csarnok:
A csarnok területe 1 685, 4 m2, melyből 276, 7 m2 berendezett magaspolcos raktár, 181, 1 m2 fejépületi csarnokrész, 23, 8 m2 szociális helyiség.
Főbb jellemzők:
- nagy terhelhetőségű műgyantabevonatú padozat,
- led csarnok- és helyiségvilágítás,
- dedikált szociális helységek,
- szabályozható légtechnika (hűtés, fűtés), termoventillátoros levegő temperálás,
- független, fedett vasúti iparvágány,
- fedett kültéri tároló. - Szabályozható légtechnika (hűtés, fűtés), termoventillátoros levegő temperálás,
- hővisszanyerő szellőztető rendszer.
- Melegvizes hőcserélős légbefúvásos fűtésrendszer.
- Parkolás az épület előtt kialakított parkolóban.
- Emeleti galéria részben férfi öltöző- zuhanyzók( 160 fő ), Női öltöző-zuhanyzó (40 fő)
- akár 1000/1000 Mbit bérelt vonali internet,
- saját 100 mellékes telefon alközpont - azonnali használható!
- Strukturált hálózat minden munka asztalnál,
- szerver elhelyezés a szerverszobában,
- kaputelefon.
Bérleti díj: 4, 5 euró+áfa/m2 ( egységesen az irodák és szociális helyiségek is)
Minimum bérelhető idő 24 hónap.
Kaució, 2 havi bérleti díjnak megfelelő összeg.
(Hivatkozási szám: m124953) Hitel.hu - Hasonlítsa össze a bankok lakáshitel ajánlatait

