- >>
- albérletek
- >>
- kiadó ipari ingatlan
- >>
- kiadó ipari ingatlan Ságvár
- >>
Kiadó ipari ingatlan - Ságvár
| | |||
| Kedvencnek jelölöm | Elküldöm emailben | Megosztás | Szavazás |
| Kedvezményes lakáshitel ajánlatok | |||
| 4 470 648 HUF/Hó | |||
Ingatlan adatai
- Eladó vagy kiadó:Kiadó
- Település:Ságvár
- Kategória:Ipari ingatlan
- Alkategória:Egyéb
- Alapterület:2043 m2
- Telekterület:7723 m2
- Csere is:Nem
- Hirdető:Cég
- Élő videón megtekinthető:Nem
- Építés éve:2025
- Hány szintes az ingatlan:nincs megadva
- Hányadik emeleti:nincs megadva
- Parkolási lehetőség:nincs megadva
- Energiatanúsítvány:nincs megadva
- Villany:nincs megadva
- Víz:nincs megadva
- Gáz:nincs megadva
- Csatorna:nincs megadva
- Üzenetküldés
- Hívás


Hitel ajánlat
Ingatlan hirdetés leírása
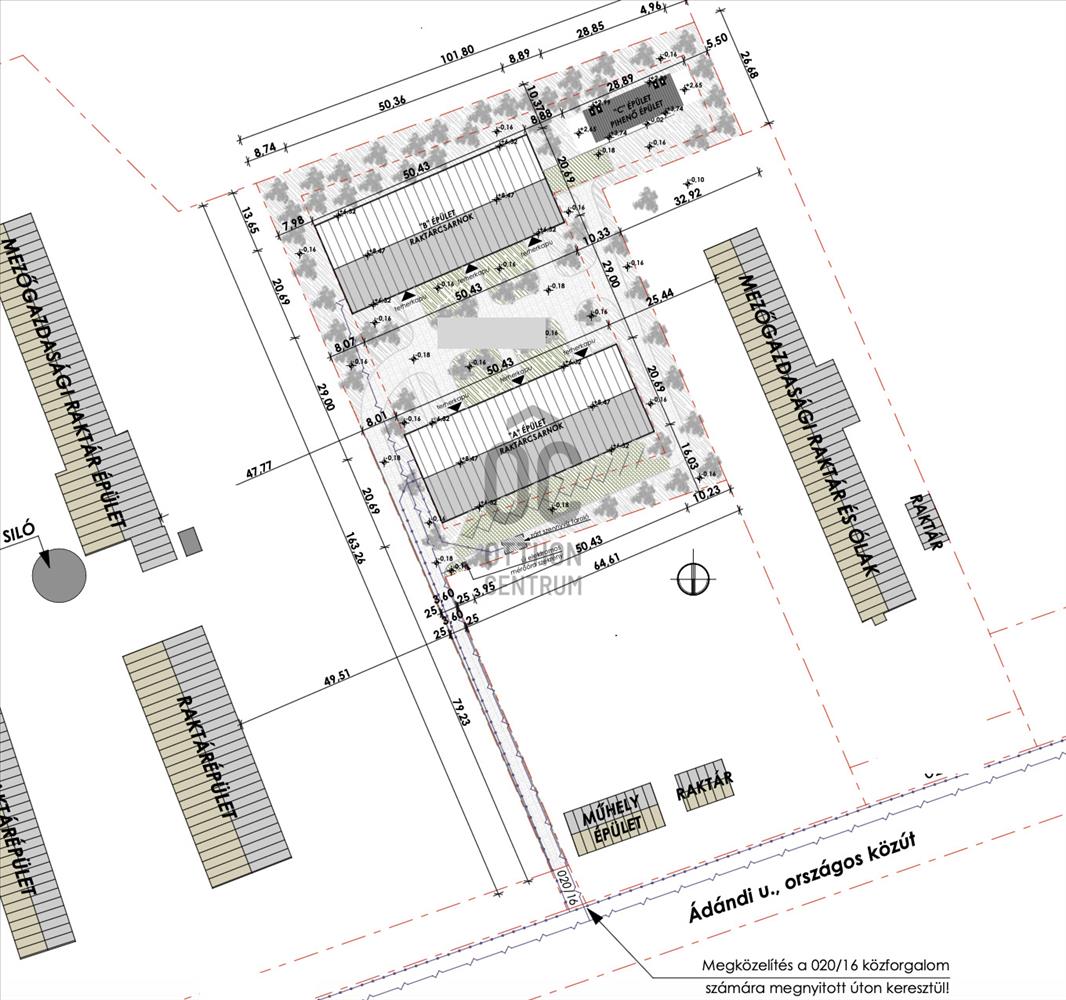
Ságváron, Siófokhoz és az M7 autópályához mindössze 7 km-re, 2...
Ságváron, Siófokhoz és az m7 autópályához mindössze 7 km-re, 2x1. 000 Nm-es csarnok kiadó egy 7. 723 M²-es telken!- Méret: 2 x 1. 000 M²-es csarnok
- belmagasság: 6-7 m
- Falvastagság: 12 cm
- Szintbeli kapuk mérete: 3x3m, és 2 db, 4, 5 x 4, 50m
- Villamos hálózat: 3x80 A
- Napelem: 50 mW teljesítmény
- Egyik csarnokban: 100 m² iroda, öltözők, zuhanyzók, külön női és férfi WC,
- Az ingatlan specialitása az övezeti besorolása: Kü-Hull, azaz hulladékkezelő terület (a területen a hulladékkezeléshez, feldolgozáshoz, időszakos tároláshoz szükséges épületek, építmények, valamint azok kiszolgáló létesítményei helyezhetők el),
- Bérleti díj:
- raktárnál 5, 5 €/nm,
- irodánál 8, 9 €/nm.
- Üzemeltetési díj: 0, 3€/nm.
Bármi kérdéssel, vagy a bejárással kapcsolatban állok rendelkezésükre! Hitel.hu - Hasonlítsa össze a bankok lakáshitel ajánlatait

