Kiadó jó állapotú iroda - Győr
- INGYENES HIRDETÉS FELADÁS
Ingatlan adatai
- Feladva:67 napja a megveszLAK-on
- Eladó vagy kiadó:Kiadó
- Település:Győr
- Kategória:Iroda
- Alkategória:Egyéb
- Alapterület:280 m2
- Csere is:Nem
- Hirdető:Cég
- Élő videón megtekinthető:Nem
- Állapot:Jó állapotú
- Hány szintes az ingatlan:nincs megadva
- Hányadik emeleti:nincs megadva
- Parkolási lehetőség:nincs megadva
- Őrzött parkoló:nincs megadva
- Bútorozottság:nincs megadva
- Fényviszony:nincs megadva
- Tájolás:nincs megadva
- Kilátás:nincs megadva
- Internet:nincs megadva
- Klíma:nincs megadva
- Akadálymentesített:nincs megadva
- Energiatanúsítvány:nincs megadva
- Kapcsolatfelvétel

Vidigán Beáta
+36-(20)-255-0519
Mondd meg a hirdetőnek, hogy a megveszLAK-on találtad a hirdetést.
Hitel ajánlatok
Ingatlan hirdetés leírása
Központi helyen, óriási lehetőséggel!
Hosszútávra kiadó kettő, összenyitható irodakomplexum, Győr-Nádorváros frekventált részén a Mészáros Lőrinc utcában. Az ingatlanok egy körbekerített kereskedelmi és ipari megnevezésű, több üzlethelyiségből álló területen helyezkedinek el külön épületben, külön-külön udvari bejárattal. Az ingatlanok alkalmasak irodának, oktatási célra, csoportos foglalkozások megtartására, raktárnak, több helyiségből álló üzletnek is.
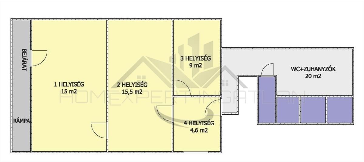
Az egyik ingatlan összesen 200 m2, 4 irodahelyiségből áll, 3db 22m, 32-es és egy 17 m2-es, továbbá konyha-étkező, wc, mosdó is van, a helyiségek folyósóról nyílnak. a másik ingatlan összesen kb. 80 m2, 4 helyiségből áll, továbbá wc, mosdó és zuhanyzó is található.
Az épület fűtését és meleg víz ellátását kombi-kazán biztosítja, a hőmérséklet termosztáttal szabályozható.
Az ingatlanok födémjét és falait hőszigetelték, ablakai műanyagok és redőnnyel felszereltek. a szobák parkettával a közös helyiségek járólap burkolattal vannak ellátva. Az ingatlanra és a benne élők biztonságára távfelügyeletre bekötött riasztórendszer vigyáz. a közlekedés kiváló, jó megközelíthetőséggel rendelkezik és igényesen kialakított zárt parkoló tartozik hozzá. a környéken több bevásárlóközpont található, 100 méterre pedig buszmegálló van.
Az ingatlanok hosszútávra kiadók, a bérleti szerződés megkötéséhez 2 havi kaució szükséges, a bérleti díj: 600 000. -Ft+áfa+rezsi.
Előre egyeztetett időpontban, megtekintheti ezt az ingatlant! További kérdés esetén állok rendelkezésére! További kérdés esetén állok rendelkezésére, hívjon bizalommal!
Homexpert Ingatlaniroda további szolgáltatásai: Jogi képviselet-ügyvédi háttér, díjmentes banksemleges hitel-CSOK és biztosítási ügyintézés, energetikai és vbf tanúsítvány készítése. (Hivatkozási szám: m125652) Hitel.hu - Hasonlítsa össze a bankok lakáshitel ajánlatait
Tetszett ez a kiadó Győri jó állapotú iroda? Hívd fel a hirdetőt most, és tudj meg mindent erről a kiadó irodáról! Ha gondolod nézelődj tovább a kiadó iroda Győr oldal hirdetései között.
A kiadó irodák menüpontban további hirdetések között is böngészhetsz. Ha van kedved, akkor böngészhetsz a Vidigán Beáta összes hirdetése között, vagy akár a/az Homexpert Ingatlan összes hirdetése között is.

