- >>
- albérletek
- >>
- kiadó iroda
- >>
- kiadó iroda Budapest III. kerület
- >>
Kiadó jó állapotú iroda - Budapest III. kerület
| | |||
| Kedvencnek jelölöm | Elküldöm emailben | Megosztás | Szavazás |
| Kedvezményes lakáshitel ajánlatok | |||
| 205 590 HUF/Hó | |||
Ingatlan adatai
- Eladó vagy kiadó:Kiadó
- Település:Budapest III. kerület
- Kategória:Iroda
- Alkategória:Irodaházban
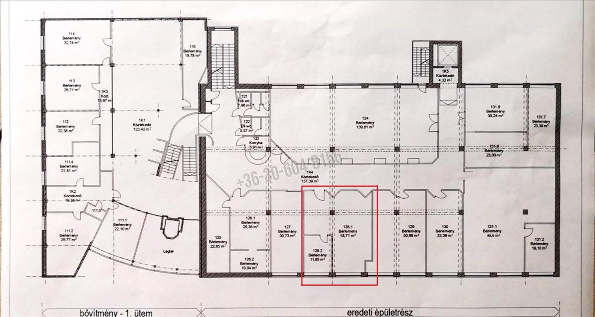
- Alapterület:60 m2
- Csere is:Nem
- Hirdető:Cég
- Élő videón megtekinthető:Nem
- Állapot:Jó állapotú
- Hány szintes az ingatlan:nincs megadva
- Hányadik emeleti:Földszint
- Parkolási lehetőség:Udvaron
- Őrzött parkoló:nincs megadva
- Bútorozottság:nincs megadva
- Fényviszony:nincs megadva
- Tájolás:nincs megadva
- Kilátás:nincs megadva
- Internet:nincs megadva
- Akadálymentesített:nincs megadva
- Energiatanúsítvány:nincs megadva
- Üzenetküldés
- Hívás


Hitel ajánlat
Ingatlan hirdetés leírása
Kiadó Iroda, Budapest 3. kerület, Filatorigát, 60nm, 205590 Ft
Buda III. kerület Bécsi úton, a Tesco közelében iroda és üzlethelyiségek különböző alapterülettel kiadók.Bérleti díj 8, 9 eur + ÁFA/m2/hó,
Üzemeltetési díj: 7, 5 eur + ÁFA/m2/hó, mely tartalmazza a 24 órás porta szolgálat, a víz, fűtés, klimatizálás díját és a parkoló helyek korlátlan használatát (250 férőhely).
Az üzletházban található többféle üzleti, és irodai tevékenység, az épület udvarában egyéb raktár lehetőség is bérelhető. Hitel.hu - Hasonlítsa össze a bankok lakáshitel ajánlatait

