Kiadó jó állapotú iroda - Budapest III. kerület
- INGYENES HIRDETÉS FELADÁS
Ingatlan adatai
- Eladó vagy kiadó:Kiadó
- Település:Budapest III. kerület
- Kategória:Iroda
- Alkategória:Irodaházban
- Alapterület:77 m2
- Csere is:Nem
- Hirdető:Cég
- Élő videón megtekinthető:Nem
- Állapot:Jó állapotú
- Hány szintes az ingatlan:nincs megadva
- Hányadik emeleti:nincs megadva
- Parkolási lehetőség:nincs megadva
- Őrzött parkoló:nincs megadva
- Bútorozottság:nincs megadva
- Fényviszony:nincs megadva
- Tájolás:nincs megadva
- Kilátás:nincs megadva
- Internet:nincs megadva
- Klíma:nincs megadva
- Akadálymentesített:nincs megadva
- Energiatanúsítvány:nincs megadva
- Közös költség:230 000 Ft
- Kapcsolatfelvétel

Tóth Melinda
+36-(70)-467-6732
Mondd meg a hirdetőnek, hogy a megveszLAK-on találtad a hirdetést.
Hitel ajánlatok
Ingatlan hirdetés leírása
Börze Kereskedőház - fő irodaépület: III. KER. BÉCSI ÚT 252 "...
Börze Kereskedőház - fő irodaépület:
III. Ker. Bécsi út 252
"B"-épületszárny:
II. emelet
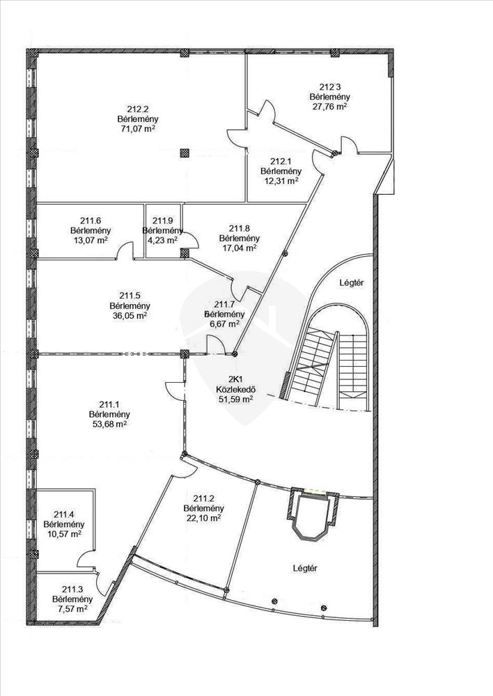
77 m2 helyiségcsoport, 3 m belmagassággal, jó beosztással, világos, déli tájolású, csendes, nem a főútra néző ablakokkal (alaprajz: 211. 5 - 9 Jelölésű helyiségek)
Az emelet közvetlenül megközelíthető a kereskedőház Bécsi úti főbejáratán át a központi földszinti aulából közlekedő panorámalifttel, a szinten pedig kellemes előtéri lehetőség is adott. Az említett liften keresztül ezenkívül szintén közvetlen hozzáférés biztosított a kereskedőház hátsó kijáratához, mely a belső, térkövezett udvarra (parkoló) vezet ki.
Bérleti díj: 9, 5 EUR+ÁFA/m2/hó
Üzemeltetési díj: 7, 5 EUR+ÁFA/m2/hó
Pénzügyi biztosíték (kaució): 3 hónap
Az üzemeltetési költség a fő irodaépület vonatkozásában tartalmazza az ügyfelek parkolását (nem korlátozott), a közös területek takarítását, szociális helyek, konyha- és WC-strangok használatát, általános építménybiztosítást, központi fűtési-hűtési költségeket, füstjelzők éves karbantartását, negyedévente kötelező megelőző jellegű rágcsáló- és rovarmentesítést, szemétszállítás költségét 0, 4 m3/hó mennyiségig és az építményadót. Nem tartalmazza az egyéni villany, víz- és internethasználat díját, a bérelt területek takarítását, valamint a bérlő dolgainak biztosítását.
Fix dolgozói/céges gépjárműparkoló-igény esetén annak díja: 29. 550 Ft+ÁFA/hó/személygépjármű. Hitel.hu - Hasonlítsa össze a bankok lakáshitel ajánlatait
Tetszett ez a kiadó Budapest III. kerületi jó állapotú iroda? Hívd fel a hirdetőt most, és tudj meg mindent erről a kiadó irodáról! Ha gondolod nézelődj tovább a kiadó iroda Budapest III. kerület oldal hirdetései között.
A kiadó irodák menüpontban további hirdetések között is böngészhetsz. Ha van kedved, akkor böngészhetsz a Tóth Melinda összes hirdetése között, vagy akár a/az Rock Home Prémium összes hirdetése között is.

