- >>
- albérletek
- >>
- kiadó iroda
- >>
- kiadó iroda Budapest V. kerület
- >>
Kiadó jó állapotú iroda - Budapest V. kerület
| | |||
| Kedvencnek jelölöm | Elküldöm emailben | Megosztás | Szavazás |
| Kedvezményes lakáshitel ajánlatok | |||
| 2 680 313 HUF/Hó | |||
Ingatlan adatai
- Eladó vagy kiadó:Kiadó
- Település:Budapest V. kerület
- Kategória:Iroda
- Alkategória:Irodaházban
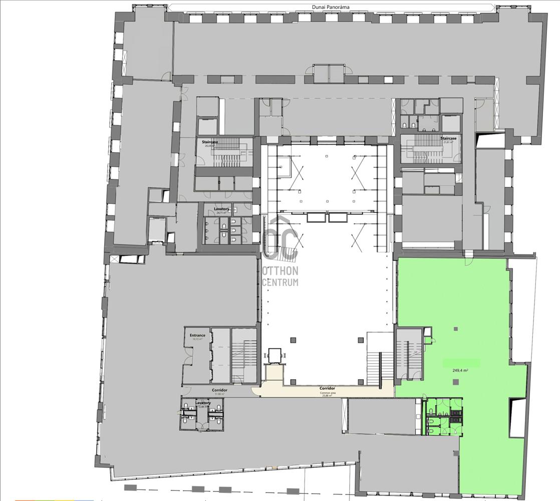
- Alapterület:286 m2
- Csere is:Nem
- Hirdető:Cég
- Élő videón megtekinthető:Nem
- Állapot:Jó állapotú
- Hány szintes az ingatlan:nincs megadva
- Hányadik emeleti:nincs megadva
- Parkolási lehetőség:nincs megadva
- Őrzött parkoló:nincs megadva
- Bútorozottság:nincs megadva
- Fényviszony:nincs megadva
- Tájolás:nincs megadva
- Kilátás:nincs megadva
- Internet:nincs megadva
- Akadálymentesített:nincs megadva
- Energiatanúsítvány:nincs megadva
- Üzenetküldés
- Hívás


Ingatlan hirdetés leírása
5.ker. Banknegyedben lévő irodaház 1.em.-i területen 286m2 kia...
5. Ker. Banknegyedben lévő irodaház 1. Em. -I területen 286m2 kiadóKÖRNYEZET:
A főváros üzleti, kormányzati, turisztikai és kulturális negyedében álló, belvárosi irodaház az esg szellemében kiemelkedő digitális kapcsolatokat, okos megoldásokat, akadálymentességet és közösségi funkciókat is biztosít.
A tervezett belsőépítészeti és műszaki megoldások, a közös területek és az irodahelyiségek megújulása a fenntarthatóság jegyében zajlik, a környezettudatos minősítések megszerzése mellett pedig az épület a nettó zéró kibocsátást is megcélozza.
Az átalakítással és újra pozicionálással a tulajdonos a legújabb bérlői elvárásoknak megfelelő épületet hoz létre, amely innovatív üzemeltetést, kényelmi 'concierge' szolgáltatásokat és flexibilisen alakítható irodaterületeket kínál. Az irodaház a klasszikus luxust a modern technikával ötvözve nyújt professzionális munkakörnyezetet és kimagasló ügyfélélményt 12. 500m2-en.
ÉPÜLET műszaki JELLEMZŐI:
Mennyezeti hűtés-fűtés
Nyitható ablakok
Érintésmentes beléptető rendszer (qr kód és NFC)
Szünetmentes áramszolgáltatás
Moduláris álpadló és padlószőnyeg
Energiahatékony, jelenlét érzékelős LED-világítás
7 személylift, 1 teherlift
50m3/fő/óra frisslevegő befúvás
IRODAHÁZ SZOLGÁLTATÁSAI:
Bérelhető tárgyalók
Konferenciaterem
Étterem, kávézó
Helyszíni üzemeltetés
Cocierge szolgáltatás
Kerékpár tárolók
Öltözők, zuhanyzók
Autómosó
MINŐSÍTÉSEK
WELL Platinum és Gold
BREEAM Excellent
WiredScore
Access4You Hitel.hu - Hasonlítsa össze a bankok lakáshitel ajánlatait


