- >>
- albérletek
- >>
- kiadó iroda
- >>
- kiadó iroda Budapest VI. kerület
- >>
Kiadó iroda - Budapest VI. kerület
| | |||
| Kedvencnek jelölöm | Elküldöm emailben | Megosztás | Szavazás |
| Kedvezményes lakáshitel ajánlatok | |||
| 3 801 335 HUF/Hó | |||
Ingatlan adatai
- Eladó vagy kiadó:Kiadó
- Település:Budapest VI. kerület
- Kategória:Iroda
- Alkategória:Irodaházban
- Alapterület:476 m2
- Csere is:Nem
- Hirdető:Cég
- Élő videón megtekinthető:Nem
- Állapot:nincs megadva
- Hány szintes az ingatlan:nincs megadva
- Hányadik emeleti:nincs megadva
- Parkolási lehetőség:nincs megadva
- Őrzött parkoló:nincs megadva
- Bútorozottság:nincs megadva
- Fényviszony:nincs megadva
- Tájolás:nincs megadva
- Kilátás:nincs megadva
- Internet:nincs megadva
- Akadálymentesített:nincs megadva
- Energiatanúsítvány:nincs megadva
- Üzenetküldés
- Hívás


Hitel ajánlat
Ingatlan hirdetés leírása
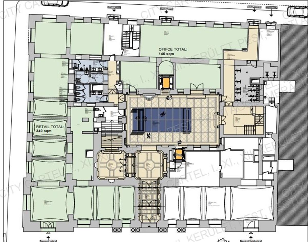
6. kerületben Budapest szívében kiadó 5 szinten, 4 600 nm els...
6. kerületben Budapest szívében kiadó 5 szinten, 4 600 nm első osztályú iroda, 2022 decemberétőlAz irodaház 5 szinten (földszint + 4 emelet) kínál bérelhető területet, mintegy 4600 nm-en.
Minden korszerű irodaigényt kielégítő felszereltséggel el van látva
Jellemzők:
-476 és 928 nm közötti alapterületek
-Nyitható ablakok
-A fűtést és hűtést négy fan-coil biztosítja, amely főként a mennyezeti hézagban helyezkednek el, és minden helyiségben független termosztátokkal rendelkezik.
-LED-es függesztett lámpák az irodahelyiségekben – az asztal magasságában átlagosan 500 lux fényt biztosítanak.
-Éjjel-nappali, személyzettel ellátott recepciós szolgálat
-Beléptető rendszer az irodai bejárati ajtóknál, liftekben, lépcsőházakban és fő közlekedési pontokon
-Digitális kamerás megfigyelőrendszer a közös helyiségekben és az épület külső részén
-Kettős áramellátás, két független középfeszültségű egység
-Biztonságos belső kerékpárparkoló, amely az ingatlan hátsó részéből érhető el
-Közös zuhanyzó és mosdóhelyiségek öt fülkével és szekrényekkel
Bérlési idő min 5 év
Bérleti díj: 20-25 EUR/nm/hó + ÁFA
Üzemeltetési díj: 4, 3 EUR/nm/hó + áfa Hitel.hu - Hasonlítsa össze a bankok lakáshitel ajánlatait

