- >>
- albérletek
- >>
- kiadó iroda
- >>
- kiadó iroda Budapest VIII. kerület
- >>
Kiadó újszerű állapotú iroda - Budapest VIII. kerület
| | |||
| Kedvencnek jelölöm | Elküldöm emailben | Megosztás | Szavazás |
| Kedvezményes lakáshitel ajánlatok | |||
| 1 392 199 HUF/Hó | |||
Ingatlan adatai
- Eladó vagy kiadó:Kiadó
- Település:Budapest VIII. kerület
- Kategória:Iroda
- Alkategória:Irodaházban
- Alapterület:197 m2
- Csere is:Nem
- Hirdető:Cég
- Élő videón megtekinthető:Nem
- Állapot:Újszerű, kitűnő
- Hány szintes az ingatlan:nincs megadva
- Hányadik emeleti:7
- Parkolási lehetőség:nincs megadva
- Őrzött parkoló:nincs megadva
- Bútorozottság:nincs megadva
- Fényviszony:nincs megadva
- Tájolás:nincs megadva
- Kilátás:nincs megadva
- Internet:nincs megadva
- Akadálymentesített:nincs megadva
- Energiatanúsítvány:nincs megadva
- Üzenetküldés
- Hívás


Ingatlan hirdetés leírása
Kiadó Iroda, Budapest 8. kerület, Palotanegyed, Kálvin tér, 19...
Kiadó irodák Budapest legnépszerűbb csomópontjánál Kálvin térnél, a kategóriás, modern, 9 szintes irodaházban. Az épület különlegessége a lenyűgöző panoráma. Központi elhelyezkedésének köszönhetően bármely irányból kényelmesen megközelíthető tömegközlekedéssel és gépkocsival egyaránt. a környéken számos étterem, kávézó és bisztró biztosítja a bérlőink kényelmét.Jelenleg kiadó szabad területeink:
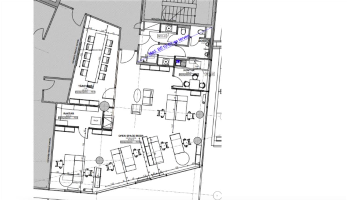
-1. emelet: 155 nm-es iroda terület (2024. Májusától)
Jelenlegi kialakítása: recepció, open space terület, 1 tárgyaló, kis raktárhelyiség, saját teakonyha, nemenkénti mosdók.
-7. emelet:317 nm -Jelenleg 5 iroda helyiségből, nemenkénti mosdókból és teakonyhából áll.
Bérleti díj:18, 5 €/nm/hó+Áfa
Üzemeltetési díj: 7 €/nm/hó+Áfa
Min. Bérleti idő: 5 év
Kaució: 3 havi
Közös területi szorzó: 5, 58 %
Mélygarázs parkoló díja: 160 €+Áfa
Szolgáltatások:
Recepció, biciklitároló, 24 órás biztonsági szolgálat, öltözők és zuhanyzók, Bankfiók, Kártyás beléptető rendszer stb.
Megközelíthetőség:
Busz:. . . . . Ös járatokkal
Villamos:47, 48, 49-es
Metró: m3, m4
Troli: 72M, 83M
További információ az alábbi elérhetőségeken:
• 06_30_33o _0101
• o6_3o_751_242o
Az adatok tájékoztató jellegűek, ajánlat tételnek nem minősül. Hitel.hu - Hasonlítsa össze a bankok lakáshitel ajánlatait


