Kiadó újszerű állapotú iroda - Budapest XI. kerület
- INGYENES HIRDETÉS FELADÁS
Ingatlan adatai
- Eladó vagy kiadó:Kiadó
- Település:Budapest XI. kerület
- Kategória:Iroda
- Alkategória:Irodaházban
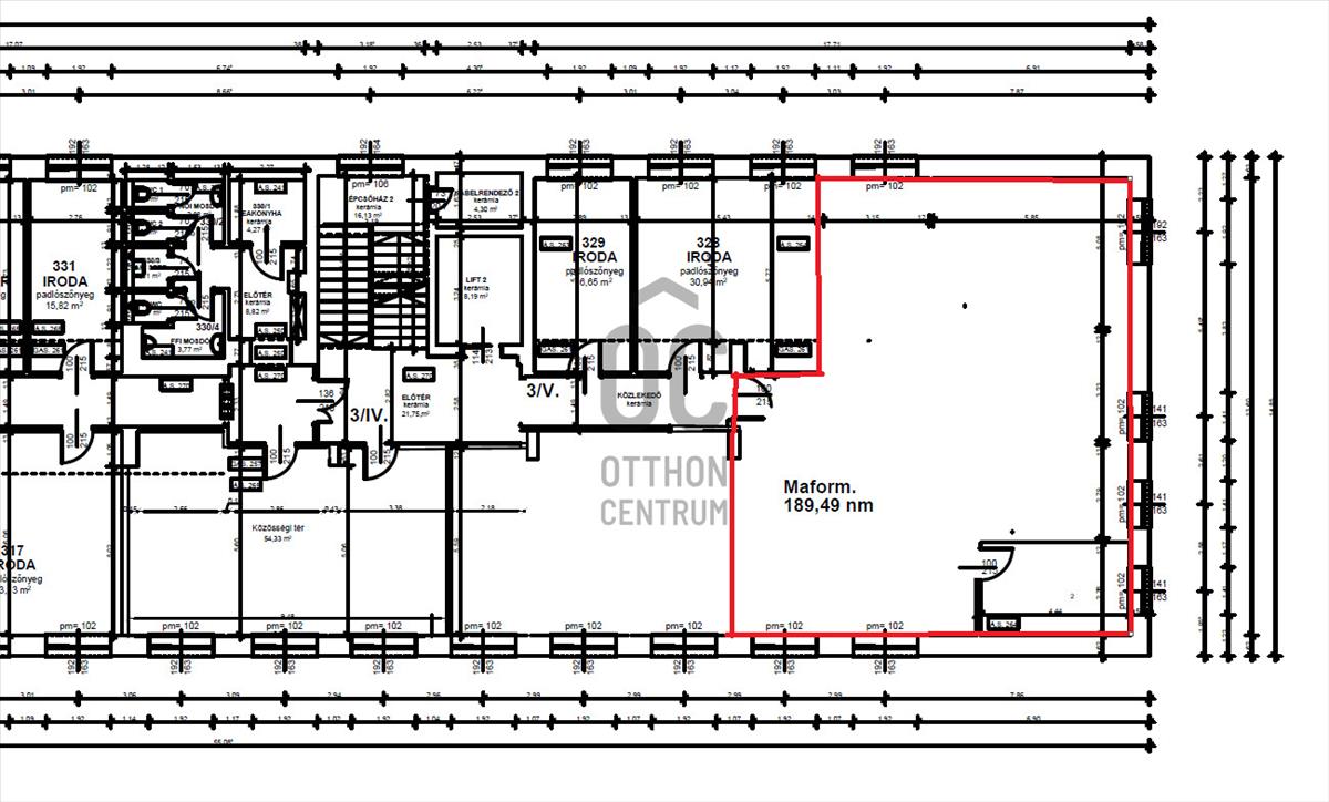
- Alapterület:150 m2
- Csere is:Nem
- Hirdető:Cég
- Élő videón megtekinthető:Nem
- Állapot:Újszerű, kitűnő
- Hány szintes az ingatlan:nincs megadva
- Hányadik emeleti:nincs megadva
- Parkolási lehetőség:nincs megadva
- Őrzött parkoló:nincs megadva
- Bútorozottság:nincs megadva
- Fényviszony:nincs megadva
- Tájolás:nincs megadva
- Kilátás:nincs megadva
- Internet:nincs megadva
- Klíma:nincs megadva
- Akadálymentesített:nincs megadva
- Energiatanúsítvány:nincs megadva
- Kapcsolatfelvétel

Szilágyi Dezső
+36-(70)-716-8811
Mondd meg a hirdetőnek, hogy a megveszLAK-on találtad a hirdetést.
Ingatlan hirdetés leírása
A minimum bérbeadási idő 2 év. • 2 (Kettő) éves időtartam es...
A minimum bérbeadási idő 2 év.
• 2 (Kettő) éves időtartam esetén a Bérleti díj 10, 5 Euro/m2/hó + áfa, emellett megfizetésre kerül az Üzemeltetési költség, amely 5 Euro/m2/hó + áfa, és külön számítandó a +rezsi költség is. (Tartalmazza az áram, gáz szolgáltatást), melynek elszámolása az áram esetében külön mérőóra alapján, a gáz elszámolása területarányosan történik.
• 3+ (Három) éves időtartam esetén a Bérleti díj 10 Euro/m2/hó + áfa, emellett megfizetésre kerül az Üzemeltetési költség, amely 5 Euro/m2/hó + áfa, és külön számítandó a +rezsi költség is. (Tartalmazza az áram, gáz szolgáltatást), melynek elszámolása az áram esetében külön mérőóra alapján, a gáz elszámolása területarányosan történik.
A bérleti díj módosítása a Központi Statisztikai Hivatal (ksh) által közzétett inflációs index szerint minden év január 01. Napjával történik meg.
A fent említett árak a bútorozatlan irodahelyiségre vonatkoznak, bútorozottan az ár változik. Amennyiben bútorozottak kívánják kivenni a helyiséget, jelezzék felénk.
Magyarázat:
Rezsi: a fent említett díjakon felül Bérlő megfizeti a Bérlemény mindenkori közüzemi díjait (áram és gázfogyasztás díja) oly módon, hogy a Bérbeadó a közüzemi szolgáltatók által, részére kiszámlázott közüzemi díjakat továbbszámlázza a Bérlő részére.
A villamosenergia szolgáltatás tekintetében a Bérbeadó és a Bérlő Hálózati Szolgáltatás és villamosenergia továbbadási szerződést kötnek egymással, amelynek alapján kerül a Bérlő által felhasznált villamosenergia átadásra és kiszámlázásra.
A gázszolgáltatás tekintetében a Bérlő területarányos díjfizetésre köteles, ennek megfelelően az Irodaház havi gázfogyasztásának számlájából, az általa bérelt területtel arányos mértékű részt tartozik a Bérbeadó részére megfizetni. a közüzemi díjak jelen pont szerinti megfizetése a Bérbeadó által kibocsájtott (továbbszámlázott) közüzemi számlákon feltüntetett határidőben esedékes.
Mosdó, valamint konyha a közös folyosón található.
A lift teherbírása 680 kg.
Irodaházunknál 3 db felszíni parkolóhelyet tudunk biztosítani, ennek az ára 80 EUR+ÁFA/hó.
Mélygarázsban található parkolóhely igény szerint bérelhetők. Hitel.hu - Hasonlítsa össze a bankok lakáshitel ajánlatait


