Kiadó átlagos állapotú iroda - Budapest XIV. kerület
- INGYENES HIRDETÉS FELADÁS
Ingatlan adatai
- Eladó vagy kiadó:Kiadó
- Település:Budapest XIV. kerület
- Kategória:Iroda
- Alkategória:Irodaházban
- Alapterület:38 m2
- Csere is:Nem
- Hirdető:Cég
- Élő videón megtekinthető:Nem
- Állapot:Átlagos állapotú
- Hány szintes az ingatlan:nincs megadva
- Hányadik emeleti:4
- Parkolási lehetőség:nincs megadva
- Őrzött parkoló:nincs megadva
- Bútorozottság:Bútorozatlan
- Fényviszony:nincs megadva
- Tájolás:nincs megadva
- Kilátás:nincs megadva
- Internet:nincs megadva
- Klíma:nincs megadva
- Akadálymentesített:nincs megadva
- Energiatanúsítvány:nincs megadva
- Kapcsolatfelvétel

Kenyó Viktória
+36-(30)-868-6837
Mondd meg a hirdetőnek, hogy a megveszLAK-on találtad a hirdetést.
Hitel ajánlatok
Ingatlan hirdetés leírása
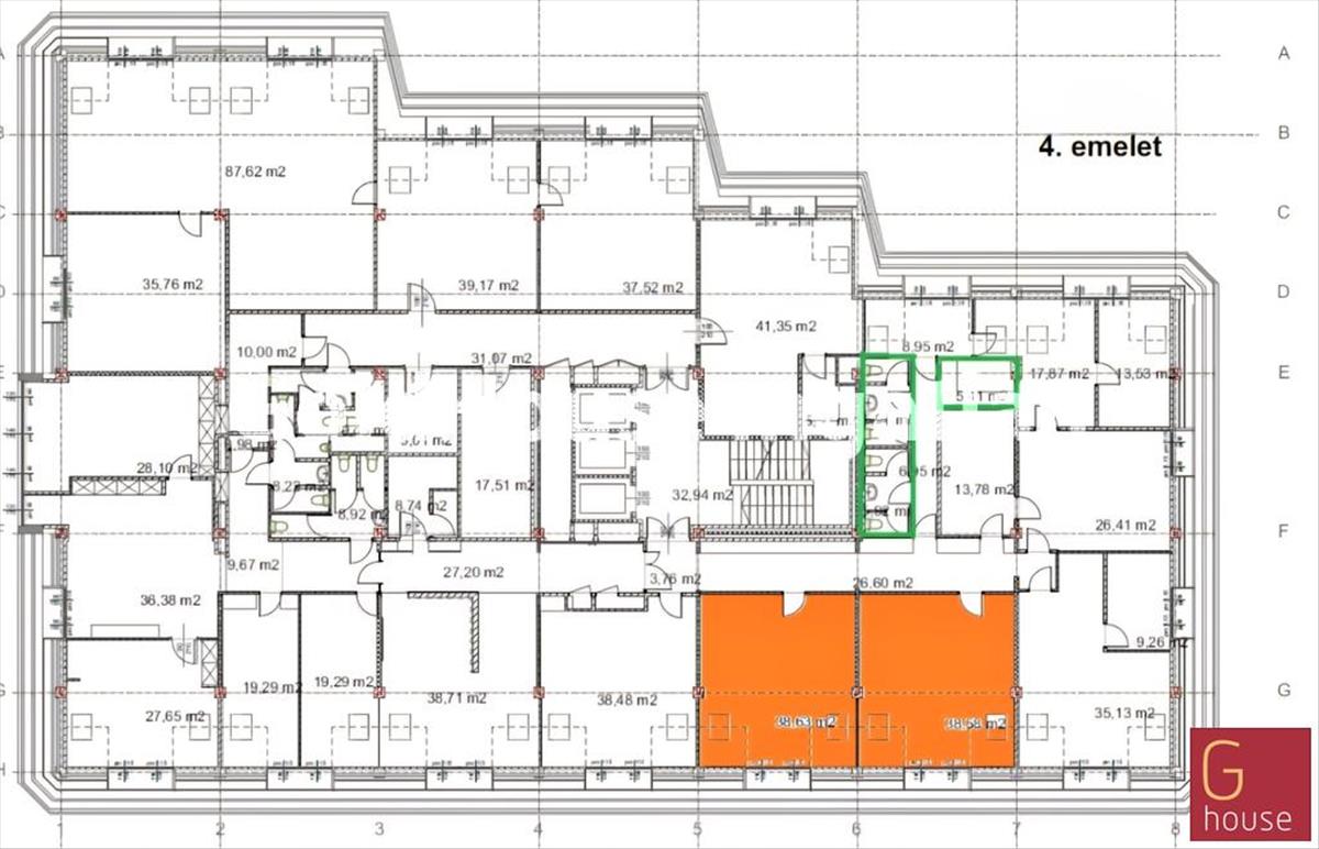
38.63 négyzetméteres, jó állapotú, kiadó iroda
Kiadó iroda – Hungária Irodaház, 38, 64 m²
Kiváló lokáció, remek megközelíthetőség!
Budapest frekventált részén, a Hungária körút és a Thököly út sarkán, a Hungária Irodaházban kiadó egy 38, 64 m²-es, világos és tágas irodahelyiség.
Az ingatlan saját elektromos órával rendelkezik, hűtése-fűtése parapet fan-coil rendszerrel megoldott. a helyiség rugalmasan alakítható, így ideális választás cégközpontnak, oktatási helyszínnek vagy shared office-ként is.
Közlekedés:
Kiváló tömegközlekedési kapcsolatok – mindössze 50 méterre az 1-es villamos, valamint több buszjárat (5, 7, 7e, 8e, 108e, 110, 112, 133e, 907, 973) megállója és Zugló vasútállomás is a közelben található.
Bérleti díj: 8, 9 € / m² / hó + ÁFA-tól
Üzemeltetési díj:** 2. 850 Ft / m² / hó + ÁFA
(+ saját áramfogyasztás)
Parkoló mélygarázsban megoldható melynek díja: 100 €+ÁFA,
Udvari parkoló díja: 55 100 €+ÁFA.
Közös területi szorzó: 7%
Szolgáltatások:
- 24 órás recepció szolgálat,
- Parapet fan-coil fűtő-hűtő klímarendszer,
- Étterem többféle napi menüvel,
- Mélygarázs és felszíni udvari parkolók,
- Rugalmasan osztható irodaterületek,
- Nyitható ablakok,
- Bicikli tároló,
- Zuhanyzási lehetőséggel ellátott öltözők,
- Egyéb szolgáltatások.
Ugyanitt még egy hasonló méretű és egymással össze nyitható helyiség is bérelhető! Hitel.hu - Hasonlítsa össze a bankok lakáshitel ajánlatait
Tetszett ez a kiadó Budapest XIV. kerületi átlagos állapotú iroda? Hívd fel a hirdetőt most, és tudj meg mindent erről a kiadó irodáról! Ha gondolod nézelődj tovább a kiadó iroda Budapest XIV. kerület oldal hirdetései között.
A kiadó irodák menüpontban további hirdetések között is böngészhetsz. Ha van kedved, akkor böngészhetsz a Kenyó Viktória összes hirdetése között, vagy akár a/az Gold House Ingatlan- és Hitelcentrum összes hirdetése között is.

