- >>
- albérletek
- >>
- kiadó iroda
- >>
- kiadó iroda Budapest XIV. kerület
- >>
Kiadó jó állapotú iroda - Budapest XIV. kerület
| | |||
| Kedvencnek jelölöm | Elküldöm emailben | Megosztás | Szavazás |
| Kedvezményes lakáshitel ajánlatok | |||
| 1 120 000 HUF/Hó | |||
Ingatlan adatai
- Eladó vagy kiadó:Kiadó
- Település:Budapest XIV. kerület
- Kategória:Iroda
- Alkategória:Irodaházban
- Alapterület:389 m2
- Csere is:Nem
- Hirdető:Cég
- Élő videón megtekinthető:Nem
- Állapot:Jó állapotú
- Hány szintes az ingatlan:nincs megadva
- Hányadik emeleti:nincs megadva
- Parkolási lehetőség:Udvaron
- Őrzött parkoló:nincs megadva
- Bútorozottság:nincs megadva
- Fényviszony:nincs megadva
- Tájolás:nincs megadva
- Kilátás:nincs megadva
- Internet:nincs megadva
- Akadálymentesített:nincs megadva
- Energiatanúsítvány:nincs megadva
- Üzenetküldés
- Hívás


Ingatlan hirdetés leírása
Kiadó Iroda, Budapest 14. kerület, Istvánmező, Stefánia út, 38...
Budapest XIV. kerületében, a Stefánia úton kiadó irodaház egész szintje.Az épület megközelítése kiváló. Saját, fákkal körbevett, aszfaltozott parkolójában 14 autó elfér, ezt az ár magába foglalja.
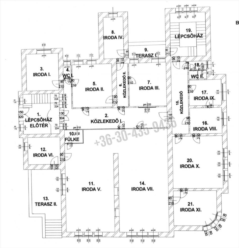
389 Nm-en irodák, mosdók, konyha is helyt kapott. (Lásd alaprajz)
Minden helyiség külön klimatizált. Fűtéséről házközponti kazán gondoskodik.
Az épületről: Felső szintje jelenleg ki van adva. 1 Emelet ( 382 nm) és az alagsor (200 nm) hasonló felszereltséggel és adottságokkal szintén kiadó. Bővebb információért keressen.
Amiben még segítségére lehetek:
*Ingatlan-értékbecslés
*Jogi háttér
*Hitelügyintézés
*Energetikai tanúsítvány
*Drón felvétel
*Közmű ügyintézés Hitel.hu - Hasonlítsa össze a bankok lakáshitel ajánlatait


