Kiadó újszerű állapotú iroda Budapest XV. kerület
| Kedvencbe | Megosztás | Árfigyelő |
| Kedvezményes lakáshitel ajánlatok | ||
| 128 666 HUF/Hó | ||
Ingatlan adatai
- Eladó vagy kiadó:Kiadó
- Település:Budapest XV. kerület
- Kategória:Iroda
- Alkategória:Irodaházban
- Alapterület:38 m2
- Csere is:Nem
- Hirdető:Cég
- Élő videón megtekinthető:Nem
- Állapot:Újszerű, kitűnő
- Hány szintes az ingatlan:nincs megadva
- Hányadik emeleti:nincs megadva
- Parkolási lehetőség:nincs megadva
- Őrzött parkoló:nincs megadva
- Bútorozottság:nincs megadva
- Fényviszony:nincs megadva
- Tájolás:nincs megadva
- Kilátás:nincs megadva
- Internet:nincs megadva
- Akadálymentesített:nincs megadva
- Energiatanúsítvány:nincs megadva
- Üzenetküldés
- Hívás


Hitel ajánlat
Ingatlan hirdetés leírása
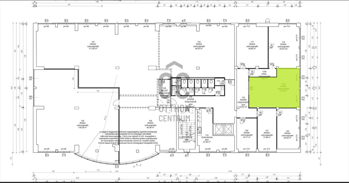
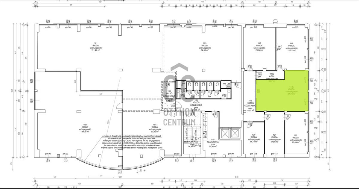
Kiadó iroda helyiség egy modern irodaházban a XV. kerületben. ...
Kiadó iroda helyiség egy modern irodaházban a XV. kerületben.Paraméterek:
- i. emeleten elhelyezkedő iroda
- 37, 78 nm
- minimum 12 hónapos bérleti időszak
- 1 havi bérleti díj és 2 havi kaució megfizetése szükséges
- bérleti díj 9 EUR/nm + ÁFA
- üzemeltetési költség 1800, -/nm + ÁFA
- portaszolgálattal rendelkező irodaház
Az irodaház teljeskörű felújítása megkezdődött, min b+ energetikai besorolással fog rendelkezni.
Hőszivattyús hűtés-fűtés, lift kialakítás, teljes szintátrendezés és műszaki korszerűsítés.
Bérleti díjak 9-13EUR/nm+áfa díjtól.
Utcai illetve bérelhető udvari gépkocsi beállókkal kialakított irodaház.
Lehetőség nyílik utcafronti üzlethelyiség illetve vendéglátó egység /kávézó, pékség, irodai kantin üzemeltetésére is/
A kínálatunkban szerepel az irodaházban lévő több raktár, üzlethelyiség és számos kisebb illetve nagyobb alapterületű kiadó iroda is.
Bővebb tájékoztatás miatt kérem keressen mielőbb.
Előzetesen meghatározott helyiség elfoglalás illetve bérlési időszak kezdete 2025 augusztus. a bérbeadó nagyon rugalmasan tudja kezelni az igényeket és a bérlemény kialakítását.
Legkisebb bérelhető iroda 12nm, de egészen 600 nm-es irodai blokk is elérhető.
Várom megtisztelő hívását, hogy mielőbb segítsek megtalálni Önnek a legjobb választást. Hitel.hu - Hasonlítsa össze a bankok lakáshitel ajánlatait

