Kiadó iroda Szeged
| Kedvencbe | Megosztás | Árfigyelő |
| Kedvezményes lakáshitel ajánlatok | ||
| 925 066 HUF/Hó | ||
Ingatlan adatai
- Eladó vagy kiadó:Kiadó
- Település:Szeged
- Kategória:Iroda
- Alkategória:Irodaházban
- Alapterület:252 m2
- Csere is:Nem
- Hirdető:Cég
- Élő videón megtekinthető:Nem
- Állapot:nincs megadva
- Hány szintes az ingatlan:2 szintes
- Hányadik emeleti:1
- Parkolási lehetőség:Utcán
- Őrzött parkoló:nincs megadva
- Bútorozottság:nincs megadva
- Fényviszony:nincs megadva
- Tájolás:nincs megadva
- Kilátás:nincs megadva
- Internet:nincs megadva
- Akadálymentesített:nincs megadva
- Energiatanúsítvány:nincs megadva
- Üzenetküldés
- Hívás


Hitel ajánlat
Ingatlan hirdetés leírása
KIADÓ TELJES IRODASZINT SZEGED BELVÁROSÁBAN – A KÍGYÓ UTCÁBAN ...
Kiadó teljes irodaszint Szeged belvárosában – a kígyó UTCÁBANModern, reprezentatív iroda a város szívében.
Szeged belvárosának egyik legfrekventáltabb utcájában, a Kígyó utcában kínálunk kiadásra egy teljes irodaszintet egy liftes, teljeskörűen felújított irodaházban. Az ingatlan ideális választás olyan cégek számára, akik számára fontos a presztízs, a kiváló megközelíthetőség és a modern munkakörnyezet.
Az iroda az első emeleten helyezkedik el, az egész szint egyben bérelhető, így teljesen szeparált, önálló működést biztosít.
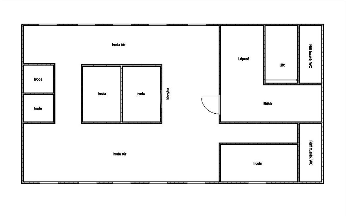
IRODA kialakítása és MÉRETEI
Teljes alapterület: 252 m²
Kialakítás: modern, egy légterű iroda
A központi térben:
- több, különböző méretű üvegfalú zárt iroda / tárgyaló
- egy nagyobb méretű vezetői iroda
Előtér
Gépesített konyha
Férfi és női wc + tusoló
Bútorozatlan – saját arculatra szabható
Az üvegfalas megoldások világos, inspiráló munkakörnyezetet teremtenek, miközben a zárt irodák megfelelő diszkréciót biztosítanak vezetői vagy tárgyaló funkciókra.
MŰSZAKI TARTALOM
- Fan-coil rendszerű hűtés–fűtés, egyedileg szabályozható
- Teljesen felújított épület
- Lift
- Utcáról nyíló, reprezentatív bejárat
- Korszerű gépészet, alacsony üzemeltetési kockázat
LOKÁCIÓ – belváros, kígyó UTCA
A Kígyó utca Szeged egyik legismertebb belvárosi utcája:
- kiváló tömegközlekedés
- éttermek, kávézók, bankok, szolgáltatások közvetlen közelben
- könnyű ügyfélfogadás, presztízsértékű cím
- ideális ügyvédi iroda, it cég, tanácsadó vállalkozás, szolgáltató központ vagy regionális iroda számára
BÉRLETI FELTÉTELEK
Bérleti díj: 9, 7 eur / m² / hó
Üzemeltetési költség: 3 eur / m² / hó
Rezsi: fogyasztás alapján
KINEK IDEÁLIS?
Olyan cégeknek, akik belvárosi jelenlétet keresnek
Ügyfélforgalmat bonyolító vállalkozásoknak
Regionális központnak vagy növekvő csapat számára
Akik egy modern, egyben bérelhető, reprezentatív irodát szeretnének Szeged szívében Hitel.hu - Hasonlítsa össze a bankok lakáshitel ajánlatait

