Kiadó átlagos állapotú iroda Tatabánya
| Kedvencbe | Megosztás | Árfigyelő |
| Kedvezményes lakáshitel ajánlatok | ||
| 900 000 HUF/Hó | ||
Ingatlan adatai
- Eladó vagy kiadó:Kiadó
- Település:Tatabánya
- Kategória:Iroda
- Alkategória:Irodaházban
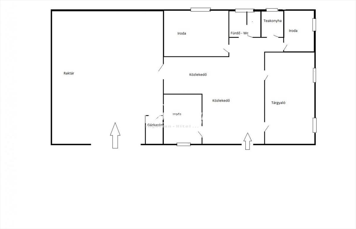
- Alapterület:390 m2
- Csere is:Nem
- Hirdető:Cég
- Élő videón megtekinthető:Nem
- Állapot:Átlagos állapotú
- Hány szintes az ingatlan:nincs megadva
- Hányadik emeleti:Földszint
- Parkolási lehetőség:nincs megadva
- Őrzött parkoló:nincs megadva
- Bútorozottság:nincs megadva
- Fényviszony:nincs megadva
- Tájolás:nincs megadva
- Kilátás:nincs megadva
- Internet:nincs megadva
- Akadálymentesített:nincs megadva
- Energiatanúsítvány:nincs megadva
- Üzenetküldés
- Hívás


Hitel ajánlat
Ingatlan hirdetés leírása
Lakáskulcs ingatlan, és hitel iroda bérlésre kínálja az alábbi...
Lakáskulcs ingatlan, és hitel iroda bérlésre kínálja az alábbi ingatlant.Sokan keresnek ilyen lehetőséget, most itt VAN!
Multifunkciós irodánk várja új bérlőjét. Irodánk elosztásának köszönhetően több funkcióra is képes. Iroda + raktár, vagy halkabb összeszerelő - csomagoló depó.
Az ingatlan állapota jó, tágas irodahelyiségek, kényelmes folyosó, nagyon kellemes környezet jellemzi az egész miliőt.
A raktár helyiségbe magasabb teherautók is beférnek, a dolgozók több autóval is parkolhatnak, aki esetleg tömegközlekedéssel, vagy kerékpárral jár dolgozni, irodánk számukra is könnyen elérhető.
Közelben Tatabánya központja.
Tata, Oroszlány csupán 15 - 15 perc autóval. M1 -es autópálya, 1 -es főút egyaránt percek alatt elérhető.
Irodaházunk hosszú Évekre is bérelhető, így a cégük stabilitása könnyen kiszámítható.
Megtekintés, vagy kérdés esetén várom hívásukat, amit hétvégén is szívesen fogadok!
Irodánk ingyenes szolgáltatásai:
- Banki hitelügyintézés vezető partner bankjaink termékeivel
- CSOK ügyintézés
- Ingyenes felmérés, tanácsadás.
Irodánk egyéb szolgáltatásai: Ingatlan teljes körű felújítása- átalakítása profin, szakszerűen.
Kérem tekintse meg további hirdetéseimet is, várom hívását!
Ádám Csaba az Ön ingatlan szakértője. +36/70 677 0893 Hitel.hu - Hasonlítsa össze a bankok lakáshitel ajánlatait

