Kiadó iroda - Miskolc
- INGYENES HIRDETÉS FELADÁS
Ingatlan adatai
- Eladó vagy kiadó:Kiadó
- Település:Miskolc
- Kategória:Iroda
- Alkategória:Egyéb
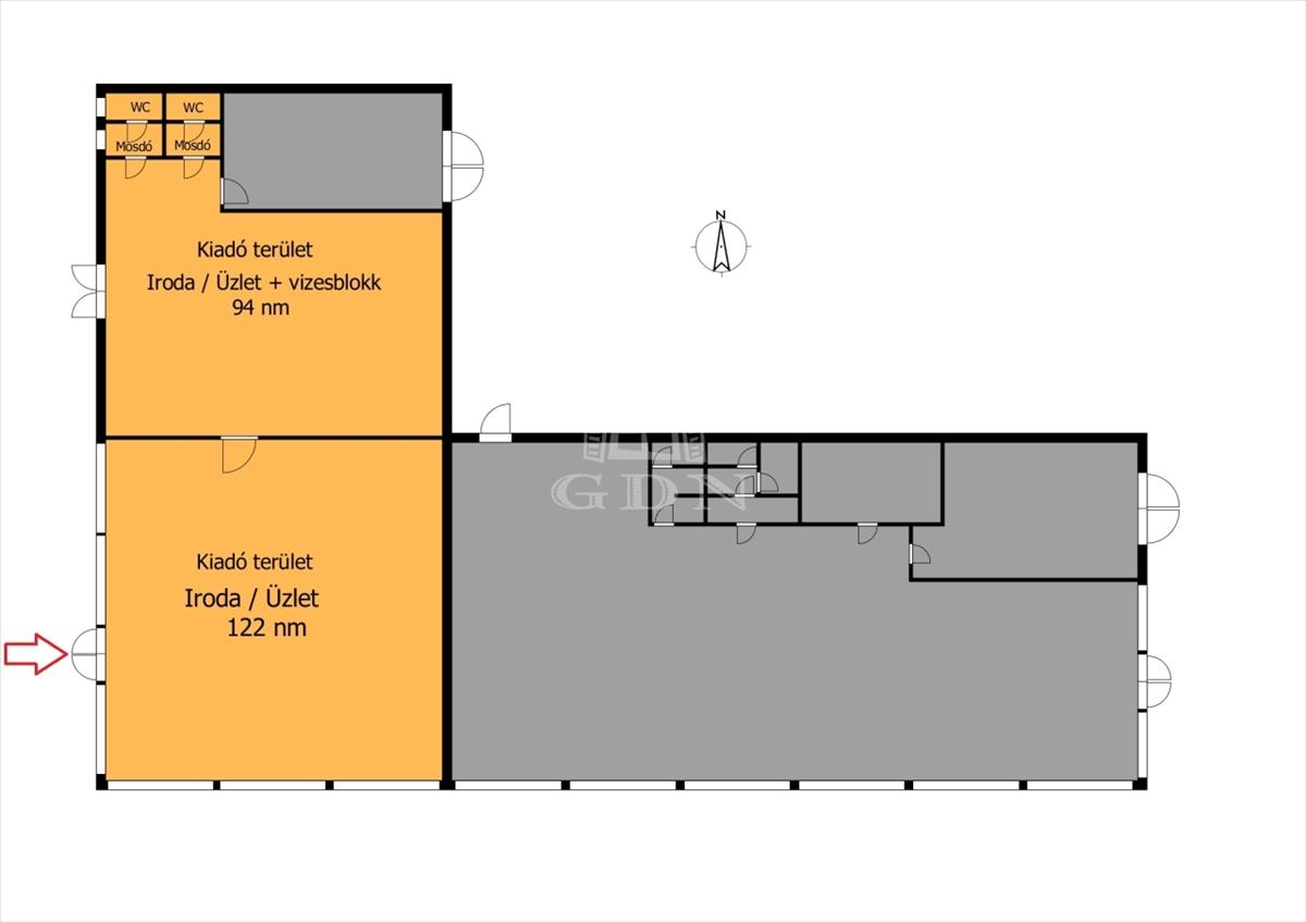
- Alapterület:216 m2
- Csere is:Nem
- Hirdető:Cég
- Élő videón megtekinthető:Nem
- Állapot:nincs megadva
- Hány szintes az ingatlan:Földszintes
- Hányadik emeleti:Földszint
- Parkolási lehetőség:Utcán
- Őrzött parkoló:nincs megadva
- Bútorozottság:nincs megadva
- Fényviszony:nincs megadva
- Tájolás:nincs megadva
- Kilátás:nincs megadva
- Internet:nincs megadva
- Klíma:nincs megadva
- Akadálymentesített:nincs megadva
- Energiatanúsítvány:nincs megadva
- Kapcsolatfelvétel

Sipos Imre
+36-(30)-825-9234
Mondd meg a hirdetőnek, hogy a megveszLAK-on találtad a hirdetést.
Hitel ajánlatok
Ingatlan hirdetés leírása
Kitűnő elhelyezkedésű, újszerű esztétikai és műszaki állapotú,...
Kitűnő elhelyezkedésű, újszerű esztétikai és műszaki állapotú, 216 nm-es iroda/üzlethelyiség kiadó!
Az ingatlan Miskolcon, a Kis-Hunyad utcában, a belvárostól pár percre található.
Az iroda fszt+1 emelet tagoltságú, utcafrontja nagy üvegfelülettel rendelkezik, így kiválóan reklámozható.
Az ingatlan magas minőségű nyílászárókkal és beltéri ajtókkal szerelt, a gazdaságos fűtést gázcirkó kazán látja el radiátoros hőleadással, valamint a helyiségek légkondicionálóval is fűthetők és hűthetők.
Az ingatlan irodai célon kívül alkalmas lehet pl. Magánrendelőnek, vagy bemutatóteremnek is.
Az épület közvetlen parkolási lehetőséggel rendelkezik.
Igény szerint a méret 366 nm-ig bővíthető, mely 244 nm földszinti, üvegportálos üzlethelyiséget, valamint 122 nm emeleti irodákat tartalmazhat.
Ár: 3440 Ft/nm+Áfa/hó (rezsiköltséget az ár tartalmazza).
A hirdetésben megadott bérleti díj a rezsiköltséget tartalmazza!
Érdeklődése esetén további információkért és megtekintés egyeztetéséhez, keressen bizalommal!
Ha eladó vagy kiadó ingatlana van és segítségre szorul az ingatlanpiacon, keresse irodánkat!
Hitel, csok, értékesítés, értékbecslés és minden, ami ingatlan! Hitel.hu - Hasonlítsa össze a bankok lakáshitel ajánlatait

