Kiadó műhely - Budapest XX. kerület
- INGYENES HIRDETÉS FELADÁS
Ingatlan adatai
- Eladó vagy kiadó:Kiadó
- Település:Budapest XX. kerület
- Kategória:Ipari ingatlan
- Alkategória:Műhely
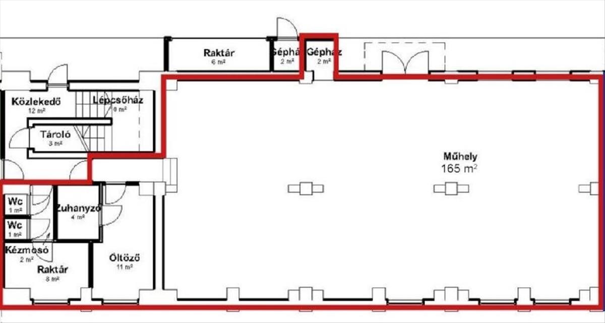
- Alapterület:206 m2
- Telekterület:nincs megadva
- Csere is:Nem
- Hirdető:Cég
- Élő videón megtekinthető:Nem
- Építés éve:1950
- Hány szintes az ingatlan:nincs megadva
- Hányadik emeleti:nincs megadva
- Parkolási lehetőség:Udvaron
- Energiatanúsítvány:nincs megadva
- Villany:nincs megadva
- Víz:nincs megadva
- Gáz:nincs megadva
- Csatorna:nincs megadva
- Kapcsolatfelvétel

Fodor Zoltán
+36-(70)-675-2821
Mondd meg a hirdetőnek, hogy a megveszLAK-on találtad a hirdetést.
Referencia szám: M327800
Hitel ajánlatok
Ingatlan hirdetés leírása
Kiadó Műhely, Budapest 20. ker.
Kiadó ipari ingatlan - Budapest XX. kerület!
Zárt, rendezett telephelyen bérbeadó egy sokoldalúan hasznosítható ipari ingatlan, amely legutóbb nyomdaként üzemelt. Ideális választás lehet gyártási, raktározási vagy egyéb ipari tevékenységekhez.
Választható alapterület:
- 260 m2 - 2. 000 Ft/m2 + áfa.
-206 m2 - 2. 200 Ft/m2 + áfa.
Műszaki jellemzők:
-Ipari áram: 3×150 a.
-Kiépített sűrített levegő hálózat.
-Fűtés: gázcirkó + klíma.
-20 Cm vastag, dupla vasalású ipari padló (műgyantázott).
- Szigetelt, műanyag nyílászárók.
-10 Cm külső hőszigetelés.
-Összes közmű az ingatlanon belül.
Kiegészítő helyiségek:
-Öltöző, wc és zuhanyzó.
Költségek:
-Közös költség: 150 Ft/m2 + áfa.
-Közművek egyedi mérés alapján fizetendők.
Egyéb előnyök:
-Az épület mellett 2 autó számára parkolási lehetőség.
-Zárt telephely, a kapu munkaidőben nyitva.
-Üzemidőn kívül távirányítóval biztosított bejutás.
Az ingatlan kiváló infrastruktúrával és rugalmas kialakítással várja új bérlőjét. Ha egy jól megközelíthető, ipari célokra optimalizált helyet keres, ez a lehetőség ideális választás lehet.
Érdeklődés esetén keressen bizalommal!
Referencia szám: m327800 Hitel.hu - Hasonlítsa össze a bankok lakáshitel ajánlatait
Tetszett ez a kiadó Budapest XX. kerületi ipari ingatlan? Hívd fel a hirdetőt most, és tudj meg mindent erről a kiadó ipari ingatlanról! Ha gondolod nézelődj tovább a kiadó ipari ingatlan Budapest XX. kerület oldal hirdetései között.
A kiadó ipari ingatlanok menüpontban további hirdetések között is böngészhetsz. Ha van kedved, akkor böngészhetsz a Fodor Zoltán összes hirdetése között, vagy akár a/az OTPip Gregoryan Artur összes hirdetése között is.

