- >>
- albérletek
- >>
- kiadó ipari ingatlan
- >>
- kiadó ipari ingatlan Budapest XXII. kerület
- >>
Kiadó raktár - Budapest XXII. kerület
| | |||
| Kedvencnek jelölöm | Elküldöm emailben | Megosztás | Szavazás |
| Kedvezményes lakáshitel ajánlatok | |||
| 1 421 355 HUF/Hó | |||
Ingatlan adatai
- Eladó vagy kiadó:Kiadó
- Település:Budapest XXII. kerület
- Kategória:Ipari ingatlan
- Alkategória:Raktár
- Alapterület:605 m2
- Telekterület:nincs megadva
- Csere is:Nem
- Hirdető:Cég
- Élő videón megtekinthető:Nem
- Építés éve:1970
- Hány szintes az ingatlan:nincs megadva
- Hányadik emeleti:nincs megadva
- Parkolási lehetőség:Garázs (bérelhető)
- Energiatanúsítvány:nincs megadva
- Villany:nincs megadva
- Víz:nincs megadva
- Gáz:nincs megadva
- Csatorna:nincs megadva
- Üzenetküldés
- Hívás


Hitel ajánlat
Ingatlan hirdetés leírása
Budapest XXII. kerületének egyik kedvelt ipari parkjában kiadó...
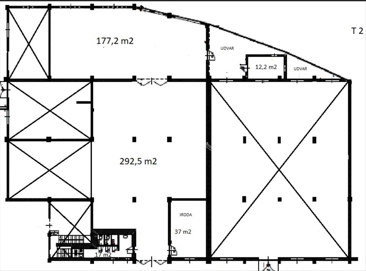
Budapest XXII. kerületének egyik kedvelt ipari parkjában kiadó 540 m2 alapterületű raktár – Iroda 177 m2 fűthető területtel rendelkezik.Kiváló lehetőség olyan cégeknek, akik a raktározásukat és termelő + irodai tevékenységüket egy helyszínen szeretnék üzemeltetni.
Telephely kialakítása:
Iroda: 37 m2
Füthető raktár: 177 m2 - munkaterületnek
Raktár: 292, 5 m2
Külső raktár:12, 5 m2
Szociális helységek: 17, m2 mosdó - zuhanyzó
Saját kertrész: 81, 5 m2
Bérleti díj: 3688 €
Fenntartási és üzemeltetési költséget tartalmazó bérleti díj 3688 € + almérők költsége
Bérleti idő: minimum 1 év.
Kaució: 2 havi bérleti díjnak megfelelő összeg.
Az M0-ás autópályától 1, 5 m-re található iparitelepre, engedély nélkül behajthatnak a 40 t. Kamionok és a teherautók.
Az iparitelep tömegközlekedéssel könnyen megközelíthető, telepen található étterem kávézó a munkavállalók napi kényelmét biztosítja. Parkolás a telep területén és az utcán biztosított.
A kiadó raktár azonnal bérbevehető!
Várjuk hívását! Hitel.hu - Hasonlítsa össze a bankok lakáshitel ajánlatait

