Kiadó újszerű állapotú lakás Budapest V. kerület
| Kedvencbe | Megosztás | Árfigyelő |
| Kedvezményes lakáshitel ajánlatok | ||
| 990 000 HUF/Hó | ||
Ingatlan adatai
- Eladó vagy kiadó:Kiadó
- Település:Budapest V. kerület
- Kategória:Lakás
- Alkategória:Tégla
- Alapterület:124 m2
- Csere is:Nem
- Hirdető:Cég
- Élő videón megtekinthető:Nem
- Szobaszám:3
- Állapot:Újszerű, kitűnő
- Hány szintes az ingatlan:Földszintes
- Komfortosság:nincs megadva
- Hányadik emeleti:2
- Lift:Van
- Parkolási lehetőség:Teremgarázsban
- Fűtés:Egyéb
- Bútorozottság:nincs megadva
- Fényviszony:Napfényes
- Tájolás:nincs megadva
- Kilátás:nincs megadva
- Internet:nincs megadva
- Klíma:Van
- Akadálymentesített:nincs megadva
- Energiatanúsítvány:nincs megadva
- Villany:Van
- Víz:Van
- Gáz:nincs megadva
- Csatorna:Van
- Közös költség:24 000 Ft
- Üzenetküldés
- Hívás

Urbán Ferenc Krisztián
Mondd meg a hirdetőnek, hogy a megveszLAK-on találtad a hirdetést.
Referencia szám: M293317

Hitel ajánlat
Ingatlan hirdetés leírása
Kiadó Lakás, Budapest 5. ker.
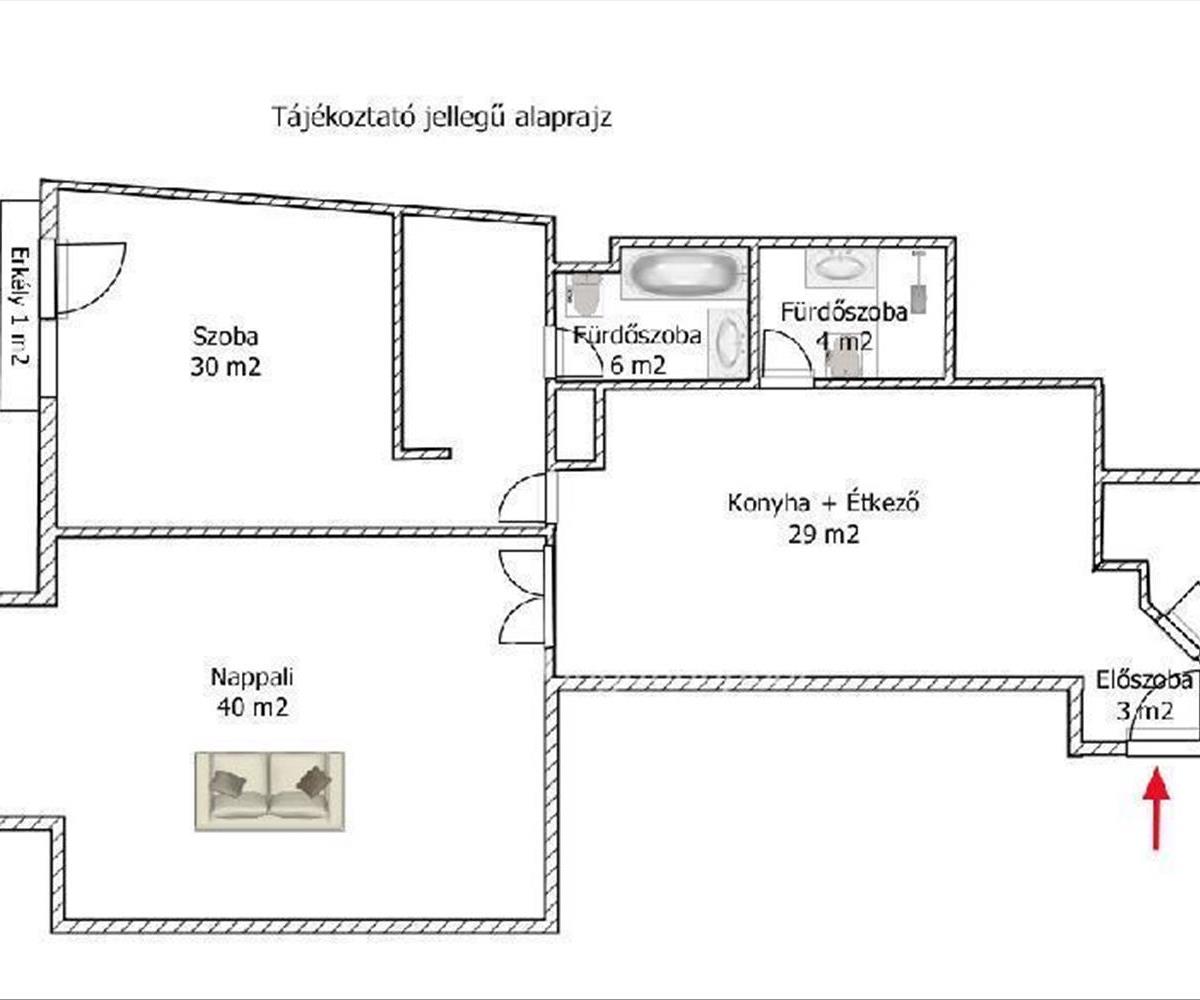
Kiadó luxuslakás a V. kerület szívében, a Petőfi Sándor utcában!Budapest egyik legexkluzívabb környékén, a Kígyó Udvar közvetlen szomszédságában, kiadó egy 127 m2-es, igényesen kialakított, jó állapotú tégla lakás. Az ingatlan tágas belső tereivel, magas belmagasságával és modern felszereltségével minden kényelmi igényt kielégít.
Az ingatlan főbb jellemzői:
Alapterület: 127 m2
Szobák száma: 3 (2 tágas hálószoba + világos nappali).
Állapot: jó állapotú, luxuskomforttal.
Elrendezés: különálló modern konyha és étkező, fürdőszoba külön és egyben is.
Emelet: 2. emeleten, liftes házban.
Kilátás: utcai, erkély 1 m2
Belmagasság: 3 méternél magasabb, elegáns térérzetet nyújt.
Klíma és fűtés: légkondicionáló, fan-coil és gázkazán.
Bútorozottság: megállapodás szerint.
Környék és közlekedés:
A lakás Budapest V. kerületének egyik legkeresettebb részén található, kiváló közlekedési lehetőségekkel. a belváros nyüzsgése és a Duna közelsége egyaránt kényelmet biztosít, miközben a környék patinás eleganciája emeli az ingatlan értékét.
Bevásárlás és szórakozás: éttermek, kávézók, boltok a közelben.
Tömegközlekedés: metró, villamos és buszmegállók rövid sétatávolságra.
Parkolás: teremgarázs hely biztosított.
Költségek:
Havi bérleti díj: érdeklődésre.
Közös költség: 24.000 Ft/hó.
Rezsi: kb. 40.000 Ft/hó (fogyasztás szerint).
Egyéb információk:
Min. Bérleti idő: 12 hónap.
Kisállat nem hozható.
Azonnal költözhető!
Kiváló választás lakásként, irodaként vagy rendelőként is, az elegáns környezethez méltó színvonalon.
Hívjon most, és tekintse meg ezt az exkluzív ingatlant személyesen!
Referenciaszám: m293317
Referencia szám: m293317-ML Hitel.hu - Hasonlítsa össze a bankok lakáshitel ajánlatait

