Kiadó felújított lakás Budapest V. kerület
| Kedvencbe | Megosztás | Árfigyelő |
| Kedvezményes lakáshitel ajánlatok | ||
| 2 689 889 HUF/Hó | ||
Ingatlan adatai
- Eladó vagy kiadó:Kiadó
- Település:Budapest V. kerület
- Kategória:Lakás
- Alkategória:Tégla
- Alapterület:299 m2
- Csere is:Nem
- Hirdető:Cég
- Élő videón megtekinthető:Nem
- Szobaszám:6
- Állapot:Felújított
- Hány szintes az ingatlan:4 szintes
- Komfortosság:nincs megadva
- Hányadik emeleti:nincs megadva
- Parkolási lehetőség:Udvaron (fizetős)
- Fűtés:Gáz (cirko)
- Bútorozottság:Gépesített
- Fényviszony:nincs megadva
- Tájolás:nincs megadva
- Kilátás:nincs megadva
- Internet:Optikai
- Klíma:Van
- Akadálymentesített:nincs megadva
- Energiatanúsítvány:nincs megadva
- Villany:Van
- Víz:Van
- Gáz:Van
- Csatorna:nincs megadva
- Üzenetküldés
- Hívás

Dr. Vincellér Zsuzsa
Mondd meg a hirdetőnek, hogy a megveszLAK-on találtad a hirdetést.

Hitel ajánlat
Ingatlan hirdetés leírása
CITYCARTEL INTERNATIONAL LUXURY REAL ESTATE AGENCY bemutatja: ...
CITYCARTELINTERNATIONAL luxury real estate AGENCY
bemutatja:
Exkluzív saroklakás Budapest szívében, a Bazilika szomszédságában
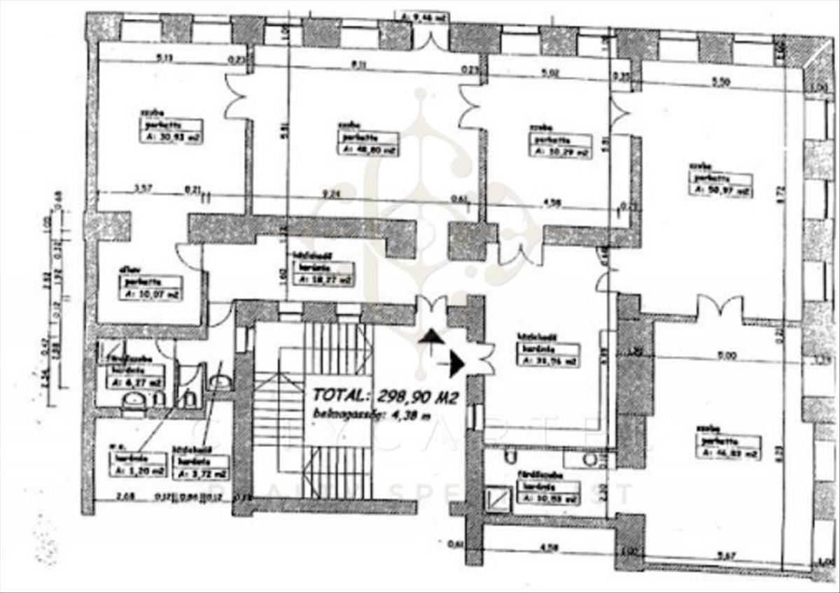
Budapest egyik legpatinásabb részén, az v. kerület szívében, a Hercegprímás utcában, közvetlenül a Szent István Bazilikára néző, elegáns liftes épületben hosszú távra kiadó egy páratlan adottságokkal rendelkező, 299 nm-es, 6 szobás, nagy belmagasságú saroklakás.
Az első emeleti, impozáns ingatlan rendkívül világos és tágas, kifinomult részletekkel díszített belső terekkel rendelkezik. Körbejárhatósága és két külön bejárata lehetőséget biztosít akár két szeparált iroda kialakítására is.
Főbb jellemzők:
Lokáció: Budapest belvárosának egyik legexkluzívabb részén, a Bazilika közvetlen közelében
Alapterület: 299 nm
Szobák száma: 6
Emelet: 1. emelet (liftes ház)
Bútorozás: Bútorozatlan
Külön bejáratok: Igen, két külön bejárattal rendelkezik
Körbejárható térszerkezet
Bérleti feltételek:
Bérleti díj: 7. 000 EUR/hó + rezsi + közös költség
Kaució: további 2 havi bérleti díj
Minimum bérlési idő: 12 hónap
Azonnal költözhető
Elegancia, presztízs és kiváló elhelyezkedés egybe!
Ha Ön is egy igazán exkluzív ingatlanra vágyik Budapest belvárosában, ne hagyja ki ezt a különleges lehetőséget!
További információért és megtekintésért várom hívását! Hitel.hu - Hasonlítsa össze a bankok lakáshitel ajánlatait

