Kiadó felújított lakás - Budapest VII. kerület
- INGYENES HIRDETÉS FELADÁS
Ingatlan adatai
- Eladó vagy kiadó:Kiadó
- Település:Budapest VII. kerület
- Kategória:Lakás
- Alkategória:Tégla
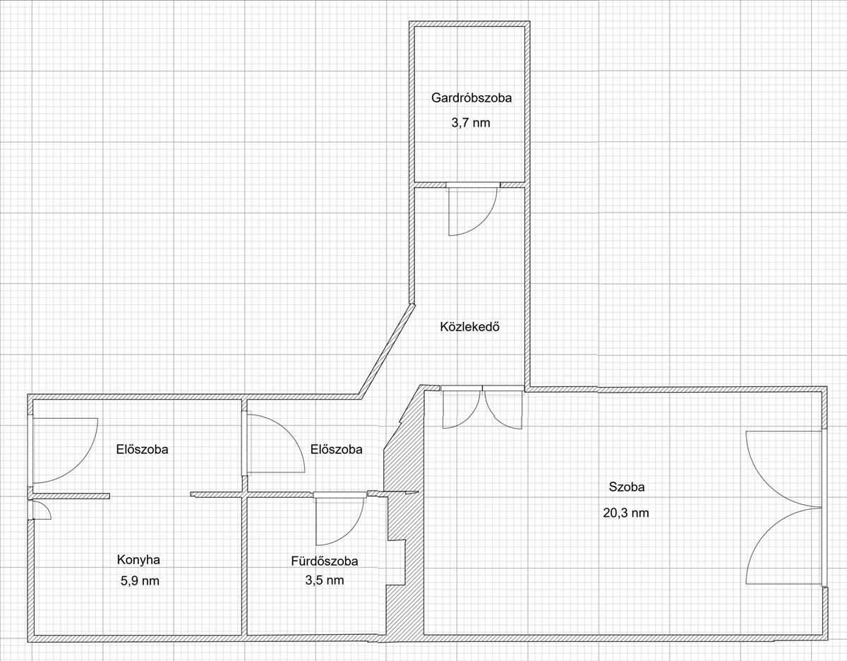
- Alapterület:47 m2
- Csere is:Nem
- Hirdető:Magánszemély
- Élő videón megtekinthető:Nem
- Szobaszám:1 + 1 fél
- Állapot:Felújított
- Hány szintes az ingatlan:5 szintes
- Komfortosság:nincs megadva
- Tetőtéri:Nem
- Kertkapcsolatos:Nem
- Hányadik emeleti:4
- Erkély:Nincs
- Lift:Van
- Parkolási lehetőség:nincs megadva
- Fűtés:Házközponti
- Bútorozottság:Bútorozatlan
- Fényviszony:Jó
- Tájolás:nincs megadva
- Kilátás:nincs megadva
- Internet:nincs megadva
- Klíma:nincs megadva
- Akadálymentesített:nincs megadva
- Energiatanúsítvány:nincs megadva
- Villany:nincs megadva
- Víz:nincs megadva
- Gáz:nincs megadva
- Csatorna:nincs megadva
- Közös költség:16 920 Ft
- Rezsi:10 000 Ft
- Kapcsolatfelvétel

Gyöngyi
+36-(20)-495-3113
Mondd meg a hirdetőnek, hogy a megveszLAK-on találtad a hirdetést.
Hitel ajánlatok
Ingatlan hirdetés leírása
KIADÓ LAKÁS A VÁROSLIGETNÉL, ALACSONY REZSIVEL, TULAJDONOSTÓL
Kiadó közvetlenül a Városliget mellett, Damjanich utcában, jó közlekedéssel, rendezett házban, IV. emeleti, világos, 47 m2-es, 3. 5 M belmagasságú (1 szoba + gardrób szoba + galéria), bútorozatlan, frissen felújított polgári lakás hosszú távra, 2 havi kaucióval, 1 havi bérleti díjjal, 1 éves bérleti szerződéssel.
A házban két lift működik.
Ajánlom 1 fő, max. Pár részére.
Kisállat tartása és dohányzás nem megengedett.
Rezsi: közös költség 16920. - Ft/hó + fűtés (házközponti) 6724. - Ft/hó, áram fogyasztás szerint Hitel.hu - Hasonlítsa össze a bankok lakáshitel ajánlatait
Tetszett ez a kiadó Budapest VII. kerületi felújított 1 egész és 1 fél szobás tégla lakás? Hívd fel a hirdetőt most, és tudj meg mindent erről a kiadó tégla lakásról! Ha gondolod nézelődj tovább a kiadó albérlet Budapest VII. kerület oldal hirdetései között.
A kiadó lakások menüpontban további hirdetések között is böngészhetsz. Az összes eladó budapesti lakás hirdetést tartalmazó oldalon tudsz böngészni. Ha van kedved, akkor böngészhetsz a Gyöngyi összes hirdetése között.

