Kiadó jó állapotú lakás - Budapest VII. kerület
- INGYENES HIRDETÉS FELADÁS
Ingatlan adatai
- Eladó vagy kiadó:Kiadó
- Település:Budapest VII. kerület
- Kategória:Lakás
- Alkategória:Tégla
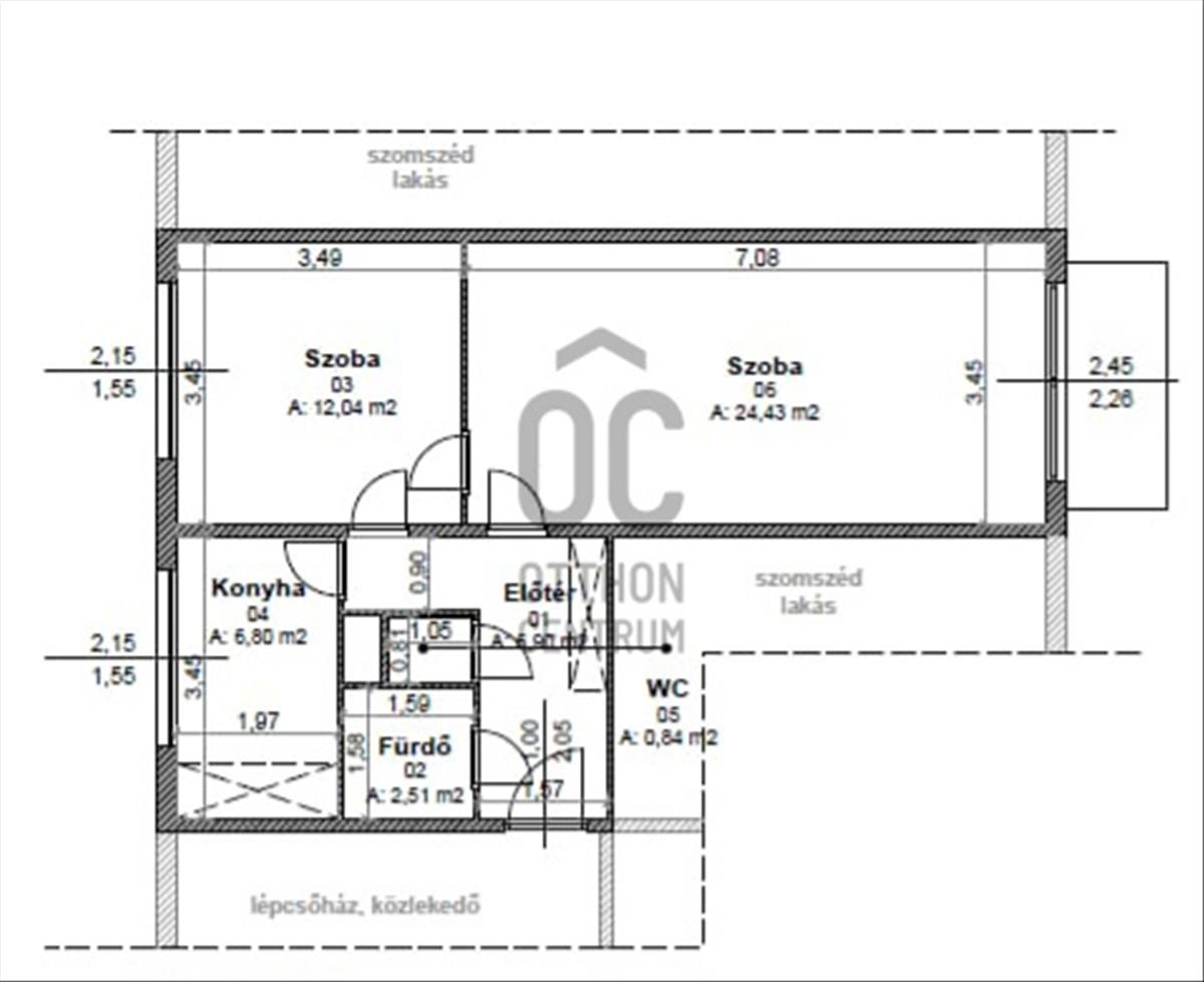
- Alapterület:75 m2
- Csere is:Nem
- Hirdető:Cég
- Élő videón megtekinthető:Nem
- Szobaszám:2
- Állapot:Jó állapotú
- Hány szintes az ingatlan:nincs megadva
- Komfortosság:nincs megadva
- Hányadik emeleti:3
- Erkély:nincs megadva
- Lift:Van
- Parkolási lehetőség:nincs megadva
- Fűtés:Gáz (cirko)
- Bútorozottság:nincs megadva
- Fényviszony:nincs megadva
- Tájolás:DNY
- Kilátás:Udvari
- Internet:nincs megadva
- Klíma:nincs megadva
- Akadálymentesített:nincs megadva
- Energiatanúsítvány:nincs megadva
- Villany:Van
- Víz:Van
- Gáz:Van
- Csatorna:Van
- Közös költség:40 000 Ft
- Kapcsolatfelvétel

Szuromi Mirella
+36-(70)-716-8181
Mondd meg a hirdetőnek, hogy a megveszLAK-on találtad a hirdetést.
Hitel ajánlatok
Ingatlan hirdetés leírása
VII. kerületben, a Kertész utcában, liftes társasház 3. emelet...
VII. kerületben, a Kertész utcában, liftes társasház 3. emeletén kiadásra kínálok egy 75 nm -es, 2 szobás, cirkófűtéses, bútorozatlan, udvari nézetű lakást.
A lakás jó elosztású, csendes, rendezett társasházban található.
Közös költség: 40 000 Ft/hó, amely tartalmazza a korlátlan vízfogyasztást, a felújítási alapot, a lift üzemeltetését és a szemétszállítást.
A lakás hosszú távra kiadó.
További információért kérem, keressen bizalommal.
Egyedi igényekre szabott lakáshitelekkel állunk rendelkezésére.
Bankfüggetlen Hitelcentrumunk az országban elérhető összes bank és hitelintézet ajánlatát versenyezteti az Ön számára díjmentesen.
Munkatársaink nagy szakmai tapasztalattal, teljes körű CSOK plusz és otthon start program ügyintézéssel várják Önt előre egyeztetett időpontban akár a normál munkaidő után is. Hitel.hu - Hasonlítsa össze a bankok lakáshitel ajánlatait
Tetszett ez a kiadó Budapest VII. kerületi jó állapotú 2 szobás tégla lakás? Hívd fel a hirdetőt most, és tudj meg mindent erről a kiadó tégla lakásról! Ha gondolod nézelődj tovább a kiadó albérlet Budapest VII. kerület oldal hirdetései között.
A kiadó lakások menüpontban további hirdetések között is böngészhetsz. Az összes eladó budapesti lakás hirdetést tartalmazó oldalon tudsz böngészni. Ha van kedved, akkor böngészhetsz a Szuromi Mirella összes hirdetése között, vagy akár a/az Otthon Centrum VII. kerület - Kertész utca összes hirdetése között is.

