Kiadó újszerű állapotú lakás - Budapest XIII. kerület
- INGYENES HIRDETÉS FELADÁS
Ingatlan adatai
- Eladó vagy kiadó:Kiadó
- Település:Budapest XIII. kerület
- Kategória:Lakás
- Alkategória:Tégla
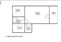
- Alapterület:39 m2
- Csere is:Nem
- Hirdető:Cég
- Élő videón megtekinthető:Nem
- Szobaszám:1 + 1 fél
- Állapot:Újszerű, kitűnő
- Hány szintes az ingatlan:Földszintes
- Komfortosság:nincs megadva
- Hányadik emeleti:1
- Erkély:nincs megadva
- Lift:Van
- Parkolási lehetőség:nincs megadva
- Fűtés:Házközponti egyedi mérővel
- Bútorozottság:nincs megadva
- Fényviszony:Napfényes
- Tájolás:nincs megadva
- Kilátás:nincs megadva
- Internet:nincs megadva
- Klíma:nincs megadva
- Akadálymentesített:nincs megadva
- Energiatanúsítvány:D
- Villany:Van
- Víz:Van
- Gáz:nincs megadva
- Csatorna:Van
- Közös költség:27 069 Ft
- Kapcsolatfelvétel

Juhász Emese
+36-(70)-369-0088
Mondd meg a hirdetőnek, hogy a megveszLAK-on találtad a hirdetést.
Referencia szám: M326165
Hitel ajánlatok
Ingatlan hirdetés leírása
Kiadó Lakás, Budapest 13. ker.
Figyelem! Az OTP Ingatlanpont kínálatában! Nyugalomra vágyik egy mozgalmas nap, a város zaja és nyüzsgése után? Kiadó XIII. kerület Göncz Árpád Városközpont közelében egy 2005-ben épült téglaépületben, kiváló közlekedésű, másfélszobás, i. emeleti, azonnal költözhető, bútorozatlan lakás. a konyhában konyhabútor, villanytűzhely és hűtőszekrény található. Az m3 metróvonal közelében (Forgách utcai megálló és Göncz á. Városközpont között) helyezkedik el 5 perces sétára, csendes utcában, kiváló közlekedéssel. Tágas, világos nappali, nagy loggia, nyugodt atmoszférájú hálószoba, kis praktikus konyha, felújított zuhanyzós fürdőszoba, tágas előszoba várja új bérlőjét! Tökéletes választássá és hangulatos otthonává válhat fiatal, ill. Újrakezdő gyermektelen párnak, egyedülálló személynek, esetleg egyetemistának! a lakásban a dohányzás nem megengedett! Gyermek, kisállat nem lehetséges. a ház, a lakók ill. a lépcsőház rendezett. Közjegyzői kiköltözési nyilatkozat, 1 havi bérleti díj és 2 havi kaució megfizetése szükséges. Ha hirdetésünk felkeltette érdeklődését, kérem hívjon bizalommal a hét bármely napján! Az OTP Ingatlanpont teljes körű ügyintézéssel áll mind az eladók, a kiadók, vevők és a bérlők rendelkezésére! a bérleti szerződés megkötéséhez igény szerint megbízható ügyvédi és közjegyzői közreműködést biztosítunk. Hitel.hu - Hasonlítsa össze a bankok lakáshitel ajánlatait
Tetszett ez a kiadó Budapest XIII. kerületi újszerű állapotú 1 egész és 1 fél szobás tégla lakás? Hívd fel a hirdetőt most, és tudj meg mindent erről a kiadó tégla lakásról! Ha gondolod nézelődj tovább a kiadó albérlet Budapest XIII. kerület oldal hirdetései között.
A kiadó lakások menüpontban további hirdetések között is böngészhetsz. Az összes eladó budapesti lakás hirdetést tartalmazó oldalon tudsz böngészni. Ha van kedved, akkor böngészhetsz a Juhász Emese összes hirdetése között, vagy akár a/az OTPip Budapest IX. kerület Üllői út 21 - OTP Ingatlanpont Iroda összes hirdetése között is.

