Kiadó újszerű állapotú lakás - Budapest XIII. kerület
- INGYENES HIRDETÉS FELADÁS
Ingatlan adatai
- Eladó vagy kiadó:Kiadó
- Település:Budapest XIII. kerület
- Kategória:Lakás
- Alkategória:Tégla
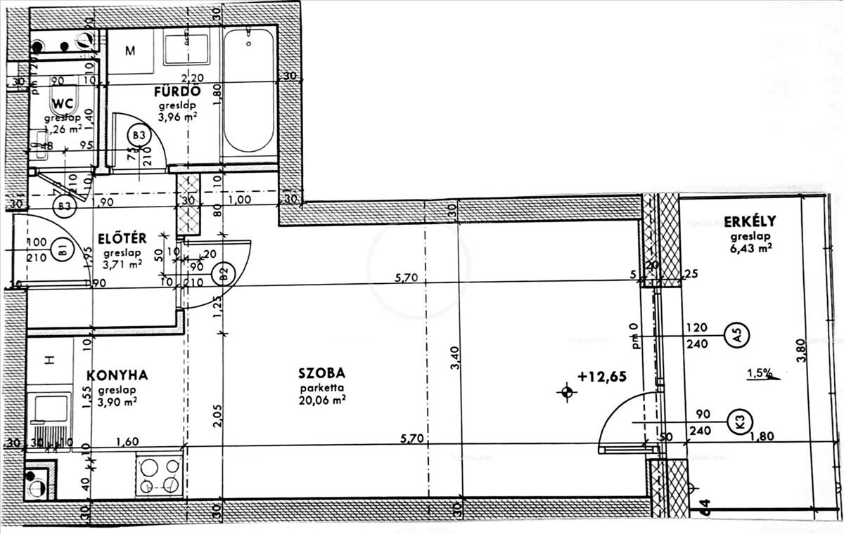
- Alapterület:33 m2
- Csere is:Nem
- Hirdető:Cég
- Élő videón megtekinthető:Nem
- Szobaszám:1
- Állapot:Újszerű, kitűnő
- Hány szintes az ingatlan:7 szintes
- Komfortosság:Összkomfortos
- Tetőtéri:Nem
- Kertkapcsolatos:Nem
- Hányadik emeleti:4
- Erkély:Van
- Lift:Van
- Parkolási lehetőség:nincs megadva
- Fűtés:Házközponti egyedi mérővel
- Bútorozottság:Bútorozott
- Fényviszony:Napfényes
- Tájolás:K
- Kilátás:Kertre néző
- Internet:Szélessávú (>10Mbps)
- Klíma:Van
- Akadálymentesített:Akadálymentesített
- Energiatanúsítvány:B
- Villany:Van
- Víz:Van
- Gáz:Van
- Csatorna:Van
- Közös költség:17 000 Ft
- Kapcsolatfelvétel
László Erzsébet
+36-(20)-441-1045
Mondd meg a hirdetőnek, hogy a megveszLAK-on találtad a hirdetést.
Referencia szám: 2341
Hitel ajánlatok
Ingatlan hirdetés leírása
ÚJSZERŰ LAKÓPARK, IGÉNYES BERENDEZETT ERKÉLYES LAKÁS KIADÓ!
Azonnal KÖLTÖZHETŐ!
KEDVEZŐ rezsi költség, tágas erkély, kellemes napfény, klíma, kiváló LOKÁCIÓ!
A lakóparkban ingyenes közösségi szolgáltatások ELÉRHETŐEK!
XIII. kerület Országbíró utcában, a 2021 évben épült metropolitan garden belső, zárt részére néző épületében kiadó, egy 6 nm erkélyes, gépesített, bútorozott 1 szobás, 33 nm alapterületű LAKÁS!
A IV. emeleti napfényes, klimatizált ingatlan, (4 nm ) amerikai konyhás, (6 nm ) erkélyes, (20 nm ) szoba, (4 nm ) fürdőszoba, (3, 7) nm előszoba, mellékhelyiség elosztású, mosógéppel, beépített főzőlap/sütővel, elszívóval, hűtőszekrénnyel felszerelt.
A keleti fekvés és a belső csendes kilátás kellemes hangulatát adja a lakásnak.
HOSSZÚTÁVON tervezhető a bérlés, de minimum 1 évre szóló szerződés megkötése szükséges, közjegyzői nyilatkozattal.
A közös költség 17 000 Ft/hó, a fűtés házközponti/egyedi méréssel a rezsiköltségek kedvezőek!
Kiskorú személy nem költözhet, háziállat tartása és a dohányzás nem megengedett.
Autóbeálló bérlése a házban általában lehetséges, a lakáshoz nem tartozik parkoló.
Közösségi szolgáltatások pl. Közösségi nappali, office center, könyvtár, csomagpont, fűszerkert, fészer, kerti GRILLEZŐ!
KÖZPONTI elhelyezkedése miatt a megközelítése, infrastruktúrája KIVÁLÓ!
Közelben az igényesen karbantartott Floridsdorf sétány, bevásárlási lehetőségek Spar, Lidl, Rossmann.
Közlekedése, 12, 14-es villamosok, 20e, 30, 32, 105, 210, 230-as buszok, 3 perc alatt elérhetőek. a belváros 30 percen belül megközelíthető!
Bármikor fogadom a hívását, amennyiben nem lennék elérhető, visszahívom!
Hivatkozási szám: 2341
A cégünk által piacra kerülő ingatlanokról a rendelkezésünkre álló, valós adatok alapján széles körű tájékoztatást nyújtunk.
Gyakorlati szakmai tapasztalatunknak köszönhetően körültekintően járunk el az értékesítési, bérbeadási folyamatokban, együttesen képviselve és támogatva az Ügyfeleink közötti sikeres megállapodást! Hitel.hu - Hasonlítsa össze a bankok lakáshitel ajánlatait
Tetszett ez a kiadó Budapest XIII. kerületi újszerű állapotú 1 szobás tégla lakás? Hívd fel a hirdetőt most, és tudj meg mindent erről a kiadó tégla lakásról! Ha gondolod nézelődj tovább a kiadó albérlet Budapest XIII. kerület oldal hirdetései között.
A kiadó lakások menüpontban további hirdetések között is böngészhetsz. Az összes eladó budapesti lakás hirdetést tartalmazó oldalon tudsz böngészni. Ha van kedved, akkor böngészhetsz a László Erzsébet összes hirdetése között.

