Kiadó újszerű állapotú lakás - Budapest XVIII. kerület
- INGYENES HIRDETÉS FELADÁS
Ingatlan adatai
- Eladó vagy kiadó:Kiadó
- Település:Budapest XVIII. kerület
- Kategória:Lakás
- Alkategória:Tégla
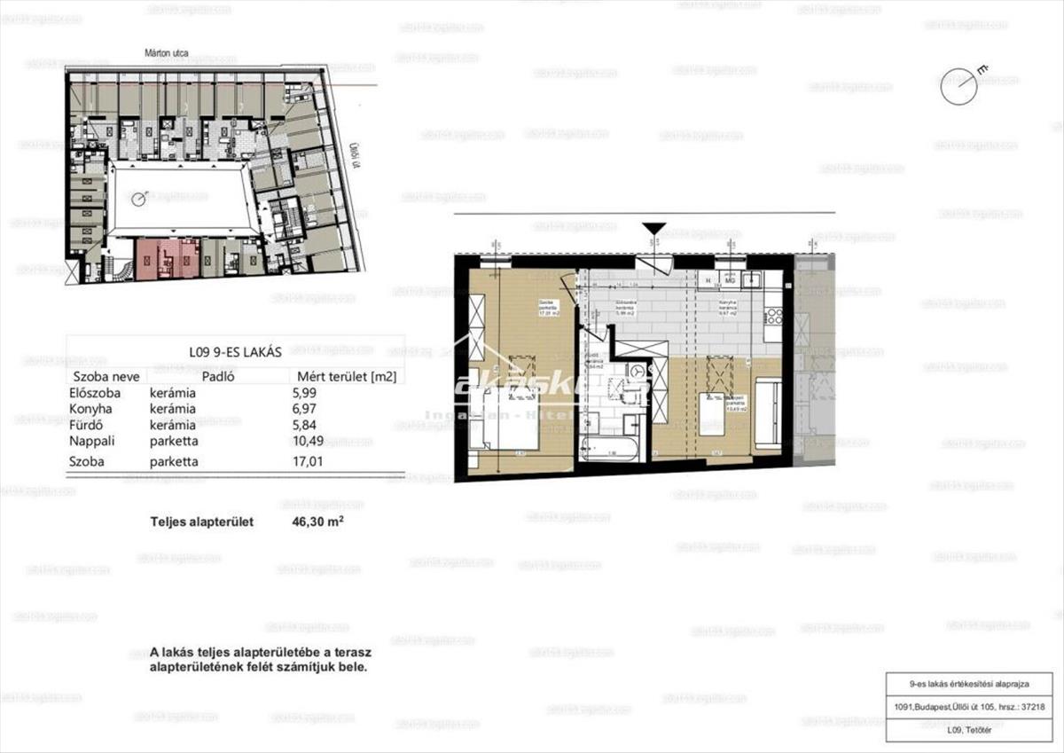
- Alapterület:46 m2
- Csere is:Nem
- Hirdető:Cég
- Élő videón megtekinthető:Nem
- Szobaszám:1 + 1 fél
- Állapot:Újszerű, kitűnő
- Hány szintes az ingatlan:nincs megadva
- Komfortosság:nincs megadva
- Hányadik emeleti:4
- Erkély:nincs megadva
- Lift:nincs megadva
- Parkolási lehetőség:nincs megadva
- Fűtés:nincs megadva
- Bútorozottság:nincs megadva
- Fényviszony:nincs megadva
- Tájolás:nincs megadva
- Kilátás:nincs megadva
- Internet:nincs megadva
- Klíma:nincs megadva
- Akadálymentesített:nincs megadva
- Energiatanúsítvány:nincs megadva
- Villany:nincs megadva
- Víz:nincs megadva
- Gáz:nincs megadva
- Csatorna:nincs megadva
- Kapcsolatfelvétel

Visontai Ferenc
+36-(70)-282-4545
Mondd meg a hirdetőnek, hogy a megveszLAK-on találtad a hirdetést.
Hitel ajánlatok
Ingatlan hirdetés leírása
Budapesten a IX. kerületben, az Üllői út egyik legszebb épület...
Budapesten a IX. kerületben, az Üllői út egyik legszebb épületében 46 m2-es lakás bérbeadó. a klasszikus épületben új tetőtér ráépítéssel kialakított lakás 2 szobás.
A semmelweis egyetem közelében, nemzetvédelmi egyetemmel szemben helyezkedik el.
Amerikai konyhás nappali és külön nyíló hálószoba minőségi bútorokkal, gépekkel (mosógép, mosogatógép, hűtő, légkondicionálás) saját mérőórákkal felszerelve hosszú távra (min 1 év) kiadó. Hangulatos tetőtér, új bútorok és világos terek várják fiatal párok vagy egyetemisták jelentkezését.
A lakás fűtését hőszivattyús kazán, padlófűtés biztosítja.
Közös költség: 9200 Ft/hó
Állat tartása és a dohányzás nem megengedett!
Bérleti díj: 280. 000, - Ft/hó+rezsi+2 havi kaució a szerződés megkötésekor fizetendő.
Érdeklődni a +36-30-738-1876 telefonszámon lehet. Hitel.hu - Hasonlítsa össze a bankok lakáshitel ajánlatait
Tetszett ez a kiadó Budapest XVIII. kerületi újszerű állapotú 1 egész és 1 fél szobás tégla lakás? Hívd fel a hirdetőt most, és tudj meg mindent erről a kiadó tégla lakásról! Ha gondolod nézelődj tovább a kiadó albérlet Budapest XVIII. kerület oldal hirdetései között.
A kiadó lakások menüpontban további hirdetések között is böngészhetsz. Az összes eladó budapesti lakás hirdetést tartalmazó oldalon tudsz böngészni. Ha van kedved, akkor böngészhetsz a Visontai Ferenc összes hirdetése között, vagy akár a/az LAKÁSKULCS - direct Ingatlan és Hiteliroda összes hirdetése között is.

