Kiadó újszerű állapotú lakás Debrecen
| Kedvencbe | Megosztás | Árfigyelő |
| Kedvezményes lakáshitel ajánlatok | ||
| 320 000 HUF/Hó | ||
Ingatlan adatai
- Eladó vagy kiadó:Kiadó
- Település:Debrecen
- Kategória:Lakás
- Alkategória:Tégla
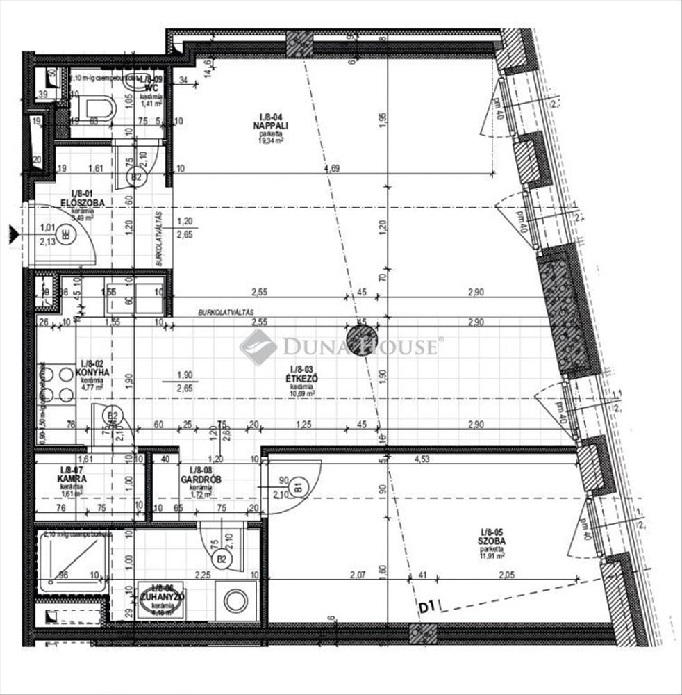
- Alapterület:59 m2
- Csere is:Nem
- Hirdető:Cég
- Élő videón megtekinthető:Nem
- Szobaszám:2
- Állapot:Újszerű, kitűnő
- Hány szintes az ingatlan:Földszintes
- Komfortosság:nincs megadva
- Hányadik emeleti:1
- Lift:Van
- Parkolási lehetőség:nincs megadva
- Fűtés:Távfűtés egyedi mérővel
- Bútorozottság:nincs megadva
- Fényviszony:Jó
- Tájolás:É
- Kilátás:nincs megadva
- Internet:nincs megadva
- Akadálymentesített:nincs megadva
- Energiatanúsítvány:nincs megadva
- Villany:Van
- Víz:Van
- Gáz:nincs megadva
- Csatorna:Van
- Üzenetküldés
- Hívás

Referencia szám: LK027982

Hitel ajánlat
Ingatlan hirdetés leírása
Kiadó lakás, Debrecen
A széchenyi residence elegáns atmoszférájában elhelyezkedő nappali+ 1 hálószobás lakásunk minden igényt kielégít, legyen szó kényelemről, praktikumról vagy exkluzivitásról.A 59 négyzetméteres lakás prémium kivitelezéssel és anyaghasználattal épült, amely azonnal érezhető a belépéskor. a kiváló elosztásnak köszönhetően minden négyzetmétert optimálisan használhat, így a tér tágasnak és rendezettnek hat.
A kényelmet tovább fokozza a külön fürdő és wc, valamint a praktikus kamra, ami ideális tárolóhelyet biztosít mindennapi használati tárgyainknak. a lakás teljes mértékben bútorozottan kerül átadásra, így Önnek csak beköltöznie kell, és élvezni az otthon melegét.
A modern műanyag nyílászárók és az elektronikus alumínium redőnyök nemcsak esztétikusak, de kiváló hő- és hangszigetelést biztosítanak, így a lakás mindig kellemes hőmérsékletű és csendes környezetet nyújt. a gyönyörű dekorfalak tovább emelik a lakás színvonalát és stílusát, egyedi hangulatot kölcsönözve az otthonnak.
A lakás légkondicionált, és gazdaságos egyedi mérésű távfűtéssel rendelkezik, így akár a legkeményebb téli napokon is kellemes melegben élvezheti otthona nyugalmát.
A kaució összege kéthavi bérleti díj. Hitel.hu - Hasonlítsa össze a bankok lakáshitel ajánlatait

