Kiadó üzlethelyiség - Ózd
- INGYENES HIRDETÉS FELADÁS
Ingatlan adatai
- Eladó vagy kiadó:Kiadó
- Település:Ózd
- Kategória:Üzlethelyiség
- Alkategória:Utcafronton
- Alapterület:15 m2
- Csere is:Nem
- Hirdető:Cég
- Élő videón megtekinthető:Nem
- Állapot:nincs megadva
- Hány szintes az ingatlan:nincs megadva
- Hányadik emeleti:nincs megadva
- Bútorozottság:Bútorozott
- Fényviszony:nincs megadva
- Tájolás:nincs megadva
- Kilátás:nincs megadva
- Internet:nincs megadva
- Klíma:nincs megadva
- Akadálymentesített:nincs megadva
- Energiatanúsítvány:nincs megadva
- Kapcsolatfelvétel

Bártfai Gábor
+36204620909
Mondd meg a hirdetőnek, hogy a megveszLAK-on találtad a hirdetést.
Hitel ajánlatok
Ingatlan hirdetés leírása
Kiadó üzlethelyiség forgalmas belvárosi környezetben! A belvá...
Kiadó üzlethelyiség forgalmas belvárosi környezetben!
A belváros egyik legélénkebb részén, nagy gyalogos- és autós forgalom mellett kínálunk bérbe egy igényes üzlethelyiséget. Közvetlenül az épülettel szemben ingyenes, tágas parkoló áll az ügyfelek rendelkezésére.
A helyiség klimatizált, saját villany- és vízórával felszerelt, így a rezsiköltségek pontosan nyomon követhetők. a közös területek használatának közös költsége 18. 043 Ft + ÁFA/hó.
Tökéletes választás üzletnek, irodának vagy szolgáltató tevékenységre – kiváló láthatósággal és elérhetőséggel!
Bérleti díj: 51. 020 Ft/hó + áfa + rezsi
Bérlés feltétele: 3 havi kaució
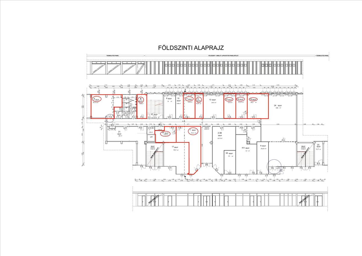
A képek között az alaprajzon a 18-as számú üzlethelyiség jelöli a kiadó egységet.
Vevőink részére ingyenes, banksemleges hiteltanácsadást és ügyintézést biztosítunk!
Párhuzamosan az ingatlanvásárlással eladná jelenlegi lakását, de nem tudja, hol kezdje? Ne habozzon, hívjon bizalommal!
További információért és megtekintésért keressen minket bizalommal! Hitel.hu - Hasonlítsa össze a bankok lakáshitel ajánlatait
Tetszett ez a kiadó Ózdi üzlethelyiség? Hívd fel a hirdetőt most, és tudj meg mindent erről a kiadó üzlethelyiségről! Ha gondolod nézelődj tovább a kiadó üzlethelyiség Ózd oldal hirdetései között.
A kiadó üzlethelyiségek menüpontban további hirdetések között is böngészhetsz. Ha van kedved, akkor böngészhetsz a Bártfai Gábor összes hirdetése között, vagy akár a/az Immo1 Debrecen - Zsuzsi Irodája összes hirdetése között is.

