- >>
- albérletek
- >>
- kiadó üzlethelyiség
- >>
- kiadó üzlethelyiség Pécs
- >>
Kiadó újszerű állapotú üzlethelyiség - Pécs
| | |||
| Kedvencnek jelölöm | Elküldöm emailben | Megosztás | Szavazás |
| Kedvezményes lakáshitel ajánlatok | |||
| 735 000 HUF/Hó | |||
Ingatlan adatai
- Eladó vagy kiadó:Kiadó
- Település:Pécs
- Kategória:Üzlethelyiség
- Alkategória:Üzletházban
- Alapterület:300 m2
- Csere is:Nem
- Hirdető:Cég
- Élő videón megtekinthető:Nem
- Állapot:Újszerű, kitűnő
- Hány szintes az ingatlan:nincs megadva
- Hányadik emeleti:nincs megadva
- Bútorozottság:nincs megadva
- Fényviszony:nincs megadva
- Tájolás:nincs megadva
- Kilátás:nincs megadva
- Internet:nincs megadva
- Akadálymentesített:nincs megadva
- Energiatanúsítvány:nincs megadva
- Üzenetküldés
- Hívás


Hitel ajánlat
Ingatlan hirdetés leírása
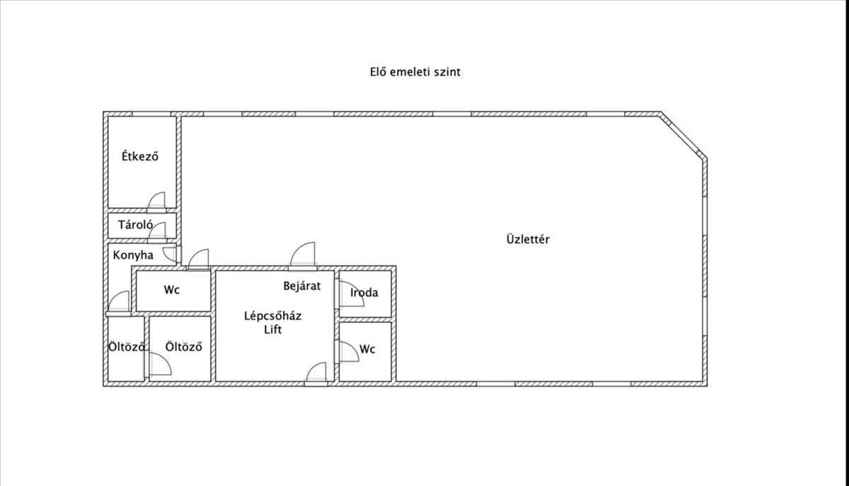
Kiadó 300 m2 üzlethelyiség, Pécs
Kiadó Pécs belvárosában frekventált helyen az Árkád bevásárló központ szomszédságában, üzletház első emeletén található üzlethelyiség!Az ingatlan főbb jellemzői:
-tégla építésű, 3 szintes épület
-közös bejáraton megközelíthető
-300 m2 egylégterű üzlettér
-fiatal, újszerű állapot
-saját teremgarázsban megoldott parkolás
-saját szociális helyiségekkel rendelkezik
-lift rendelkezésre áll
-irodák bérelhetőek hozzá igény szerint
-Világos, klimatizált, tűzjelző, riasztórendszer kiépítve
Bármilyen kereskedelmi, szolgáltatói alkalmas lehet, nyitva tartásában szükséges a ház nyitva tartásához alkalmazkodni.
Kivételes lehetőség, amennyiben hasonlót keres ne döntsön amíg ezt nem látta!
Bérleti díj: 7 EURO+Áfa+üzemeltetési költség
(hivatkozási szám: m77628) Hitel.hu - Hasonlítsa össze a bankok lakáshitel ajánlatait

