- >>
- albérletek
- >>
- kiadó üzlethelyiség
- >>
- kiadó üzlethelyiség Pécs
- >>
Kiadó jó állapotú üzlethelyiség - Pécs
| | |||
| Kedvencnek jelölöm | Elküldöm emailben | Megosztás | Szavazás |
| Kedvezményes lakáshitel ajánlatok | |||
| 600 000 HUF/Hó | |||
Ingatlan adatai
- Eladó vagy kiadó:Kiadó
- Település:Pécs
- Kategória:Üzlethelyiség
- Alkategória:Üzletházban
- Alapterület:75 m2
- Csere is:Nem
- Hirdető:Cég
- Élő videón megtekinthető:Nem
- Állapot:Jó állapotú
- Hány szintes az ingatlan:nincs megadva
- Hányadik emeleti:nincs megadva
- Bútorozottság:nincs megadva
- Fényviszony:nincs megadva
- Tájolás:nincs megadva
- Kilátás:nincs megadva
- Internet:nincs megadva
- Akadálymentesített:nincs megadva
- Energiatanúsítvány:nincs megadva
- Üzenetküldés
- Hívás


Hitel ajánlat
Ingatlan hirdetés leírása
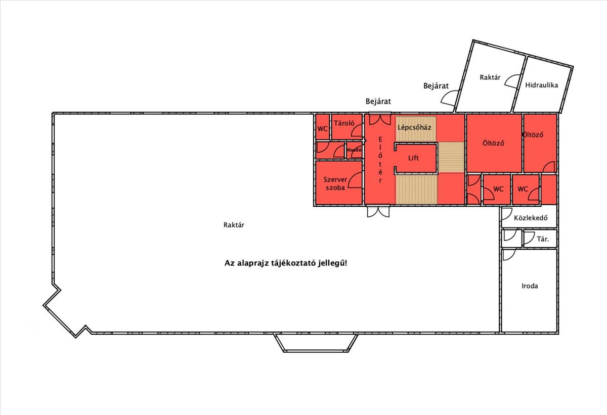
Kiadó 75 m2 üzlethelyiség, Pécs
Kiadó Pécsen egy 75 m2-es földszinti üzlethelyiség, a Generali biztosító volt irodája. Az üzlet két bejárattal, külön ügyféltérrel és irodahelyiséggel is rendelkezik.Az ingatlan főbb jellemzői:
- 75 m2 alapterület.
- 2 Bejárat.
- Földszinti elhelyezkedés.
- Kialakított ügyféltér.
- Irodahelyiség.
- Saját wc és konyha.
- Házközponti fűtés.
- Klimatizált.
- Jó állapotú.
- Bérleti díj: 600. 000 Ft/hó + áfa.
- 3 Havi kaució megléte szükséges.
- Minimum bérleti idő: 12 hónap.
Az ingatlan Pécs belvárosában helyezkedik el, könnyen megközelíthető akár gyalogosan is. Az üzlethelyiséget sokoldalú felhasználással is bérbe lehet venni, akár üzletként, webáruház átvételi pontként is.
Irodánkban a következő szolgáltatásokkal állunk meglévő és leendő ügyfeleink rendelkezésére:
- Ingatlanközvetítés (díjmentes tanácsadás, kiemelt méretű vevői adatbázis, magas szintű szakmai háttér, hatékony eladási stratégia, profi áralku).
- Ingatlanvagyon értékelés.
- Bank semleges hitelügyintézés vásárlóknak (díjmentes hitelszűrés és tanácsadás).
- Adás-vétellel kapcsolatos jogi tanácsadás.
- Energetikai tanúsítvány készítése.
Bármely kérdés felmerül önben az ingatlannal kapcsolatban, keressen bátran.
Ezúton tájékoztatjuk, hogy Ön, mint érdeklődő, a pénzmosás, és terrorizmus elleni adatvédelem (gdpr) értelmében a hirdetésben megjelölt telefonszám felhívásával hozzájárul személyes adatai – így különösen neve és telefonszáma -, a hirdetést feladó janavit Ingatlaniroda általi - biztonságos és körültekintő - kezeléséhez, nyilvántartásához.
Részletes adatkezelési tájékoztatónkat megtalálja honlapunkon.
INGATLAN ügyeit megoldja a JANAVIT!
(Hivatkozási szám: m93366) Hitel.hu - Hasonlítsa össze a bankok lakáshitel ajánlatait

