Kiadó átlagos állapotú üzlethelyiség - Budapest IX. kerület
- INGYENES HIRDETÉS FELADÁS
Ingatlan adatai
- Eladó vagy kiadó:Kiadó
- Település:Budapest IX. kerület
- Kategória:Üzlethelyiség
- Alkategória:Egyéb
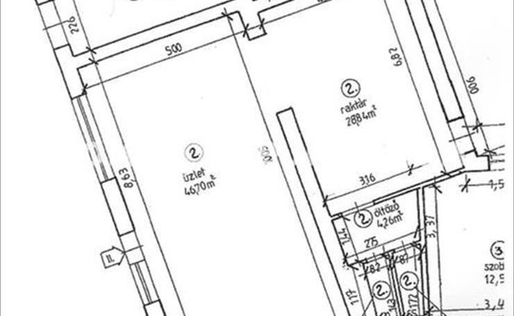
- Alapterület:86 m2
- Csere is:Nem
- Hirdető:Cég
- Élő videón megtekinthető:Nem
- Állapot:Átlagos állapotú
- Hány szintes az ingatlan:nincs megadva
- Hányadik emeleti:Földszint
- Bútorozottság:Bútorozatlan
- Fényviszony:nincs megadva
- Tájolás:nincs megadva
- Kilátás:nincs megadva
- Internet:nincs megadva
- Klíma:nincs megadva
- Akadálymentesített:nincs megadva
- Energiatanúsítvány:nincs megadva
- Kapcsolatfelvétel

Vass Attila
+36-(30)-526-4996
Mondd meg a hirdetőnek, hogy a megveszLAK-on találtad a hirdetést.
Hitel ajánlatok
Ingatlan hirdetés leírása
86 négyzetméteres, jó állapotú, utcai, kiadó üzlethelyiség
Kiadó egy közvetlen utcafronti üzlethelyiség a Ferenc körút egyik legforgalmasabb, nagy gyalogosforgalmú szakaszán. Az ingatlan ideális üzleti vagy szolgáltatói tevékenységre, és kiválóan megközelíthető tömegközlekedéssel
Főbb jellemzők:
Alapterület: ~ m²
Fűtés: gáz-cirkó
Hűtés-fűtés: légkondicionáló
Helyiségek: eladótér, kézmosó, wc, zuhanyzó, kb. 8 M²-es raktár
Belmagasság: álmennyezettel ellátott, de galériázható
Biztonság: elektromos működtetésű biztonsági rács
Hátsó udvari bejárat: jelenleg lezárva, de megnyitható
Közös költség: 34 000 Ft/hó
Kiváló elhelyezkedés:
A Boráros téri autóbuszvégállomás, valamint a körúti villamosmegállók 50-100 méteren belül találhatók.
Bérleti feltételek:
Minimum bérlési idő: 2 év határozott idejű szerződéssel
Birtokba vétel feltétele: 2 havi kaució + 1 havi bérleti díj megfizetése
Kérésre képeket tudok küldeni!
Keressen bizalommal további információért és megtekintésért!
Streetfront Retail Space for Long-Term Rent on Ferenc Boulevard
A direct streetfront commercial space is available for long-term lease on one of the busiest pedestrian sections of Ferenc Boulevard. This prime location is ideal for retail or service-oriented businesses and offers excellent public transport access.
Key Features:
Size: 86 m²
Heating: gas circulation system
Cooling & heating: air conditioning
Rooms: sales area, handwashing area, wc, shower, and an 8 m² storage room
Ceiling height: currently has a suspended ceiling but can be mezzanined
Security: electric-operated security grille on storefronts
Back entrance: currently closed but can be reopened
Common cost: 34, 000 HUF/month
Excellent Location:
The Boráros Square bus terminal and the boulevard tram stops are within 50-100 meters.
Rental Terms:
Minimum lease term: 2 years with a fixed-term contract
Move-in requirements: 2 months' deposit + 1 month’s rent
Contact us for more details and to arrange a viewing! Hitel.hu - Hasonlítsa össze a bankok lakáshitel ajánlatait
Tetszett ez a kiadó Budapest IX. kerületi átlagos állapotú üzlethelyiség? Hívd fel a hirdetőt most, és tudj meg mindent erről a kiadó üzlethelyiségről! Ha gondolod nézelődj tovább a kiadó üzlethelyiség Budapest IX. kerület oldal hirdetései között.
A kiadó üzlethelyiségek menüpontban további hirdetések között is böngészhetsz. Ha van kedved, akkor böngészhetsz a Vass Attila összes hirdetése között, vagy akár a/az Gold House Ingatlan- és Hitelcentrum összes hirdetése között is.

