Kiadó üzlethelyiség - Budapest XIV. kerület
- INGYENES HIRDETÉS FELADÁS
Ingatlan adatai
- Eladó vagy kiadó:Kiadó
- Település:Budapest XIV. kerület
- Kategória:Üzlethelyiség
- Alkategória:Egyéb
- Alapterület:38 m2
- Csere is:Nem
- Hirdető:Cég
- Élő videón megtekinthető:Nem
- Állapot:nincs megadva
- Hány szintes az ingatlan:nincs megadva
- Hányadik emeleti:nincs megadva
- Bútorozottság:nincs megadva
- Fényviszony:nincs megadva
- Tájolás:nincs megadva
- Kilátás:nincs megadva
- Internet:nincs megadva
- Klíma:nincs megadva
- Akadálymentesített:nincs megadva
- Energiatanúsítvány:nincs megadva
- Kapcsolatfelvétel

Szaka József
+36-(30)-691-0908
Mondd meg a hirdetőnek, hogy a megveszLAK-on találtad a hirdetést.
Hitel ajánlatok
Ingatlan hirdetés leírása
Fogorvosi rendelő kiadó! A havi műszakok mennyisége szabadon ...
Fogorvosi rendelő kiadó!
A havi műszakok mennyisége szabadon választható.
Zugló szívében, a Bosnyák téren, a lehető legjobb tömegközlekedési centrumban, egy társasház, 1. emeletén, kiadó egy teljesen felszerelt orvosi rendelő.
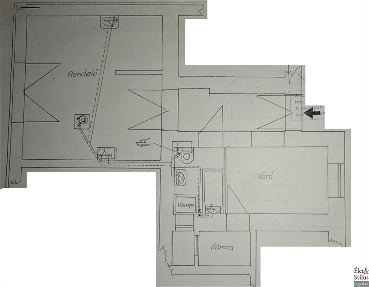
A 38 nm -es lakásba belépve, közlekedőnkből balra, a várószoba került kialakításra.
Tovább haladva, szintén balra a fürdőszoba és toalett található.
Szemközt, felújított, fogorvosi rendelőnkbe léphetünk, amely Castellini Puma fogorvosi székkel, röntgennel felszerelt.
A képeken érzékelhetó a meghitt, barátságos környezet, amely nyugtatólag hat a páciensekre.
Az extrák tekintetében, új műanyag nyílászárók, minőségi enteriőr, inverteres légkondícionáló, a fűtés tekintetében gázkonvektor.
Tömegközlekedés szempontjából is el vagyunk kényeztetve, hiszen számtalan buszjárat közül választhatunk, amelyek segítségével, többek között, tíz percen belül a Stadinok metrómegállónál találhatjuk magunkat.
A műszakok szabadon választhatóak.
- Heti néhány alkalom esetén, 25 ezer forint/műszak a bérleti díj
- heti 5 alkalom esetén, 20 ezer forint/műszak a bérleti díj
- egész napos műszak esetén, a hét minden napján (hétfő-péntek) 15 ezer forint/műszak a bérleti díj
Amennyiben a bérlő, heti 10 műszakot bérel, 15 ezer forint/műszakkal számolva,
a teljes havi bérleti díj 600 000 Ft/hó.
Ez esetben a teljes rendelőt, illetve lakást bérli a szerződő fél.
Szaka József +36 30 691 0908 Élet&Stílus Ingatlaniroda
További ingatlanokat a honlapunkon talál: eletstilusingatlan hu
ENERGETIKAI tanúsítvány (zöldkártya ingatlanhoz)
2012. Január 1. -Től a használt lakások adásvételénél is kötelező! Hívjon! Elkészítjük Önnek!
ÜGYVÉD-0, 7%
Megbízható ügyvédre van szüksége? Irodánk ügyvédje a vételár 0, 7 %-ért elkészíti az adásvételi szerződését. Ha kínálatunkból vásárol, akkor még ennél kedvezőbb is lehet ez a díj.
LAKÁSBIZTOSÍTÁS
Ingatlant vásárolt? Vagy a régi biztosítását lecserélné? a Magyarországon tevékenykedő összes biztosító ajánlatai közül kiválasztjuk Önnek az árban és a szolgáltatás minőségében a leginkább megfelelőt. Mindezt teljesen ingyen.
HITEL
Cégünk hiteltanácsadója - a velünk leszerződött - Magyarországon található összes bank ajánlata közül megtalálja Önnek személyre szabottan a legjobbat!
LAKBERENDEZÉS
Nincs ötlete, hogy mit lehetne kihozni a lakásából, hogyan lehetne újjá varázsolni? Mi segítünk Önnek!
LAKÁSFELÚJÍTÁS
Megbízható szakemberre lenne szüksége a lakásfelújításhoz? Nálunk megtalálja! Hitel.hu - Hasonlítsa össze a bankok lakáshitel ajánlatait
Tetszett ez a kiadó Budapest XIV. kerületi üzlethelyiség? Hívd fel a hirdetőt most, és tudj meg mindent erről a kiadó üzlethelyiségről! Ha gondolod nézelődj tovább a kiadó üzlethelyiség Budapest XIV. kerület oldal hirdetései között.
A kiadó üzlethelyiségek menüpontban további hirdetések között is böngészhetsz. Ha van kedved, akkor böngészhetsz a Szaka József összes hirdetése között.

