Kiadó üzlethelyiség Budapest XVI. kerület
| Kedvencbe | Megosztás | Árfigyelő |
| Kedvezményes lakáshitel ajánlatok | ||
| 1 000 000 HUF/Hó | ||
Ingatlan adatai
- Eladó vagy kiadó:Kiadó
- Település:Budapest XVI. kerület
- Kategória:Üzlethelyiség
- Alkategória:Egyéb
- Alapterület:350 m2
- Csere is:Nem
- Hirdető:Cég
- Élő videón megtekinthető:Nem
- Állapot:nincs megadva
- Hány szintes az ingatlan:nincs megadva
- Hányadik emeleti:nincs megadva
- Bútorozottság:nincs megadva
- Fényviszony:nincs megadva
- Tájolás:D
- Kilátás:nincs megadva
- Internet:nincs megadva
- Klíma:Van
- Akadálymentesített:Nem akadálymentesített
- Energiatanúsítvány:nincs megadva
- Rezsi:100 000 Ft
- Üzenetküldés
- Hívás


Hitel ajánlat
Ingatlan hirdetés leírása
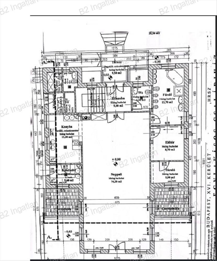
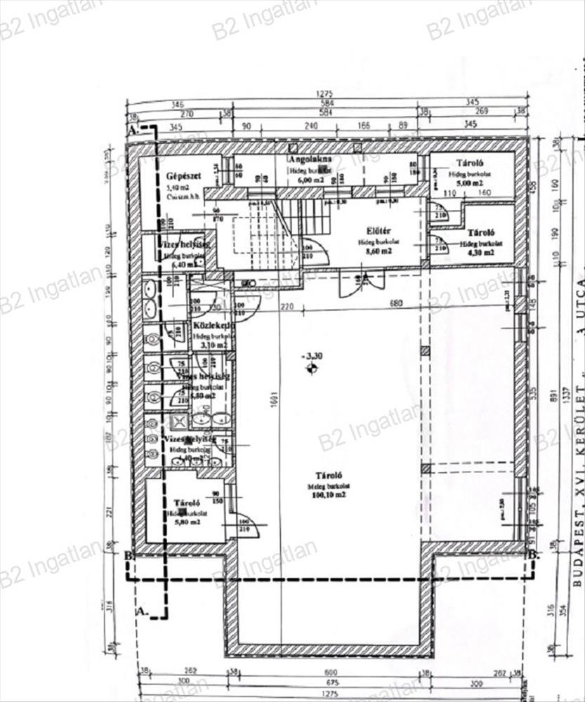
Kiadó 350 nm-es, modern ingatlan irodának vagy üzleti tevékeny...
Budapest 16. kerületében, a Rákosi út közelében, 750 nm-es telken kínálunk bérbeadásra egy 2010-ben épült, 350 nm-es, kétszintes, magas minőségben kivitelezett ingatlant, amely ideális irodának, rendelőnek, intézménynek vagy más üzleti célra. Az épület korábban óvodaként működött.Főbb jellemzők:
korszerű hőszivattyús rendszer padlófűtéssel,
napelemek és H tarifa a rezsiköltségek minimalizálására,
légcserélő berendezés és központi porszívó,
riasztó- és kamerarendszer,
autómata garázskapu és akár 10 autó számára parkolóhely az udvarban,
reprezentatív, parkosított kert.
Az ingatlan belső kialakítása rugalmasan igazítható a bérlő igényeihez. Tágas terei, korszerű gépészete és kedvező fenntartási költségei hosszú távon is kiváló választássá teszik.
Bérleti díj: 1 000 000 Ft / hó
Költözhető: 2025. Szeptember 1-től Hitel.hu - Hasonlítsa össze a bankok lakáshitel ajánlatait

