Kiadó jó állapotú üzlethelyiség - Debrecen
- INGYENES HIRDETÉS FELADÁS
Ingatlan adatai
- Feladva:6 hónapnál régebbi hirdetés
- Eladó vagy kiadó:Kiadó
- Település:Debrecen
- Kategória:Üzlethelyiség
- Alkategória:Egyéb
- Alapterület:71 m2
- Csere is:Nem
- Hirdető:Cég
- Élő videón megtekinthető:Nem
- Állapot:Jó állapotú
- Hány szintes az ingatlan:nincs megadva
- Hányadik emeleti:nincs megadva
- Bútorozottság:nincs megadva
- Fényviszony:nincs megadva
- Tájolás:nincs megadva
- Kilátás:nincs megadva
- Internet:nincs megadva
- Klíma:nincs megadva
- Akadálymentesített:nincs megadva
- Energiatanúsítvány:nincs megadva
- Kapcsolatfelvétel

Nagyerdei Ingatlaniroda
+36-(70)-616-1534
Mondd meg a hirdetőnek, hogy a megveszLAK-on találtad a hirdetést.
Hitel ajánlatok
Ingatlan hirdetés leírása
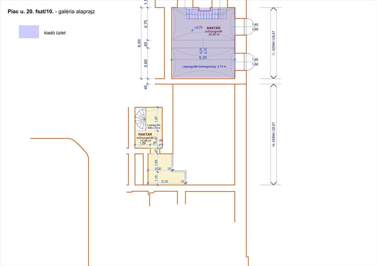
Kiadó 71 m2 üzlethelyiség, Debrecen
Debrecen egyik legjellegzetesebb építészeti épületének, földszintjén üzlethelyiség kiadó!
A kivételes fekvésű, 71 m2 alapterületű (58 m2 fszt. + 13 m2 galéria) üzlet gyalogosan, illetve tömegközlekedéssel egyaránt kiválóan megközelíthető. Parkolni a közvetlen közelben található Sas utca mélygarázsban lehet.
Olyan bérlők jelentkezését várjuk, akik a környezethez illően elegáns üzletet kívánnak kialakítani.
Azonnal elérhető!
Referenciaszám: #122604
*****
One of Debrecen's most distinctive architectural buildings, with retail space available for rent on the ground floor!
This exceptionally located 71 m2 (58 m2 ground floor + 13 m2 gallery) retail space is easily accessible on foot and by public transport. Parking is available in the underground garage on Sas Street, located in the immediate vicinity.
We are looking for tenants who wish to create an elegant shop that fits in with the surroundings.
Available immediately!
Reference number: #122604 (hivatkozási szám: m122604) Hitel.hu - Hasonlítsa össze a bankok lakáshitel ajánlatait
Tetszett ez a kiadó Debreceni jó állapotú üzlethelyiség? Hívd fel a hirdetőt most, és tudj meg mindent erről a kiadó üzlethelyiségről! Ha gondolod nézelődj tovább a kiadó üzlethelyiség Debrecen oldal hirdetései között.
A kiadó üzlethelyiségek menüpontban további hirdetések között is böngészhetsz. Ha van kedved, akkor böngészhetsz a Nagyerdei Ingatlaniroda összes hirdetése között.

