Kiadó üzlethelyiség - Hódmezővásárhely
- INGYENES HIRDETÉS FELADÁS
Ingatlan adatai
- Eladó vagy kiadó:Kiadó
- Település:Hódmezővásárhely
- Kategória:Üzlethelyiség
- Alkategória:Egyéb
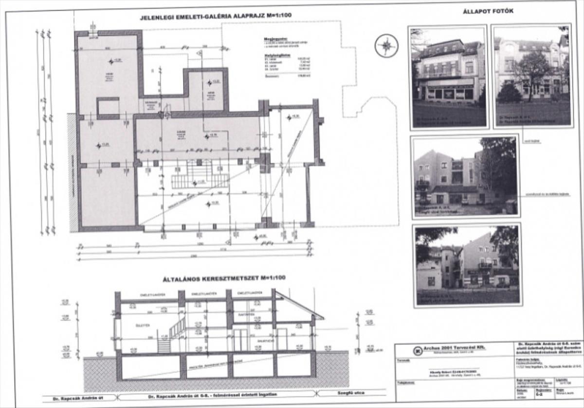
- Alapterület:463 m2
- Csere is:Nem
- Hirdető:Cég
- Élő videón megtekinthető:Nem
- Állapot:nincs megadva
- Hány szintes az ingatlan:nincs megadva
- Hányadik emeleti:nincs megadva
- Bútorozottság:nincs megadva
- Fényviszony:nincs megadva
- Tájolás:nincs megadva
- Kilátás:nincs megadva
- Internet:nincs megadva
- Klíma:nincs megadva
- Akadálymentesített:nincs megadva
- Energiatanúsítvány:nincs megadva
- Közös költség:40 000 Ft
- Kapcsolatfelvétel

Szil Gabriella
+36-(30)-901-0313
Mondd meg a hirdetőnek, hogy a megveszLAK-on találtad a hirdetést.
Hitel ajánlatok
Ingatlan hirdetés leírása
KIADÓ ÜZLET HÓDMEZŐVÁSÁRHELY SZÍVÉBEN Patinás épületben, nagy...
Kiadó üzlet Hódmezővásárhely SZÍVÉBEN
Patinás épületben, nagy kirakatportálos, utcai bejárattal rendelkező üzlet vált kiadóvá a sétáló utca közepén, a tram-train belvárosi
megállójától 150 méterre.
Az üzlethelyiség kiváló adottságokkal rendelkezik: 283 m2 földszinti rész, 180 m2 galéria és 260 m2 pince rész található benne. Az üzlethelyiség mögötti 300 négyzetméteres privát parkoló ingyenesen
igénybe vehető.
Jelenleg ruházati áruházként üzemelő, de rugalmasan hasznosítható üzlethelyiség akár több kisebb részre is osztható különböző profilú hasznosításra, hiszen 2 külön bejárattal ( utca fronti és hátsó) is rendelkezik.
Az üzlethelyiség szép állapotú, klímával felszerelt.
A minimum bérlési idő 3 év, bérléskor a bérleti díjhoz a rezsi költség, a közös költség és az építmény adó társul.
NÉZZE meg ajánlatunkat személyesen is! Hitel.hu - Hasonlítsa össze a bankok lakáshitel ajánlatait

