Kiadó üzlethelyiség - Szolnok
- INGYENES HIRDETÉS FELADÁS
Ingatlan adatai
- Eladó vagy kiadó:Kiadó
- Település:Szolnok
- Kategória:Üzlethelyiség
- Alkategória:Egyéb
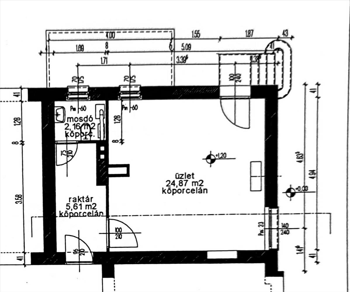
- Alapterület:32 m2
- Csere is:Nem
- Hirdető:Cég
- Élő videón megtekinthető:Nem
- Állapot:nincs megadva
- Hány szintes az ingatlan:nincs megadva
- Hányadik emeleti:Földszint
- Bútorozottság:Bútorozatlan
- Fényviszony:nincs megadva
- Tájolás:nincs megadva
- Kilátás:nincs megadva
- Internet:nincs megadva
- Klíma:Van
- Akadálymentesített:nincs megadva
- Energiatanúsítvány:nincs megadva
- Kapcsolatfelvétel

Nagy Tamás
+36-(30)-395-1637
Mondd meg a hirdetőnek, hogy a megveszLAK-on találtad a hirdetést.
Hitel ajánlatok
Ingatlan hirdetés leírása
Kiadó, Szolnok belvárosában, üzlethelyiség céljára hasznosítha...
Kiadó, Szolnok belvárosában, üzlethelyiség céljára hasznosítható ingatlan. Az ingatlan kiváló helyen van és a közlekedési viszonyok is nagyszerűek.
A helyiség 32 négyzetméter nagyságú és van külön egy kis mosogató helyiség és wc is. a fűtés gázkonvektor
ral megoldott, de van klíma is, a meleg vizet bojler biztosítja.
Nagy üvegablakok néznek az utcára.
Legutóbb pizzéria működött a itt, de a helyiség alkalmas más üzleti tevékenység folytatására is, akár irodának.
A bérleti díj 180000 Ft egy hónapra és szükséges két havi kaució befizetése.
Aki a belvárosban, jó forgalmú helyen szeretne vállalkozni, annak ajánlom ezt a kiváló lehetőséget. Hitel.hu - Hasonlítsa össze a bankok lakáshitel ajánlatait
Tetszett ez a kiadó Szolnoki üzlethelyiség? Hívd fel a hirdetőt most, és tudj meg mindent erről a kiadó üzlethelyiségről! Ha gondolod nézelődj tovább a kiadó üzlethelyiség Szolnok oldal hirdetései között.
A kiadó üzlethelyiségek menüpontban további hirdetések között is böngészhetsz. Ha van kedved, akkor böngészhetsz a Nagy Tamás összes hirdetése között, vagy akár a/az Árkadia Ingatlan összes hirdetése között is.

