Kiadó vendéglátási ingatlan Miskolc
| Kedvencbe | Megosztás | Árfigyelő |
| Kedvezményes lakáshitel ajánlatok | ||
| 9 852 EUR/Hó | ||
Ingatlan adatai
- Eladó vagy kiadó:Kiadó
- Település:Miskolc
- Kategória:Vendéglátás
- Alkategória:Egyéb
- Alapterület:nincs megadva
- Telekterület:nincs megadva
- Csere is:Nem
- Hirdető:Cég
- Élő videón megtekinthető:Nem
- Hány szintes az ingatlan:nincs megadva
- Hányadik emeleti:nincs megadva
- Parkolási lehetőség:nincs megadva
- Bútorozottság:nincs megadva
- Fényviszony:nincs megadva
- Tájolás:nincs megadva
- Internet:nincs megadva
- Akadálymentesített:nincs megadva
- Energiatanúsítvány:nincs megadva
- Üzenetküldés
- Hívás


Hitel ajánlat
Ingatlan hirdetés leírása
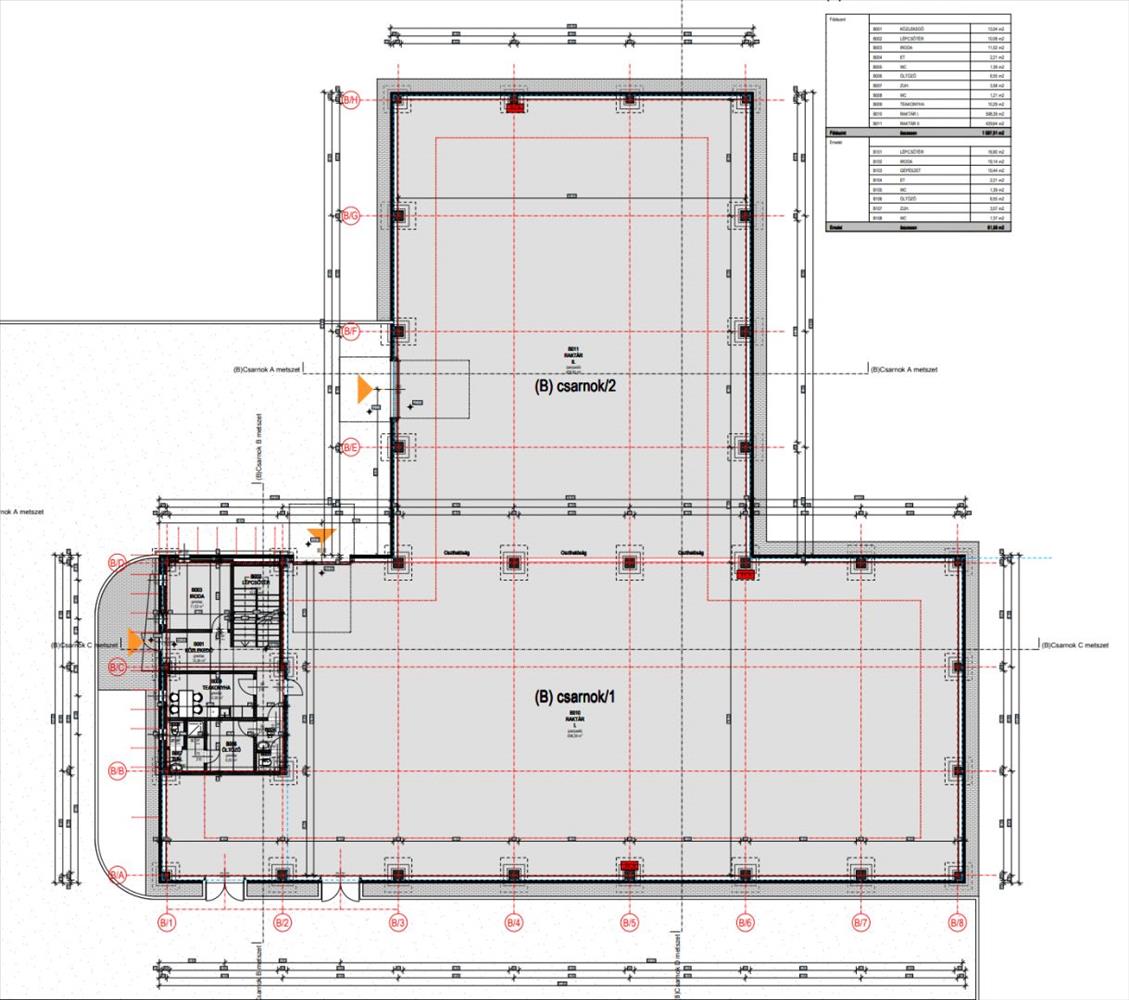
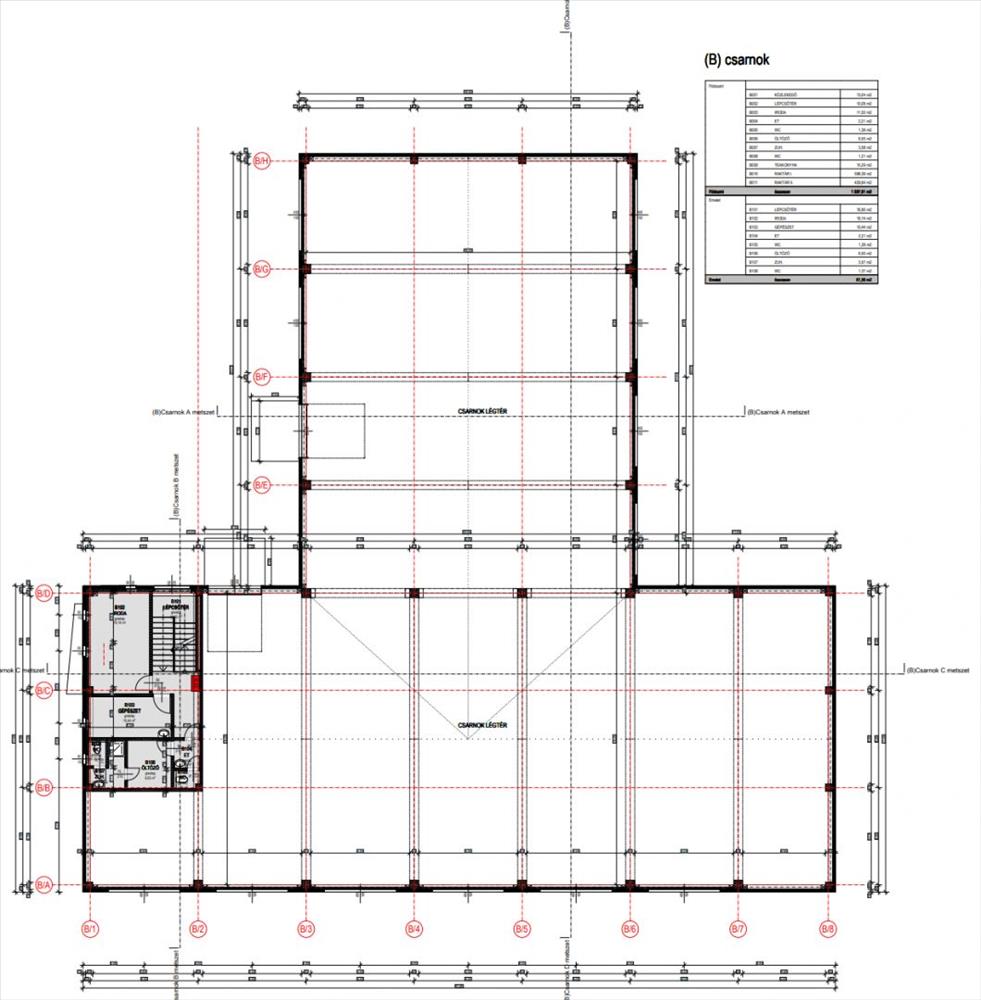
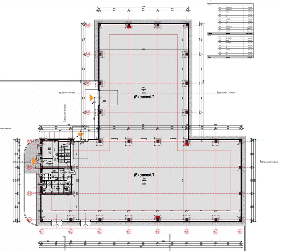
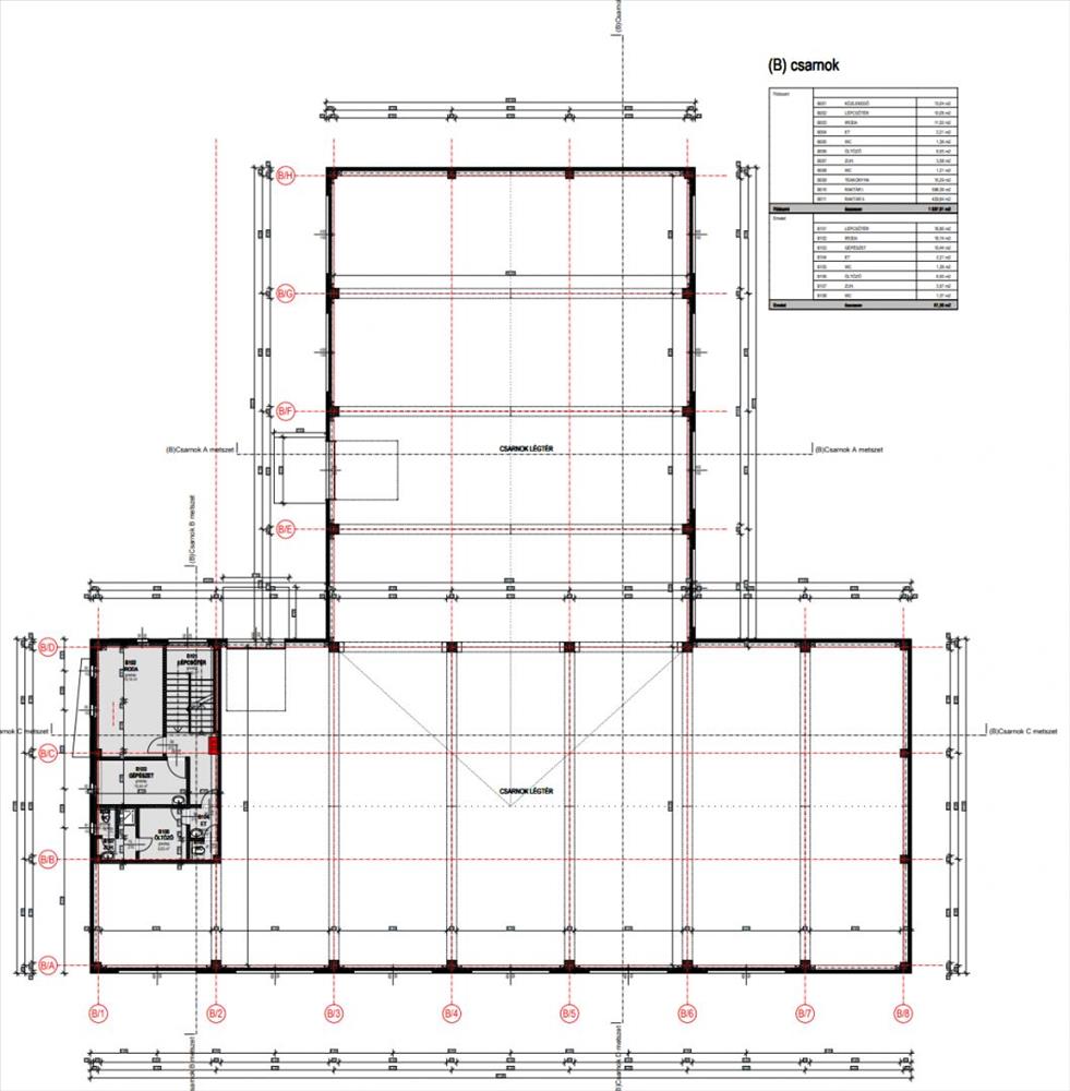
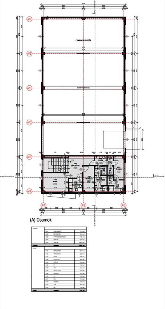
Kiadó 1642 m2 új építésű raktár, Miskolc
Kiadó Miskolcon a Besenyői úton egy 7539 m m2-es telken lévő, jelenleg építés alatt álló, két felépítményes műhely, raktár épület, kialakított parkolóhelyekkel, külön-külön és egyben is.Az épületek magassága 7, 5 m2, targoncázható.
Az ingatlanok vasbeton vázszerkezettel, vasbeton födémszerkezettel, vasbeton lapos tetővel készülnek. a vasbeton vázszerkezetet hőszigetelt szendvicspanel szerkezettel borítják. a homlokzati nyílászárók 3 rétegű, hőszigetelt alumínium szelvényekből készülnek, a bejárást szekcionált ipari kapuk biztosítják. a fűtés az irodákban és a szociális helyiségekben hűtő-fűtő klímák biztosítják, míg a műhely-raktár részben hőszivattyú biztosítja.
Alapterület a csarnok: 492 nm, B csarnok 1150 nm
Bérleti díj: 6 EUR/nm/hó + 0, 5 EUR/hó üzemeltetési díj + áram, víz külön mérhető
2 havi kaució szükséges.
(Hivatkozási szám: m120302) Hitel.hu - Hasonlítsa össze a bankok lakáshitel ajánlatait

