Eladó átlagos állapotú ház - Baja
- INGYENES HIRDETÉS FELADÁS
Ingatlan adatai
- Eladó vagy kiadó:Eladó
- Település:Baja
- Kategória:Ház
- Alkategória:Családi ház
- Alapterület:140 m2
- Telekterület:1349 m2
- Csere is:Nem
- Hirdető:Cég
- Élő videón megtekinthető:Nem
- Építés éve:1973
- Szobaszám:5
- Állapot:Átlagos állapotú
- Hány szintes az ingatlan:2 szintes
- Tetőtér:nincs megadva
- Komfortosság:nincs megadva
- Pince:nincs megadva
- Parkolási lehetőség:Udvaron
- Fűtés:Gáz (konvektor)
- Bútorozottság:nincs megadva
- Fényviszony:Napfényes
- Tájolás:nincs megadva
- Kilátás:nincs megadva
- Internet:nincs megadva
- Klíma:nincs megadva
- Akadálymentesített:nincs megadva
- Energiatanúsítvány:D
- Villany:nincs megadva
- Víz:nincs megadva
- Gáz:nincs megadva
- Csatorna:nincs megadva
- Kapcsolatfelvétel

Hován Sándor
+36-(70)-345-1021
Mondd meg a hirdetőnek, hogy a megveszLAK-on találtad a hirdetést.
Referencia szám: M271526
Hitel ajánlatok
Ingatlan hirdetés leírása
Eladó Ház, Baja, Eladó átlagos állapotú ház - Baja
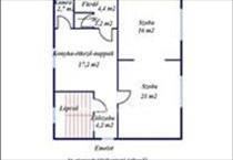
Eladásra kínálok Bács-Kiskun vármegyében, Baján egy kétszintes, 140 m2-es családi házat. a telek területe 1349 m2. Az ingatlan két belépőből, négy tágas hálószobából, egy nappaliból, egy konyha-étkezőből, egy nappali-konyha-étkezőből, két kamrából, két fürdőszoba+fürdőszobából nyíló wc-ből és egy közlekedőből áll. a két emelet külön lakhatásra is alkalmas (kétgenerációs). a házban található klíma, a fűtés pedig igény szerint gázkonvektorral, klímával, elektromos fűtőpanellel és kandallóval is egyaránt megoldható.
Az udvarban melléképületek, valamint állattartásra alkalmas ólak találhatóak. a melléképületek ipari árammal rendelkeznek. Az udvarban fedett autóbeálló és nyári konyha található nagyobb helyiségekkel, alatta pince került kiépítésre. Diófa és császárfa van a kertben és az udvarban. a kert kertészkedésre alkalmas.
Keressen bizalommal, ha az ingatlan felkeltette az érdeklődését!
Teljeskörű és díjmentes hitelügyintézéssel, pénzügyi tanácsadással és energetikai tanúsítvány készítésével kapcsolatban is az Önök rendelkezésére állunk!
48999999 Ft
Referencia szám: m271526 FIX 3% lakáshitelre megvehető
Tetszett ez az eladó Bajai átlagos állapotú 5 szobás családi ház? Hívd fel a hirdetőt most, és tudj meg mindent erről az eladó családi házról! Ha gondolod nézelődj tovább az eladó ház Baja oldal hirdetései között. Ennek az eladó háznak az ára 48999999 Ft és mivel az alapterülete 140 négyzetméter, ezért az átlagos négyzetméterára 350000 HUF/m2.
Az eladó házak menüpontban további hirdetések között is böngészhetsz. Ha van kedved, akkor böngészhetsz a Hován Sándor összes hirdetése között, vagy akár a/az OTPip Budapest VIII. kerület József körút 72 - OTP Ingatlanpont Iroda összes hirdetése között is.

