Eladó újszerű állapotú ház - Gyenesdiás
- INGYENES HIRDETÉS FELADÁS
Ingatlan adatai
- Eladó vagy kiadó:Eladó
- Település:Gyenesdiás
- Kategória:Ház
- Alkategória:Családi ház
- Alapterület:350 m2
- Telekterület:789 m2
- Csere is:Nem
- Hirdető:Cég
- Élő videón megtekinthető:Nem
- Építés éve:2023
- Szobaszám:12
- Állapot:Újszerű, kitűnő
- Hány szintes az ingatlan:nincs megadva
- Tetőtér:nincs megadva
- Komfortosság:nincs megadva
- Pince:nincs megadva
- Parkolási lehetőség:nincs megadva
- Fűtés:Gáz (cirko)
- Bútorozottság:nincs megadva
- Fényviszony:nincs megadva
- Tájolás:D
- Kilátás:nincs megadva
- Internet:nincs megadva
- Klíma:nincs megadva
- Akadálymentesített:nincs megadva
- Energiatanúsítvány:nincs megadva
- Villany:Van
- Víz:Van
- Gáz:Van
- Csatorna:Van
- Kapcsolatfelvétel

Hitel ajánlatok
Ingatlan hirdetés leírása
KIEMELT MEGBÍZÁS! CSAK AZ OTTHON CENTRUM KÍNÁLATÁBAN! GYENESDI...
Kiemelt megbízás! Csak az otthon centrum KÍNÁLATÁBAN!
GYENESDIÁS frekventált helyén több apartmanos ház ELADÓ!
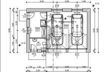
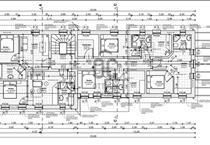
Az ingatlan főbb jellemzői:
-lakófelület 325nm , telek terület 789nm
-az ingatlan 2024-ben épül
-a főépület két szintes, különálló dupla garázs tartozik hozzá
-a ház földszintjén 2 lakás, az emeleten 5 db apartman került kialakításra
-a fűtés jelenleg gázcirkó kazánnal megoldott
-hőszivattyús rendszerhez minden kiépítésre került, csak a berendezést kell beszerelni
-hűtő-fűtő klímákhoz szintén előkészítettek mindent, csak a készüléket kell felszerelni
-az ingatlan kiválóan alkalmas kiadásra, üzleti tevékenységre, vagy nagy családok összeköltözésére
Amennyiben felkeltette érdeklődését és további kérdés merül fel, hívjon vagy írjon bizalommal! Hitel.hu - Hasonlítsa össze a bankok lakáshitel ajánlatait
Tetszett ez az eladó Gyenesdiási újszerű állapotú 12 szobás családi ház? Hívd fel a hirdetőt most, és tudj meg mindent erről az eladó családi házról! Ha gondolod nézelődj tovább az eladó ház Gyenesdiás oldal hirdetései között. Ennek az eladó háznak az ára 349000000 Ft és mivel az alapterülete 350 négyzetméter, ezért az átlagos négyzetméterára 997143 HUF/m2.
Az eladó házak menüpontban további hirdetések között is böngészhetsz. Ha van kedved, akkor böngészhetsz a Sipos Etelka összes hirdetése között, vagy akár a/az Otthon Centrum Keszthely - Kossuth Lajos utca összes hirdetése között is.
További hirdetéseket találsz az eladó Balaton északi parti nyaralók között. Ha a teljes régió kínálata érdekel, nézd meg az eladó Balatoni nyaralók oldalt.

