Eladó jó állapotú ház - Onga
- INGYENES HIRDETÉS FELADÁS
Ingatlan adatai
- Eladó vagy kiadó:Eladó
- Település:Onga
- Kategória:Ház
- Alkategória:Családi ház
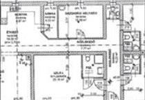
- Alapterület:160 m2
- Telekterület:1785 m2
- Csere is:Nem
- Hirdető:Cég
- Élő videón megtekinthető:Nem
- Építés éve:2014
- Szobaszám:4
- Állapot:Jó állapotú
- Hány szintes az ingatlan:Földszintes
- Tetőtér:nincs megadva
- Komfortosság:nincs megadva
- Pince:nincs megadva
- Parkolási lehetőség:Udvaron
- Fűtés:Gáz (cirko)
- Bútorozottság:nincs megadva
- Fényviszony:Napfényes
- Tájolás:nincs megadva
- Kilátás:nincs megadva
- Internet:nincs megadva
- Klíma:nincs megadva
- Akadálymentesített:nincs megadva
- Energiatanúsítvány:nincs megadva
- Villany:Telken belül
- Víz:Telken belül
- Gáz:Telken belül
- Csatorna:nincs megadva
- Kapcsolatfelvétel

Dandásné Fábián Klaudia
+36-(30)-340-6776
Mondd meg a hirdetőnek, hogy a megveszLAK-on találtad a hirdetést.
Referencia szám: M295112
Hitel ajánlatok
Ingatlan hirdetés leírása
Eladó Ház, Onga, Eladó jó állapotú ház - Onga
Eladó Onga nagyon jó, frekventált részén egy 160 nm-es, 2014-ben 38-as téglából épült, amerikai konyhás nappali + 3 szobás családi ház 1700 nm-es telken. Az ingatlan élettere egy szinten, nagyon jó elosztásban lett kialakítva. 3 Hatalmas háló, teljes ablakfelületes, napfényes, nagyterű, részben szeparált amerikai konyhás napppali + étkező kerti terasz kapcsolattal, spájz, külön vendég wc, szoba méretű mosó gazdasági helyiség. Minden hálószobához saját fürdőszoba tartozik WC-vel. Az épület fal-és födémszigetelt, fűtése mind modern két éves kondenzációs kazánról, mind professzionális perlet és biomassza fűtésű kazánról, mind pedig alternatívaként a minden helyiségben beépítésre került Split klímákról működik. a ház méretéhez mérten rezsije kiváló.
A hatalmas telek felső része leválasztott, ez nagyrészben térburkolt és parkosított. Itt található egy kétbeállásos garázs és a nappali/terasz kapcsolat folytatásában egy épített medence profi gépészettel.
A telek másik része nagyságából adódóan sokrétű hasznosítást tesz lehetővé. ( Gazdálkodás, ranch, stb. )
Onga dinamikusan fejlődő kisváros Miskolctól 10 km-re. Ideális otthon nagycsaládosoknak is! Hívjon bizalommal és nézzük meg együtt!
Referencia szám: m295112 FIX 3% lakáshitelre megvehető

