Eladó új építésű nyaraló - Balatonfenyves
- INGYENES HIRDETÉS FELADÁS
Ingatlan adatai
- Eladó vagy kiadó:Eladó
- Település:Balatonfenyves
- Kategória:Nyaraló
- Alkategória:Hétvégi ház
- Alapterület:97 m2
- Telekterület:33 m2
- Csere is:Nem
- Hirdető:Cég
- Élő videón megtekinthető:Nem
- Építés éve:2024
- Szobaszám:3
- Állapot:Új építésű
- Hány szintes az ingatlan:nincs megadva
- Tetőtér:nincs megadva
- Komfortosság:nincs megadva
- Pince:Nincs
- Parkolási lehetőség:nincs megadva
- Fűtés:Egyedi
- Téliesített:nincs megadva
- Bútorozottság:nincs megadva
- Fényviszony:nincs megadva
- Tájolás:nincs megadva
- Kilátás:nincs megadva
- Internet:nincs megadva
- Klíma:nincs megadva
- Akadálymentesített:nincs megadva
- Energiatanúsítvány:nincs megadva
- Villany:nincs megadva
- Víz:nincs megadva
- Gáz:nincs megadva
- Csatorna:nincs megadva
- Kapcsolatfelvétel

Várdai Szabina
+36-(70)-600-0847
Mondd meg a hirdetőnek, hogy a megveszLAK-on találtad a hirdetést.
Ingatlan hirdetés leírása
Balatonfenyvesen minőségi ÚJ építésű vízparti Társasházban föl...
Kizárólag a lido home Balatonboglár Ingatlaniroda kínálatában!
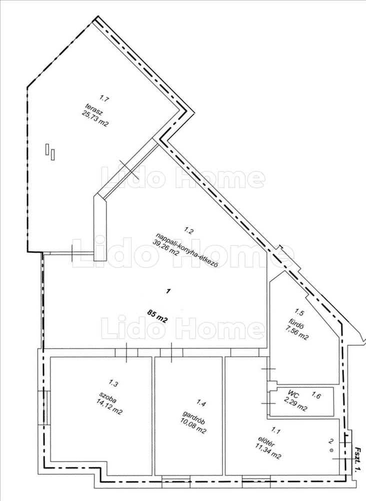
A lido home Balatonboglár Ingatlaniroda eladásra kínálja Balatonfenyves kedvelt nyaraló övezetében, új építésű, közvetlen vízparti társas üdülőben található 85 m2-es földszinti nyaralót, a hozzá tartozó 26 m2-es terasszal, és saját, 33, 14 m2-es kertrésszel, balatoni részpanorámás kilátással!
A lido home Balatonboglár Ingatlaniroda által kínált, közvetlen vízparti balatonfenyvesi társas üdülőben lévő nyaraló jellemzői:
- Közvetlen vízparti területen épült, két emeletes, 13 nyaralóból álló, új építésű, liftes társas üdülőben található
- Földszinti elhelyezkedésű, azonnal beköltözhető, kertkapcsolatos D-NY-i tájolású, balatoni panorámás NYARALÓ
- a nyaraló 85 m2 - es alapterületű, 26 m2-es, részpanorámás kilátással a Balatonra, a saját kertrész 33, 14 m2.
-A gránit lappal burkolt teraszok intim használatát a felszerelt egyedi lamellás válaszelemek biztosítják
- előtér, tágas amerikai konyhás nappali, két szoba, közlekedő, fürdőszoba, külön mellékhelyiség kiosztású,
-Minőségi anyagokból épült, éves használati lehetőséggel, így nem csak nyaralóként, lakásként is hasznosítható
-A lépcsőháztér világos, a szél elleni védelem edzett üvegfallal biztosított, ízléses gránit lap burkolatú
- a Minőségi kivitelezésű ingatlan nyílászárói fehér színűek, három rétegű, hőszigetelt üvegezésűek
-A helyiségek magas kopásállóságú és minőségű olasz kerámialap burkolatúak, a szobák vinyl padlóval burkoltak
- a lakások mennyezeti fűtés - hűtését, lakásonként önálló hőszivattyúk biztosítják, helyiségenként egyedi hőfok szabályozással ( WI-FI-ről otthonról is vezérelhető)
-a nyaralóban az elektromos riasztórendszer és az elektromos redőnyök vezetékelése kiépítésre került
-a teraszokon sl14 alu vázas, ízléses edzett üvegkorlát elemek kerültek felszerelésre
- mindegyik nyaraló egyedi mérőórákkal kerül átadásra, lakásonként 3x16 a áramellátás biztosított
- az irányár tartalmazza az üdülő terület elektromos kapurendszerrel zárt területén kialakított térkő burkolatú kültéri parkolóhely árát
A feltüntetett ár nettó ár, melyhez még 27 % áfát kell megfizetni, amennyiben cégre vásárol, az áfa összege visszaigényelhető!
-A tulajdonosok által közösen használható üdülőterület körbe kerített, füvesítve, parkosítva kerül átadásra
- Kiváló lokáció: a közelében éttermek, bevásárlási, kikapcsolódási lehetőségek elérhetők, Vasútállomás- a település központja 1000 m-re, Hajókikötő 1200 m-re található.
Amennyiben a lido home Ingatlaniroda által kínált vízparti balatonfenyvesi exkluzív minőségű nyaraló, vagy bármely a kínálatunkban található ingatlan felkeltette érdeklődését, hívjon bármikor a megadott telefonszámon!
Vásárolna, de nincs rá keret? Kollégám díjmentes, bank semleges hitel ügyintézéssel áll rendelkezésére.
LIDO home- Ingatlanok egy életen át! Hitel.hu - Hasonlítsa össze a bankok lakáshitel ajánlatait


