Eladó új építésű ház - Fót
- INGYENES HIRDETÉS FELADÁS
Ingatlan adatai
- Eladó vagy kiadó:Eladó
- Település:Fót
- Kategória:Ház
- Alkategória:Ikerház
- Alapterület:123 m2
- Telekterület:460 m2
- Csere is:Nem
- Hirdető:Cég
- Élő videón megtekinthető:Nem
- Építés éve:2026
- Szobaszám:3 + 1 fél
- Állapot:Új építésű
- Hány szintes az ingatlan:nincs megadva
- Tetőtér:nincs megadva
- Komfortosság:nincs megadva
- Pince:nincs megadva
- Parkolási lehetőség:Garázsban
- Fűtés:nincs megadva
- Bútorozottság:nincs megadva
- Fényviszony:nincs megadva
- Tájolás:nincs megadva
- Kilátás:nincs megadva
- Internet:nincs megadva
- Klíma:Van
- Akadálymentesített:nincs megadva
- Energiatanúsítvány:nincs megadva
- Villany:Van
- Víz:Van
- Gáz:Van
- Csatorna:Van
- Kapcsolatfelvétel

Bagóczky Attila
+36-(20)-236-0005
Mondd meg a hirdetőnek, hogy a megveszLAK-on találtad a hirdetést.
Hitel ajánlatok
Ingatlan hirdetés leírása
ELADÓ IKERHÁZ FÓT KERTVÁROS ÚJ ÉPÍTÉSŰ EGYSZINTES CSOK
Eladó új építésű földszintes ikerház Fóton kertvárosi környezetben!
START+
Megvételre kínálunk egy 123 m²-es, modern kialakítású földszintes ikerházat, amely nappali + 3 szobával, tágas, világos terekkel és praktikus elrendezéssel garázzsal várja leendő tulajdonosát.
Főbb jellemzők:
• Energiahatékony hőszivattyús fűtés padlófűtéssel, amely garantálja az alacsony rezsiköltséget.
• Saját garázs, amely kényelmes parkolási lehetőséget biztosít.
• Nagy terasz és saját kert, tökéletes helyszín a pihenéshez és családi összejövetelekhez.
• Személyre szabható belső tér, a szaniterek, burkolatok és belső ajtók választhatók az egyedi igények szerint.
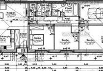
Ház helyiségei:
• amerikai konyhás nappali 35 nm
• 3 hálószoba 12, 12, 11 nm
• kádas fürdőszoba
• külön WC
• háztartási helyiség
• előszoba 4. 38 Nm
• közlekedő 8. 65 Nm
• terasz 21, 70 nm
• garázs: 18. 00 Nm
Műszaki tartalom:
• falazat 30 cm-es tégla, 15 cm szigeteléssel
• nyílászárók 3 rétegű, fehér hőszigetelt
• klíma előkészítés
• a fűtését hőszivattyús rendszer biztosítja, a hőleadás pedig padlófűtéssel történik.
• H - tarifa
Fótról pár szóban:
Ez a város Budapest szomszédságában található, de már a nyugalom szigete. Remek közlekedés, három vasútállomással büszkélkedhet, de séta távolságra található a buszmegálló is mellyel könnyedén elérhető Újpest városközpont és a környékbeli városok, települések. (M3, vonat, busz), természetközeli életérzés, de minden városi kényelem megmarad.
A város barátságos, családias hangulatú, számos szabadidős lehetőséggel és közösségi programmal – ide tényleg jó hazatérni.
Ne hagyja ki ezt a kivételes lehetőséget, hogy egy modern, kényelmes otthon tulajdonosa legyen!
Ebben a felgyorsult időszakban is, hitel szakértőink díjmentesen segítenek megtalálni a legjobb és a legideálisabb pénzintézetet a hitelfelvételhez, legyen az start+, csok+, babaváró vagy lakás célú hitel! FIX 3% lakáshitelre megvehető

