Eladó új építésű lakás Budapest XV. kerület
| Kedvencbe | Megosztás | Árfigyelő |
| Kedvezményes lakáshitel ajánlatok | ||
| 104 900 000 HUF | ||
Ingatlan adatai
- Eladó vagy kiadó:Eladó
- Település:Budapest XV. kerület
- Kategória:Lakás
- Alkategória:Tégla
- Alapterület:77 m2
- Csere is:Nem
- Hirdető:Cég
- Élő videón megtekinthető:Nem
- Szobaszám:3
- Állapot:Új építésű
- Hány szintes az ingatlan:Földszintes
- Komfortosság:nincs megadva
- Hányadik emeleti:Földszint
- Lift:Nincs
- Parkolási lehetőség:Teremgarázsban
- Fűtés:Hőszivattyús
- Bútorozottság:nincs megadva
- Fényviszony:nincs megadva
- Tájolás:DNY
- Kilátás:nincs megadva
- Internet:nincs megadva
- Klíma:Van
- Akadálymentesített:nincs megadva
- Energiatanúsítvány:nincs megadva
- Villany:Van
- Víz:Van
- Gáz:nincs megadva
- Csatorna:Van
- Üzenetküldés
- Hívás

Takácsné Domján Adrienn
Mondd meg a hirdetőnek, hogy a megveszLAK-on találtad a hirdetést.
Referencia szám: PR063253/LK/27675

Hitel ajánlat
Ingatlan hirdetés leírása
Eladó lakás, Budapest 15. ker.
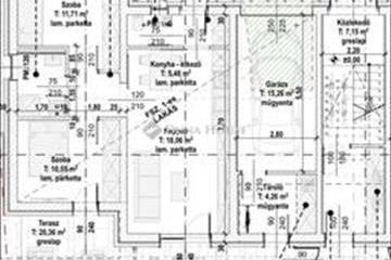
A 15. kerületben, kítűnő közlekedéssel, közel az m3 bevezetőhöz, de mégis csendes, nyugodt, frissen alakított újépítésű részen épül ez a 4 lakásos társasház, két emeleti és két földszinti lakás kialakításával.A földszinti lakásokhoz kertkapcsolat tartozik és az ingatlanon belül kialakított garázs, az emeleti lakásokhoz felszíni beálló kapcsolódik majd.
A földszinti lakásokhoz fedett terasz, míg az emeleti lakásokhoz lakásonként egy tágas erkély és egy loggia is kialakításra kerül.
A földszinti lakások nappali + 2 szobás kialakításúak, az emeleti lakások pedig nappali + 3 szoba kínálta tágas terekkel várják leendő lakóikat.
A tetőtérben 4 tároló lesz kialakítva, melyek darabonként 2, 5 MFt-ért lesznek megvásárolhatóak igény esetén.
Otthon Start hitellel is megvásárolhatóak a lakások! Az építkezés 2026. Márciusában kezdődik el, már most minden engedély rendelkezésre áll.
A lakások átadása 2027. Szeptemberében várható. Ez a lakás a földszinten helyezkedik el, nappali + 2 hálós, nagy teraszos kialakítással, saját garázzsal az ingatlanon belül és tartozik hozzá egy közel 100 nm-es kizárólagos használatú kert is.
Hitellel vásárlás esetén bankfüggetlen és díjmentes hiteltanácsadó közreműködését biztosítjuk, aki a teljes folyamaton végigkíséri Önt.
Az adásvétel biztonságos és gördülékeny bonyolítása érdekében tapasztalt ingatlan szakjogászaink szolgáltatását is ajánlom.
Referencia szám: pr063253/lk/27675 Hitel.hu - Hasonlítsa össze a bankok lakáshitel ajánlatait

