- >>
- eladó ingatlanok
- >>
- eladó lakás
- >>
- eladó lakás Debrecen
- >>
Eladó új építésű lakás - Debrecen
| | |||
| Kedvencnek jelölöm | Elküldöm emailben | Megosztás | Szavazás |
| Kedvezményes lakáshitel ajánlatok | |||
| 210 000 000 HUF | |||
Ingatlan adatai
- Eladó vagy kiadó:Eladó
- Település:Debrecen
- Kategória:Lakás
- Alkategória:Tégla
- Alapterület:123 m2
- Csere is:Nem
- Hirdető:Cég
- Élő videón megtekinthető:Nem
- Szobaszám:3
- Állapot:Új építésű
- Hány szintes az ingatlan:nincs megadva
- Komfortosság:nincs megadva
- Hányadik emeleti:nincs megadva
- Erkély:Van
- Lift:Van
- Parkolási lehetőség:nincs megadva
- Fűtés:Megújuló energia
- Bútorozottság:nincs megadva
- Fényviszony:nincs megadva
- Tájolás:D
- Kilátás:Utcai
- Internet:nincs megadva
- Akadálymentesített:nincs megadva
- Energiatanúsítvány:nincs megadva
- Villany:Van
- Víz:Van
- Gáz:Nincs
- Csatorna:Van
- Üzenetküldés
- Hívás


Ingatlan hirdetés leírása
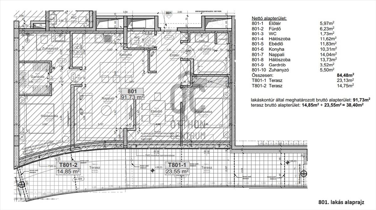
VIII. emeleti 801. lakás:
- br. 91,73 nm-es lakás
- 38,40 nm-...
VIII. emeleti 801. Lakás:- br. 91, 73 Nm-es lakás
- 38, 40 nm-es terasz (3 kijárattal)
- nappali külön étkezővel
- 2 hálószoba
- gardrób
- gépesített konyha
- 2 fürdőszoba, wc kézmosóval.
Projekt bemutatása
Debrecen belvárosát a Nagyerdővel összekötő sugárúton kerül kivitelezésre a helyi neves tervező házaspár által megálmodott, egyedi megoldású, könnyed vonalvezetésű, igényes, 60 lakásos társasház.
Az otthonos lakások mindegyikére jellemző a fényes terek, kellemes időjárás-független hőmérséklet, csodálatos panoráma.
A tervezésnél elsődleges szempont volt, hogy a lakók úgy érezzék magukat, mintha egy szállodában lennének:
-lift nemcsak a társasházban, hanem a garázsban is (autólift)
-portaszolgálat / recepció, beléptetőrendszer
-tetőteraszon napozó, medence, szauna, jakuzzi, amit a lakók használhatnak
-étterem.
A lakások mindegyike:
-erkélyes
-konyhával és minőségi gépekkel felszerelt
-fürdőszobák ízléses, modern kialakításuak
-egységes függönyökkel ellátottak
-padlófűtés és mennyezet fűtés-hűtésű.
A budapesti sikeres beruházó hajdúsági gyökerekkel rendelkezik. Büszkeség számukra nemcsak Debrecen legkülönlegesebb lakóingatlanát fejleszteni, de mind a beruházást, mind az üzemeltetést cégcsoporton belül megvalósítani. Ezáltal vevőközpontú vásárlási folyamatot alakítottak ki először a régióban, így nem Ön finanszírozza a beruházást, hanem a beruházó és Önnek semmilyen anyagi kockázata nincs!
Ne késlekedjen, legyen Ön is lakástulajdonos ebben a csúcskategóriás komplexumban! Hitel.hu - Hasonlítsa össze a bankok lakáshitel ajánlatait


