Eladó új építésű lakás - Hajdúböszörmény
- INGYENES HIRDETÉS FELADÁS
Ingatlan adatai
- Feladva:65 napja a megveszLAK-on
- Eladó vagy kiadó:Eladó
- Település:Hajdúböszörmény
- Kategória:Lakás
- Alkategória:Tégla
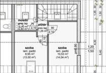
- Alapterület:83 m2
- Csere is:Nem
- Hirdető:Cég
- Élő videón megtekinthető:Nem
- Szobaszám:3
- Állapot:Új építésű
- Hány szintes az ingatlan:nincs megadva
- Komfortosság:Dupla komfortos
- Hányadik emeleti:Földszint
- Erkély:Nincs
- Lift:Nincs
- Parkolási lehetőség:Udvaron
- Fűtés:nincs megadva
- Bútorozottság:nincs megadva
- Fényviszony:nincs megadva
- Tájolás:nincs megadva
- Kilátás:Udvari
- Internet:nincs megadva
- Klíma:nincs megadva
- Akadálymentesített:nincs megadva
- Energiatanúsítvány:nincs megadva
- Villany:nincs megadva
- Víz:nincs megadva
- Gáz:nincs megadva
- Csatorna:nincs megadva
- Kapcsolatfelvétel

Müller Panna Petra
+36-(30)-269-8693
Mondd meg a hirdetőnek, hogy a megveszLAK-on találtad a hirdetést.
Hitel ajánlatok
Ingatlan hirdetés leírása
Eladó Tégla lakás, Hajdúböszörmény, Belváros, Jókai Mór utca, ...
Új építésű lakás eladó hajdúböszörményben – jókai U-BAN
Bruttó 83, 42 m², nettó: 73, 16 m2-es modern belső kétszintes nappali + 2 szobás lakás leköthető.
Várható költözés: 2026. December
Irányár: 85, 9 millió Ft
Elővásárlási kedvezmény 2026. Május 31-ig!
AJÁNDÉK gépesített KONYHABÚTOR!
A lakás főbb jellemzői
Korszerű, hőszigetelt épület
Beépített konyhabútor sütővel és főzőlappal
Modern villanyszerelés, minőségi szerelvények
Fürdőszoba teljes burkolattal és szaniterekkel
Hőszivattyús fűtés és hűtés napelemes rendszerrel
Energetikai besorolás: A+
Zárt udvar automata kapuval
Térburkolt parkolók
Nagy zöldfelület, közös kert
Elérhető lakás
6. Lakás – Belső kétszintes
bruttó: 83, 42 m² – 85. 900. 000 Ft
nettó: 73, 16 m2
Kültéri parkoló (15 m²): 2. 000. 000 Ft / db
(a parkoló megvásárlása kötelező)
Kiegészítő lehetőségek
(nem kötelező megvásárolni)
Fedett garázs (17, 3 m²) – 10 000 000 Ft / db
Pince tároló (7, 61 m²) – 2 800 000 Ft / db
Pince tároló (5, 29 m²) – 1 950 000 Ft / db
Kinek ideális ez a lakás?
Fiatal pároknak vagy kisebb családoknak, akik egy modern, energiatakarékos otthonban szeretnék megkezdeni közös életüket.
Befektetőknek, mivel az új építésű, jó műszaki állapotú lakások iránt folyamatos a kereslet, így könnyen kiadható és stabil bérleti bevételt biztosíthat.
Az új építésnek és a korszerű gépészetnek köszönhetően alacsony fenntartási költségekkel lehet számolni, ami hosszú távon jelentős megtakarítást jelent.
Kizárólag irodánk kínálatában!
Teljes körű, ingyenes hitelügyintézés:
CSOK, osp, Babaváró, piaci hitelek intézése.
Ügyvédi háttér.
Forduljon hozzánk bizalommal – levesszük az ügyintézés terheit az Ön válláról!
Érdeklődés: 06 70 611 1318 FIX 3% lakáshitelre megvehető
Tetszett ez az eladó Hajdúböszörményi új építésű 3 szobás tégla lakás? Hívd fel a hirdetőt most, és tudj meg mindent erről az eladó tégla lakásról! Ha gondolod nézelődj tovább az eladó lakás Hajdúböszörmény oldal hirdetései között. Ennek az eladó lakásnak az ára 85900000 Ft és mivel az alapterülete 83 négyzetméter, ezért az átlagos négyzetméterára 1034940 HUF/m2.
Az eladó lakások menüpontban további hirdetések között is böngészhetsz. Ha van kedved, akkor böngészhetsz a Müller Panna Petra összes hirdetése között, vagy akár a/az Eladlak Ingatlaniroda összes hirdetése között is.

