- >>
- eladó ingatlanok
- >>
- eladó lakás
- >>
- eladó lakás Miskolc
- >>
Eladó felújítandó lakás - Miskolc
| | |||
| Kedvencnek jelölöm | Elküldöm emailben | Megosztás | Szavazás |
| FIX 3% lakáshitelre megvehető | |||
| 10 500 000 HUF | |||
Ingatlan adatai
- Eladó vagy kiadó:Eladó
- Település:Miskolc
- Kategória:Lakás
- Alkategória:Tégla
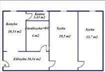
- Alapterület:54 m2
- Csere is:Nem
- Hirdető:Cég
- Élő videón megtekinthető:Nem
- Szobaszám:2
- Állapot:Felújítandó
- Hány szintes az ingatlan:Földszintes
- Komfortosság:nincs megadva
- Hányadik emeleti:1
- Lift:Nincs
- Parkolási lehetőség:nincs megadva
- Fűtés:Gáz (konvektor)
- Bútorozottság:nincs megadva
- Fényviszony:Jó
- Tájolás:nincs megadva
- Kilátás:nincs megadva
- Internet:nincs megadva
- Akadálymentesített:nincs megadva
- Energiatanúsítvány:nincs megadva
- Villany:Van
- Víz:Van
- Gáz:nincs megadva
- Csatorna:Van
- Közös költség:9 500 Ft
- Üzenetküldés
- Hívás

Referencia szám: M308760

Hitel ajánlat
Ingatlan hirdetés leírása
Eladó Lakás, Miskolc
Otthon start HITELPROGRAMEladó 1. emeleti, 54 nm-es, 2 szobás lakás Miskolc-Perecesen a Debreczeni Márton téren 2 szintes épületben közvetlenül az erdő mellett.
Keleti tájolás: a tágas, egymásból nyíló szobákba és a konyhába egész délelőtt besüt a nap
Felújítási potenciál: Engedje szabadjára a fantáziáját! Ez a lakás kiváló alapot biztosít ahhoz, hogy megálmodja és megvalósítsa saját, egyedi otthonát. a műanyag nyílászárók és az új bejárati ajtó már adott, így a nagyobb költségektől kímélheti meg magát. Praktikus elrendezés: a két tágas szoba, a kamrával kiegészített konyha és a gázkonvektoros fűtés (kiegészítésként cserépkályha is található, amely felújítás után használható lehet) mind a kényelmes életvitelhez járul hozzá.
A fürdőszobában a meleg vizet bojler biztosítja.
A közös költség 9. 500 Ft.
További információért és megtekintésért hívjon a hirdetésben szereplő telefonszámon! FIX 3% lakáshitelre megvehető

