Eladó új építésű lakás - Székesfehérvár
- INGYENES HIRDETÉS FELADÁS
Ingatlan adatai
- Eladó vagy kiadó:Eladó
- Település:Székesfehérvár
- Kategória:Lakás
- Alkategória:Tégla
- Alapterület:48 m2
- Csere is:Nem
- Hirdető:Cég
- Élő videón megtekinthető:Nem
- Szobaszám:2
- Állapot:Új építésű
- Hány szintes az ingatlan:Földszintes
- Komfortosság:nincs megadva
- Hányadik emeleti:Földszint
- Erkély:Van
- Lift:Van
- Parkolási lehetőség:Udvaron
- Fűtés:Gáz (cirko)
- Bútorozottság:nincs megadva
- Fényviszony:Napfényes
- Tájolás:D
- Kilátás:nincs megadva
- Internet:nincs megadva
- Klíma:Van
- Akadálymentesített:Akadálymentesített
- Energiatanúsítvány:B
- Villany:Van
- Víz:Van
- Gáz:nincs megadva
- Csatorna:Van
- Kapcsolatfelvétel

Molnár Csaba
+36-(70)-907-4749
Mondd meg a hirdetőnek, hogy a megveszLAK-on találtad a hirdetést.
Referencia szám: 179333
Hitel ajánlatok
Ingatlan hirdetés leírása
Indul a 4. ütem a Harmatosvölgy Déli oldalán!!!
Az Openhouse Székesfehérvár Ingatlaniroda kínálatában eladó a #179333 hivatkozási számú székesfehérvári társasházi lakás.
Eladó új építésű Otthon Start kompatibilis, tégla lakások, Székesfehérvár újonnan épülő városrészén, a déli oldalon 4. Ütemében, a Harmatosvölgyben.
A folyamatosan fejlődő családi házas lakópark közepén, 2026. Májusi kezdéssel, 39 lakás fog megépülni az 4. Ütemben.
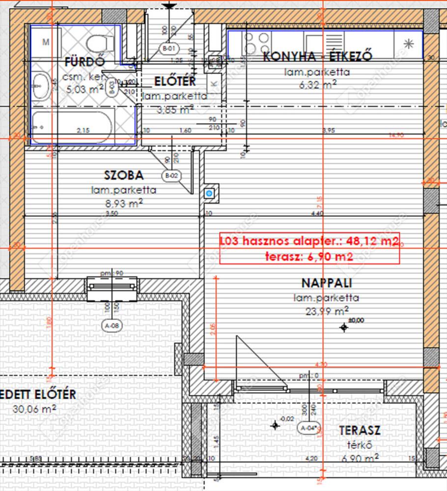
L03- es társasházi lakás jellemzői:
30 cm tégla falak, 10 cm tégla válaszfalak,
saját kondenzációs gázkazán, radiátoros hőleadással
háromrétegű műanyag nyílászárók, 10 cm-es hőszigetelés
egy beállóhely jár a lakáshoz, ez benne van az árban
modern megjelenés
Lakás:
nettó 48, 12 m2-es lakás + 6, 9m2-es fedett erkély
nappali-konyha-étkező, 1 hálószoba, fürdő és wc
földszinti, liftes, zárt lépcsőház
Ha nagyobbat vagy kisebbet keresne, abban is tudok segíteni!
Ha szívesebben lakna Székesfehérvár egyik zöldebb részében, inkább elkerülné a zsúfolt, panel lakótelepeket és nem szeretne egy 40 éves társasházban lévő lakás felújításával vesződni, ez a 2026-be épülő társasházas kiváló választás Önnek! Befektetőknek és igazából minden korosztály számára megfelelő, a kislakásoktól a 3 szobásig terjedően minden igényt kielégít. Itt ötvözve van az új, modern dizájn a mai igényeknek megfelelő kialakítással, az Ön álmai otthonának megvalósításához!
Székesfehérvári ingatlaniroda eladásra kínálja a Harmatosvölgyben épülő, 39 lakásos, társasházi lakásait!
Ha felkeltette érdeklődését ez az eladó székesfehérvári társasházi lakás, vagy bármely más társasházi lakás és bővebb információt szeretne, keressen bizalommal. Hivatkozási szám: #179333
Az Openhouse Székesfehérvár Ingatlaniroda tagjaként várom Önt az országos hálózatunk teljes kínálatával.
A társasházi lakás vásárláshoz hitelt igényelne? Ingyenes hitelközvetítéssel segít Önnek bankfüggetlen hitelszakértőnk.
További szolgáltatásainkkal (pl. Értékbecslés, energetikai tanúsítvány, jogi háttér) is segítjük Önt a vásárlásban.
Az otthon érték. Az ingatlan üzlet. FIX 3% lakáshitelre megvehető
Tetszett ez az eladó Székesfehérvári új építésű 2 szobás tégla lakás? Hívd fel a hirdetőt most, és tudj meg mindent erről az eladó tégla lakásról! Ha gondolod nézelődj tovább az eladó lakás Székesfehérvár oldal hirdetései között. Ennek az eladó lakásnak az ára 60805500 Ft és mivel az alapterülete 48 négyzetméter, ezért az átlagos négyzetméterára 1266781 HUF/m2.
Az eladó lakások menüpontban további hirdetések között is böngészhetsz. Ha van kedved, akkor böngészhetsz a Molnár Csaba összes hirdetése között, vagy akár a/az Open House Openhouse Székesfehérvár Ingatlaniroda összes hirdetése között is.

