Eladó ház - Bácsalmás
- INGYENES HIRDETÉS FELADÁS
Ingatlan adatai
- Feladva:86 napja a megveszLAK-on
- Eladó vagy kiadó:Eladó
- Település:Bácsalmás
- Kategória:Ház
- Alkategória:Családi ház
- Alapterület:100 m2
- Telekterület:nincs megadva
- Csere is:Igen
- Hirdető:Cég
- Élő videón megtekinthető:Nem
- Szobaszám:3
- Állapot:Jó állapotú
- Hány szintes az ingatlan:nincs megadva
- Tetőtér:nincs megadva
- Komfortosság:nincs megadva
- Pince:nincs megadva
- Parkolási lehetőség:nincs megadva
- Fűtés:nincs megadva
- Bútorozottság:nincs megadva
- Fényviszony:nincs megadva
- Tájolás:nincs megadva
- Kilátás:nincs megadva
- Internet:nincs megadva
- Klíma:nincs megadva
- Akadálymentesített:nincs megadva
- Energiatanúsítvány:nincs megadva
- Villany:nincs megadva
- Víz:nincs megadva
- Gáz:nincs megadva
- Csatorna:nincs megadva
- Kapcsolatfelvétel

Ádám Viktória
+36-(70)-414-9500
Mondd meg a hirdetőnek, hogy a megveszLAK-on találtad a hirdetést.
Hitel ajánlatok
Ingatlan hirdetés leírása
Bácsalmáson családi ház eladó
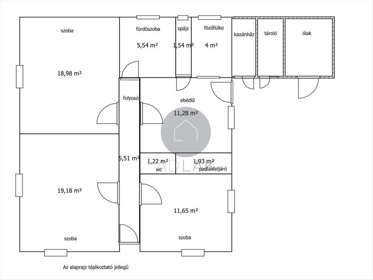
Bács -Kiskun vármegye Bácsalmás városában 1981-ben épült 100 m2-es családi ház 563 m2-es telekkel eladó, földszinti lakásra cserélhető. Az ingatlan beton alappal és tégla falazattal épült. Kiállításra került benne 3 szoba, folyosó, wc, fürdőszoba, spájz, főzőfülke, ebédlő, padlásfeljáró. Nyílászárók nem hőszigetelt fa szerkezetűek. Fűtést gáz- és vegyestüzelésű kazán látja el. Melegvíz -ellátást 200 literes villanybojler biztosítja. 15 Évvel ezelőtt víz és villanyvezetékek cseréje és ipari áram kialakítása megtörtént. Melléképületben található a kazánház, tároló és ólak. Az udvaron garázs található, de ez felújítást igényel. Az ingatlan tehermentes és a város csatorna hálózatára rá van kötve. Bővebben információért keressen bizalommal: Ádám Viktória 06704149500 (hivatkozási szám: m118448) FIX 3% lakáshitelre megvehető
Tetszett ez a cserélhető Bácsalmási jó állapotú 3 szobás családi ház? Hívd fel a hirdetőt most, és tudj meg mindent erről a cserélhető családi házról! Ha gondolod nézelődj tovább a cserélhető ház Bácsalmás oldal hirdetései között. Ennek az eladó háznak az ára 13500000 Ft és mivel az alapterülete 100 négyzetméter, ezért az átlagos négyzetméterára 135000 HUF/m2.
A eladó házak menüpontban további hirdetések között is böngészhetsz. Ha van kedved, akkor böngészhetsz a Ádám Viktória összes hirdetése között, vagy akár a/az Adlak összes hirdetése között is.

