Eladó átlagos állapotú ház Baja
| Kedvencbe | Megosztás | Árfigyelő |
| FIX 3% lakáshitelre megvehető | ||
| 48 999 999 HUF | ||
Ingatlan adatai
- Eladó vagy kiadó:Eladó
- Település:Baja
- Kategória:Ház
- Alkategória:Családi ház
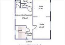
- Alapterület:140 m2
- Telekterület:1349 m2
- Csere is:Nem
- Hirdető:Cég
- Élő videón megtekinthető:Nem
- Építés éve:1973
- Szobaszám:5
- Állapot:Átlagos állapotú
- Hány szintes az ingatlan:2 szintes
- Tetőtér:nincs megadva
- Komfortosság:nincs megadva
- Parkolási lehetőség:Udvaron
- Fűtés:Gáz (konvektor)
- Bútorozottság:nincs megadva
- Fényviszony:Napfényes
- Tájolás:nincs megadva
- Kilátás:nincs megadva
- Internet:nincs megadva
- Akadálymentesített:nincs megadva
- Energiatanúsítvány:nincs megadva
- Villany:nincs megadva
- Víz:nincs megadva
- Gáz:nincs megadva
- Csatorna:nincs megadva
- Üzenetküldés
- Hívás

Referencia szám: M271526

Hitel ajánlat
Ingatlan hirdetés leírása
Eladó Ház, Baja, Eladó átlagos állapotú ház - Baja
Eladásra kínálok Bács-Kiskun vármegyében, Baján egy kétszintes, 140 m2-es családi házat. a telek területe 1349 m2. Az ingatlan két belépőből, négy tágas hálószobából, egy nappaliból, egy konyha-étkezőből, egy nappali-konyha-étkezőből, két kamrából, két fürdőszoba+fürdőszobából nyíló wc-ből és egy közlekedőből áll. a két emelet külön lakhatásra is alkalmas (kétgenerációs). a házban található klíma, a fűtés pedig igény szerint gázkonvektorral, klímával, elektromos fűtőpanellel és kandallóval is egyaránt megoldható.Az udvarban melléképületek, valamint állattartásra alkalmas ólak találhatóak. a melléképületek ipari árammal rendelkeznek. Az udvarban fedett autóbeálló és nyári konyha található nagyobb helyiségekkel, alatta pince került kiépítésre. Diófa és császárfa van a kertben és az udvarban. a kert kertészkedésre alkalmas.
Keressen bizalommal, ha az ingatlan felkeltette az érdeklődését!
Teljeskörű és díjmentes hitelügyintézéssel, pénzügyi tanácsadással és energetikai tanúsítvány készítésével kapcsolatban is az Önök rendelkezésére állunk!
Referencia szám: m271526 FIX 3% lakáshitelre megvehető

