Eladó jó állapotú ház Ballószög
| Kedvencbe | Megosztás | Árfigyelő |
| Kedvezményes lakáshitel ajánlatok | ||
| 199 000 000 HUF | ||
Ingatlan adatai
- Eladó vagy kiadó:Eladó
- Település:Ballószög
- Kategória:Ház
- Alkategória:Családi ház
- Alapterület:200 m2
- Telekterület:2013 m2
- Csere is:Nem
- Hirdető:Cég
- Élő videón megtekinthető:Nem
- Építés éve:2008
- Szobaszám:7
- Állapot:Jó állapotú
- Hány szintes az ingatlan:Földszintes
- Tetőtér:nincs megadva
- Komfortosság:nincs megadva
- Parkolási lehetőség:nincs megadva
- Fűtés:Gáz (cirko)
- Bútorozottság:nincs megadva
- Fényviszony:Napfényes
- Tájolás:nincs megadva
- Kilátás:nincs megadva
- Internet:nincs megadva
- Akadálymentesített:nincs megadva
- Energiatanúsítvány:nincs megadva
- Villany:nincs megadva
- Víz:nincs megadva
- Gáz:nincs megadva
- Csatorna:nincs megadva
- Üzenetküldés
- Hívás

Referencia szám: 3619923

Hitel ajánlat
Ingatlan hirdetés leírása
Eladó egyedileg megálmodott kis birodalom!
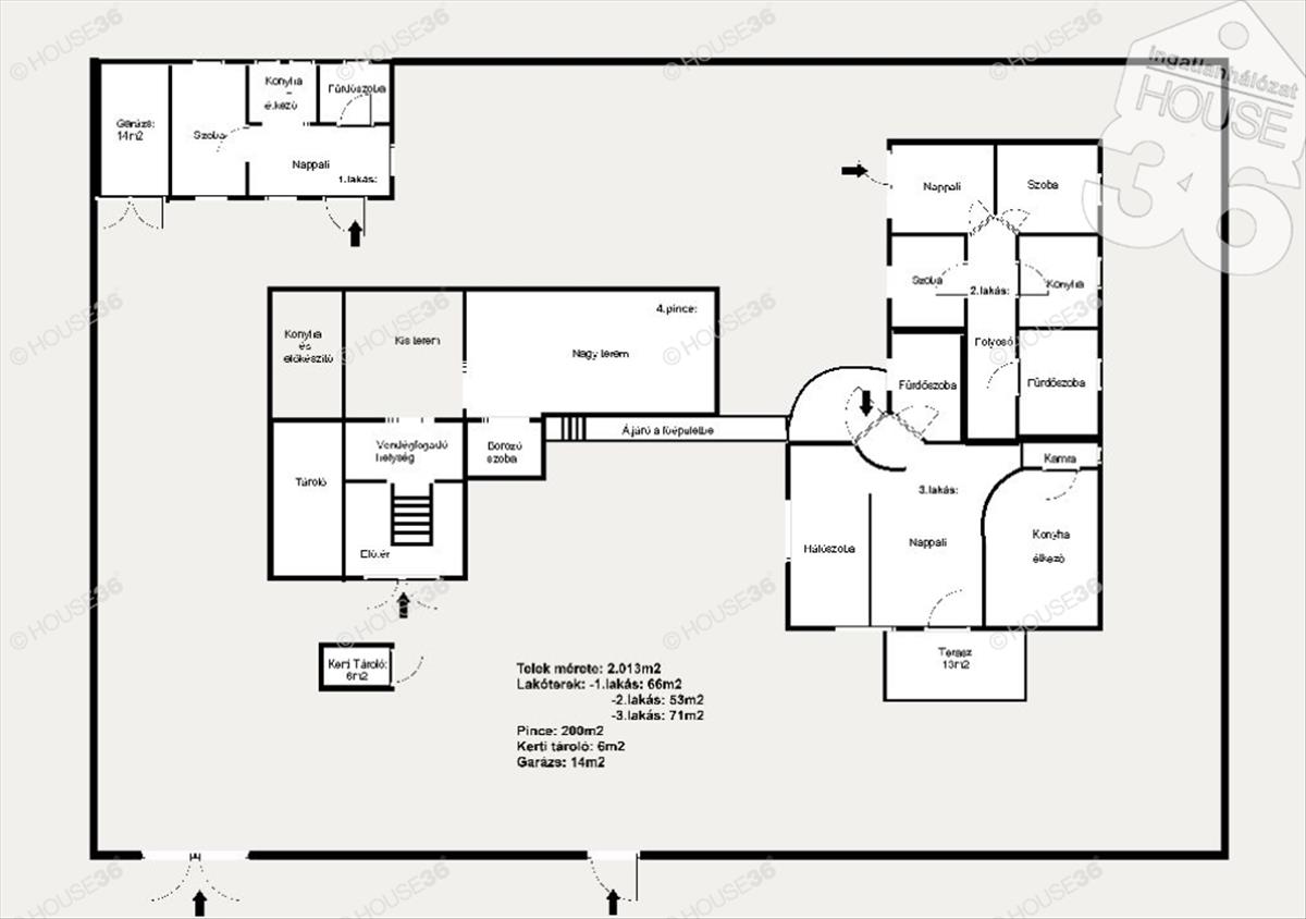
Eladó egyedülálló családi kis birtok Ballószögön – 3 külön lakrész + 200 m² pince különleges hangulattal!Kecskeméttől egy karnyújtásnyira, Ballószög csendes, kis forgalmú utcájában megvételrekínálunk egy igazán különleges kis birodalmat! Három külön bejáratú lakrész – tökéletes többgenerációs családnak, kiadásra vagy akár rendezvényhelyszínként is.
1. Lakás – 66 m²: 2 szoba, konyha étkezővel, fürdőszoba
2. Lakás – 53 m²: 3 szoba, konyha, fürdőszoba
3. Lakás – 71 m²: 2 szoba, konyha étkezővel, fürdőszoba, kamra
Hatalmas, 200 m²-es pince – kiváló borospince, rendezvényterem vagy akár exkluzív klubhelyiség kialakítására is alkalmas!
A pincelejáróban egyedi, kézzel faragott népi faszobrok teszik különlegessé az élményt – valódi mestermunka!
Közvetlen feljárat a főépületbe, így a pince és a lakótér tökéletesen összekapcsolható.
Tágas udvar, nyugodt környezet, ahol a természet és a nyugalom az úr.
Ez az ingatlan nem csak otthon, hanem élmény is egyben – legyen szó többgenerációs együttélésről, vendéglátásról, vagy akár különleges események helyszínéről!
Figyelem az adatlap megbízónktól kapott adatok alapján készült, pontosságáért felelősséget nem tudunk vállalni!
Az iroda legfrissebb, aktuális kínálatát a house36 saját weboldalán találja! Hitel.hu - Hasonlítsa össze a bankok lakáshitel ajánlatait

