Eladó felújítandó ház Budapest II. kerület
| Kedvencbe | Megosztás | Árfigyelő |
| FIX 3% lakáshitelre megvehető | ||
| 124 900 000 HUF | ||
Ingatlan adatai
- Eladó vagy kiadó:Eladó
- Település:Budapest II. kerület
- Kategória:Ház
- Alkategória:Családi ház
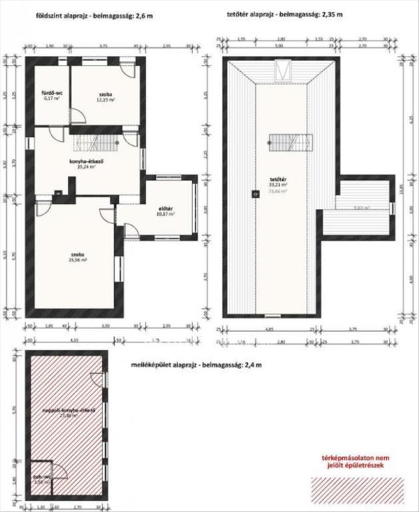
- Alapterület:106 m2
- Telekterület:437 m2
- Csere is:Nem
- Hirdető:Cég
- Élő videón megtekinthető:Nem
- Építés éve:1960
- Szobaszám:3
- Állapot:Felújítandó
- Hány szintes az ingatlan:2 szintes
- Tetőtér:nincs megadva
- Komfortosság:nincs megadva
- Parkolási lehetőség:nincs megadva
- Fűtés:Egyéb
- Bútorozottság:nincs megadva
- Fényviszony:Jó
- Tájolás:nincs megadva
- Kilátás:nincs megadva
- Internet:nincs megadva
- Akadálymentesített:nincs megadva
- Energiatanúsítvány:E
- Villany:nincs megadva
- Víz:nincs megadva
- Gáz:nincs megadva
- Csatorna:nincs megadva
- Üzenetküldés
- Hívás

Referencia szám: M298598

Hitel ajánlat
Ingatlan hirdetés leírása
Eladó Ház, Budapest 2. ker.
***Kizárólag az OTP Ingatlanpont kínálatában! ***II. kerületi családi ház ELADÓ!
Budapest, II. kerületének Pesthidegkút-Ófalu részén, a Templom utcában ajánlom a figyelmébe ezt a 106 nm-es, sok lehetőséget kínáló ingatlant, ami 437 nm-es telken helyezkedik el. a kétszobás földszinti rész felett a tetőtér beépítésre került, illetve a kert végében található egy különálló kisház is, aminek a területe 29 nm. a felújítandó állapotú családi ház vegyes szerkezetű, fűtése jelenleg nem megoldott.
ELŐNYÖK: különálló kisház, elszeparált kert, családi házas övezet, kellemes szomszédok, kiváló lokáció, többgeneráció számára is ideális, tiszta tulajdoni LAP.
LOKÁCIÓ: Pesthidegkút-Ófalu városrészben, a Templom utcában található az ingatlan, a Klebelsberg kastélytól minimális távolságra. a Hidegkúti út és ezáltal a tömegközlekedés gyalogosan könnyen megközelíthető.
A vásárláshoz az OTP Bank kedvezményes lakáshitel konstrukcióival, egyedi akciókkal és kamatkedvezményekkel állunk ügyfeleink rendelkezésére, aminek ügyintézése díjmentes. Amennyiben az ingatlan felkeltette érdeklődését és szívesen megnézné, akkor hívjon bizalommal, akár hétvégén is!
Referencia szám: m298598 FIX 3% lakáshitelre megvehető

